
Etagenwohnung in Augsburg-Oberhausen
Objekt nicht gefunden
auf der Karte ansehenUmzugskosten berechnen
- Kaltmiete
- 1.100 €
- Zimmer
- 3
- Fläche
- 87 m²
23 Aufrufe
Objekt-ID: 38654521
| Objekttyp: | Etagenwohnung |
| Zimmer: | 3 |
| Größe: | 87.00 m² |
| Frei ab: | 1.12.2025 |
Preise & Kosten
| Kaltmiete: | k.A. |
| Nebenkosten: | 310 € |
| Gesamtmiete: |
k.A. |
| Preis/m²: | 12,64 € |
| Mit Mietspiegel Augsburg vergleichen | |
| Kaution: | k.A. |
Immobilie
Balkon
Garage
Keller
| Baujahr: | 1987 |
| Energieausweis: | Energieausweis in Vorbereitung |
Objektbeschreibung
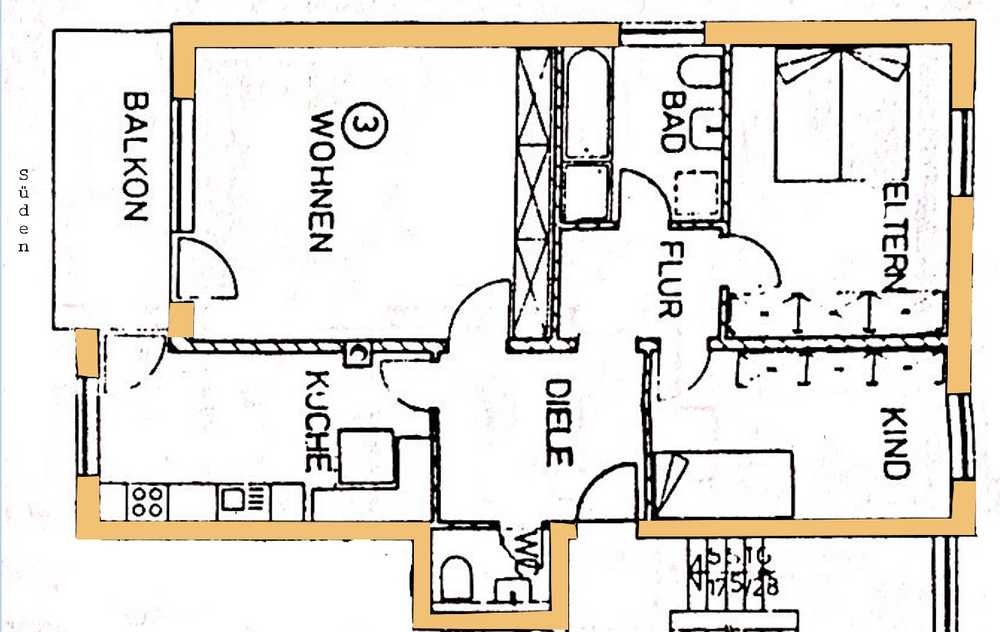
Diese helle 3-Zimmer-Wohnung mit ca. 87 m² Wohnfläche ist Süd Westlich ausgerichtet und befindet sich in Augsburg-Oberhausen. Die Straßenbahnhaltestelle ist zu Fuß in 4 min zu erreichen und die Autobahnauffahrt ist 1,8 km entfernt. Die Wohnung verfügt über ein Badezimmer mit Badewanne +Dusche und einem separatem Gäste-WC . Ein Balkon mit ca. 8 qm ist zum Entspannen vorhanden . Ein eigener Garagenplatz für Ihr Auto sowie ein Keller mit ca. 16,50 qm bieten zusätzlichen Stauraum und Komfort. Haustiere sind nicht erlaubt. Die Verfügbarkeit ist ab dem 01.12.2025 gegeben.
Lage
Donauwörther Straße86156 Augsburg
Augsburg Oberhausen
Der aktuelle durchschnittliche Quadratmeterpreis beträgt 15,81 €/m² in Augsburg - Oberhausen. Der durchschnittliche Quadratmeterpreis in Augsburg liegt derzeit bei 14,79 €/m².
Mit Mietspiegel
Augsburg vergleichen
Was kostet dein Umzug?
Du planst einen Umzug? Finde jetzt die günstigste Umzugsfirma in deiner Region!
Umzugskosten berechnen Schütze dich vor Betrug!
Leiste keinerlei Zahlung im Vorraus!
Beachte unsere Sicherheitshinweise zum Thema Immobilienbetrug und lies, woran du solche Anzeigen erkennen kannst und wie du dich vor Betrügern schützt.
Anzeige melden Beachte unsere Sicherheitshinweise zum Thema Immobilienbetrug und lies, woran du solche Anzeigen erkennen kannst und wie du dich vor Betrügern schützt.
*Anzeige
Ähnliche Wohnungen bei ImmoScout24
Augsburg-Oberhausen
- Miete
- 950 €
- Zimmer
- 3 Zi.
- Fläche
- 80 Zi.
Anbieter
privater Anbieter
Diese Anzeige ist momentan deaktiviert. Daher ist eine Kontaktaufnahme nicht möglich.
Weitere Ergebnisse für:
Wohnungen
Augsburg;
Immobilien
Augsburg;
Haus mieten
Augsburg;
WG Zimmer
Augsburg;
Wohnung
Augsburg kaufen;
Haus kaufen
Augsburg;
Immobilienpreise
Augsburg Mietspiegel
Augsburg wohnungsboerse.net übernimmt keine Gewähr für von Dritten gemachte Angaben