Etagenwohnung in Chemnitz-Schloßchemnitz
EBK *** TOP 2-Zimmer-Whg. im 2. OG mit Laminat ! Glasfaseranschluß
auf der Karte ansehenUmzugskosten berechnen
- Kaltmiete
- 289 €
- Zimmer
- 2
- Fläche
- 50 m²
130 Aufrufe
Objekt-ID: 36226523
| Objekttyp: | Etagenwohnung |
| Zimmer: | 2 |
| Größe: | 50.00 m² |
| Etage: | 2 |
| Frei ab: | 01.01.2026 |
Preise & Kosten
| Kaltmiete: | 289 € |
| Nebenkosten: | 150 € |
| Gesamtmiete: |
439 € |
| Preis/m²: | 5,78 € |
| Mit Mietspiegel Chemnitz vergleichen | |
| Kaution: | 867 |
Immobilie
Garten
Einbauküche
Keller
| Baujahr: | 1900 |
| Objektzustand: | gepflegt |
| Befeuerungsart: | Gas |
| Energieausweis: | Energieausweis in Vorbereitung |
| Energieverbrauchskennwert: | 97,00 kWh/(m²*a) |
| Energieverbrauch für Warmwasser enthalten? | Ja |
Objektbeschreibung
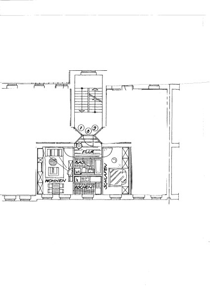
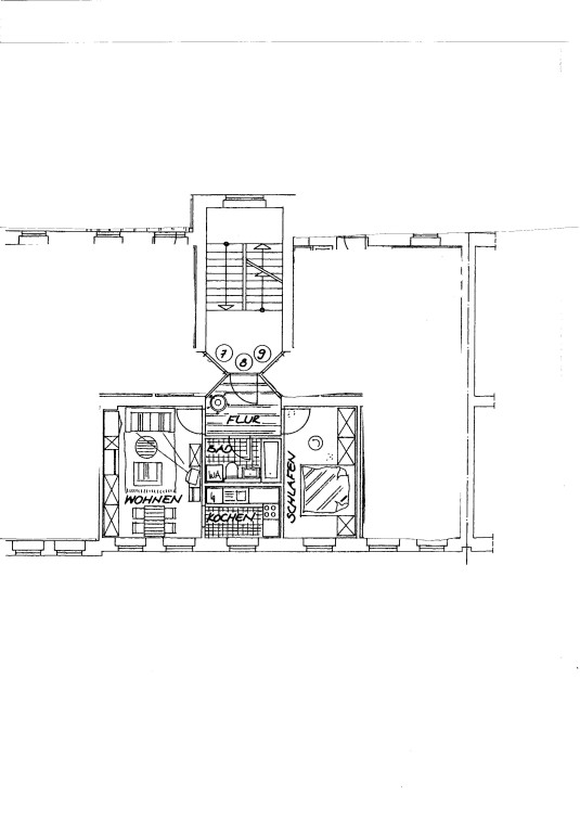
moderne 2 Raum-Wohnung in Schloßchemnitz gelegen:
TOP! helle Wohnung mit Laminat, Wanne und
Handtuchheizkörper ausgestattet
Einbauküche
Glasfaseranschluss
sehr schöner Grundriss
freundliches Wohnzimmer zum Wohlfühlen
Energieausweis vorhanden (verbrauchsorientiert)
Endenergieverbauch: 97 kWh/qm*a;
Energieverbrauch für Warmwasser enthalten: Ja
incl. Einbauküchen nach Absprache kann auch eigene Küche
eingebaut werden
Hausmeisterservice inclusive
Die Wohnung liegt ca.900m vom Klinikum Chemnitz entfernt.
Ideal für Krankenschwestern, Ärzte, medizinisches Personal
Bushaltestelle direkt vor der Haustür
Netto ca. 150m entfernt
TOP! helle Wohnung mit Laminat, Wanne und
Handtuchheizkörper ausgestattet
Einbauküche
Glasfaseranschluss
sehr schöner Grundriss
freundliches Wohnzimmer zum Wohlfühlen
Energieausweis vorhanden (verbrauchsorientiert)
Endenergieverbauch: 97 kWh/qm*a;
Energieverbrauch für Warmwasser enthalten: Ja
incl. Einbauküchen nach Absprache kann auch eigene Küche
eingebaut werden
Hausmeisterservice inclusive
Die Wohnung liegt ca.900m vom Klinikum Chemnitz entfernt.
Ideal für Krankenschwestern, Ärzte, medizinisches Personal
Bushaltestelle direkt vor der Haustür
Netto ca. 150m entfernt
Lage
Paul-Jäkel-Str.09113 Chemnitz
Chemnitz Schloßchemnitz
Der aktuelle durchschnittliche Quadratmeterpreis beträgt 8,59 €/m² in Chemnitz - Schloßchemnitz. Der durchschnittliche Quadratmeterpreis in Chemnitz liegt derzeit bei 5,95 €/m².
Mit Mietspiegel
Chemnitz vergleichen
Was kostet dein Umzug?
Du planst einen Umzug? Finde jetzt die günstigste Umzugsfirma in deiner Region!
Umzugskosten berechnen Schütze dich vor Betrug!
Leiste keinerlei Zahlung im Vorraus!
Beachte unsere Sicherheitshinweise zum Thema Immobilienbetrug und lies, woran du solche Anzeigen erkennen kannst und wie du dich vor Betrügern schützt.
Anzeige melden Beachte unsere Sicherheitshinweise zum Thema Immobilienbetrug und lies, woran du solche Anzeigen erkennen kannst und wie du dich vor Betrügern schützt.
*Anzeige
Ähnliche Wohnungen bei ImmoScout24
Chemnitz-Schloßchemnitz
- Miete
- 150 €
- Zimmer
- 2 Zi.
- Fläche
- 40 Zi.
Anbieter
privater AnbieterWeitere Ergebnisse für:
Wohnungen
Chemnitz;
Immobilien
Chemnitz;
Haus mieten
Chemnitz;
WG Zimmer
Chemnitz;
Wohnung
Chemnitz kaufen;
Haus kaufen
Chemnitz;
Immobilienpreise
Chemnitz Mietspiegel
Chemnitz wohnungsboerse.net übernimmt keine Gewähr für von Dritten gemachte Angaben











