
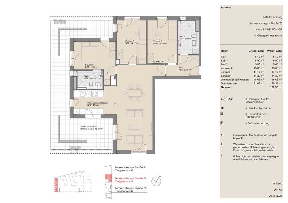
Etagenwohnung in Bamberg-Ost
4 Zimmer-Wohnung (freifinanziert)
auf der Karte ansehenUmzugskosten berechnen
- Kaltmiete
- 1.659,83 €
- Zimmer
- 4
- Fläche
- 122.41 m²
20 Aufrufe
Objekt-ID: 38950622
| Objekttyp: | Etagenwohnung |
| Zimmer: | 4 |
| Größe: | 122.41 m² |
| Etage: | 4 von 4 |
| Frei ab: | 01.12.2026 |
Preise & Kosten
| Kaltmiete: | 1.659,83 € |
| Nebenkosten: | 430,33 € |
| Gesamtmiete: |
2.090,16 € |
| Preis/m²: | 13,56 € |
| Mit Mietspiegel Bamberg vergleichen | |
| Kaution: | k.A. |
Immobilie
Balkon
Aufzug
Keller
Behindertengerecht
| Baujahr: | 2025 |
| Befeuerungsart: | Fernwärme |
| Energieausweis: | Bedarfsausweis |
| Endenergiebedarf: | 62,00 kWh/(m²*a) |
| Energieeffizienzklasse: | B |
Objektbeschreibung
Attraktiv gelegenes Neubauquartier auf der ehemaligen Lagarde-Kaserne. Neubau mit top Verkehrsanbindung und Einkaufsmöglichkeiten zum günstigen Mietpreis, dank einkommensorientierter Förderung (EOF)! Voraussetzung für die Anmietung der geförderten Wohnungen ist die Vorlage eines Wohnberechtigungsscheines (WBS) mit der Einkommensstufe II. Bitte bewerben Sie sich ausschließlich auf unserem Vermietungsportal: https://bayernheim.de/bamberg-lagard/
Mietinteressenten mit dem Wohnberechtigungsschein der Einkommensstufe I müssen Sie sich an die Stadt Bamberg wenden: Stadt Bamberg Amt für soziale Angelegenheiten, Soziale Wohnraumförderung Promenadestr. 2a 96047 Bamberg E-Mail: wohnraumfoerderung@stadt.bamberg.de
Mietinteressenten mit dem Wohnberechtigungsschein der Einkommensstufe I müssen Sie sich an die Stadt Bamberg wenden: Stadt Bamberg Amt für soziale Angelegenheiten, Soziale Wohnraumförderung Promenadestr. 2a 96047 Bamberg E-Mail: wohnraumfoerderung@stadt.bamberg.de
Lage
Lorenz-Krapp-Straße96052 Bamberg
Bamberg Ost
Der aktuelle durchschnittliche Quadratmeterpreis beträgt 12,29 €/m² in Bamberg - Ost. Der durchschnittliche Quadratmeterpreis in Bamberg liegt derzeit bei 12,88 €/m².
Mit Mietspiegel
Bamberg vergleichen
Was kostet dein Umzug?
Du planst einen Umzug? Finde jetzt die günstigste Umzugsfirma in deiner Region!
Umzugskosten berechnen Schütze dich vor Betrug!
Leiste keinerlei Zahlung im Vorraus!
Beachte unsere Sicherheitshinweise zum Thema Immobilienbetrug und lies, woran du solche Anzeigen erkennen kannst und wie du dich vor Betrügern schützt.
Anzeige melden Beachte unsere Sicherheitshinweise zum Thema Immobilienbetrug und lies, woran du solche Anzeigen erkennen kannst und wie du dich vor Betrügern schützt.
*Anzeige
Ähnliche Wohnungen bei ImmoScout24
Bamberg-Ost
- Miete
- 1.550 €
- Zimmer
- 4 Zi.
- Fläche
- 115 Zi.
Anbieter
Weitere Ergebnisse für:
Wohnungen
Bamberg;
Immobilien
Bamberg;
Haus mieten
Bamberg;
WG Zimmer
Bamberg;
Wohnung
Bamberg kaufen;
Haus kaufen
Bamberg;
Immobilienpreise
Bamberg Mietspiegel
Bamberg wohnungsboerse.net übernimmt keine Gewähr für von Dritten gemachte Angaben