
Haus mieten in Werlte
Geräumiges 6-Zimmer-Haus in Werlte mit 180 m² Wohnfläche
auf der Karte ansehenUmzugskosten berechnen
- Kaltmiete
- 1.200 €
- Zimmer
- 6
- Fläche
- 180 m²
7 Aufrufe
Objekt-ID: 38939068
| Objekttyp: | Keine Angabe |
| Zimmer: | 6 |
| Größe: | 180.00 m² |
| Grundstücksfläche: | 1.000,00 m² |
| Frei ab: | 1.12.2025 |
Preise & Kosten
| Kaltmiete: | 1.200 € |
| Gesamtmiete: | k.A. |
| Preis/m²: | 6,67 € |
| Mit Mietspiegel Werlte vergleichen | |
| Kaution: | k.A. |
Immobilie
Einbauküche
Keller
Objektbeschreibung
Dieses umfassend kernsaniertes Einfamilienhaus in zentraler Lage von Werlte steht ab dem 01.12. oder später zur Vermietung. Es handelt sich um einen Erstbezug nach Sanierung – das gesamte Haus präsentiert sich modern, hochwertig und sofort bezugsbereit.
Besonders attraktiv: Eine Einbauküche sowie sämtliche Badmöbel sind bereits im Mietpreis enthalten.
Das Haus bietet durch seine drei Etagen, den großen Garten und zusätzliche Nutzflächen wie den Partyraum vielfältige Möglichkeiten für Familien oder Paare.
Ausstattung
Erstbezug nach vollständiger Kernsanierung
Einbauküche im Mietpreis enthalten
Badmöbel inklusive
Helle, großzügige Räume
Sauna im 2. Obergeschoss
Überdachte Terrasse
Separater Partyraum (ca. 40 m²) mit Theke
Garage + 3 Außenstellplätze
Großer Garten (ca. 450 m²)
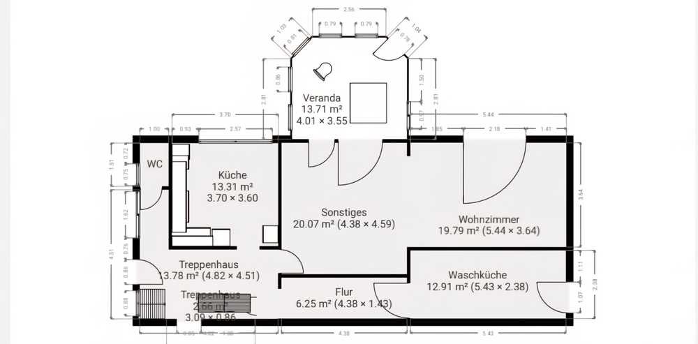
Raumaufteilung
Erdgeschoss:
Küche mit Einbauküche
Wohnzimmer
Esszimmer mit Zugang zur überdachten Terrasse
Schlafzimmer mit Terrassenzugang
HWR mit Gartenzugang
Gäste-WC
1. Obergeschoss:
Badezimmer (Badmöbel inkl.)
WC
3 Schlafzimmer
Abstellraum
2. Obergeschoss:
Sauna
Hobby-/Ruheraum
Besonders attraktiv: Eine Einbauküche sowie sämtliche Badmöbel sind bereits im Mietpreis enthalten.
Das Haus bietet durch seine drei Etagen, den großen Garten und zusätzliche Nutzflächen wie den Partyraum vielfältige Möglichkeiten für Familien oder Paare.
Ausstattung
Erstbezug nach vollständiger Kernsanierung
Einbauküche im Mietpreis enthalten
Badmöbel inklusive
Helle, großzügige Räume
Sauna im 2. Obergeschoss
Überdachte Terrasse
Separater Partyraum (ca. 40 m²) mit Theke
Garage + 3 Außenstellplätze
Großer Garten (ca. 450 m²)
Raumaufteilung
Erdgeschoss:
Küche mit Einbauküche
Wohnzimmer
Esszimmer mit Zugang zur überdachten Terrasse
Schlafzimmer mit Terrassenzugang
HWR mit Gartenzugang
Gäste-WC
1. Obergeschoss:
Badezimmer (Badmöbel inkl.)
WC
3 Schlafzimmer
Abstellraum
2. Obergeschoss:
Sauna
Hobby-/Ruheraum
Was kostet dein Umzug?
Du planst einen Umzug? Finde jetzt die günstigste Umzugsfirma in deiner Region!
Umzugskosten berechnen Schütze dich vor Betrug!
Leiste keinerlei Zahlung im Vorraus!
Beachte unsere Sicherheitshinweise zum Thema Immobilienbetrug und lies, woran du solche Anzeigen erkennen kannst und wie du dich vor Betrügern schützt.
Anzeige melden Beachte unsere Sicherheitshinweise zum Thema Immobilienbetrug und lies, woran du solche Anzeigen erkennen kannst und wie du dich vor Betrügern schützt.
*Anzeige
Ähnliche Häuser bei ImmoScout24
Werlte
- Miete
- 1.050 €
- Zimmer
- 6 Zi.
- Fläche
- 170 Zi.
Weitere Ergebnisse für:
Wohnungen
Werlte;
Immobilien
Werlte;
Haus mieten
Werlte;
WG Zimmer
Werlte;
Wohnung
Werlte kaufen;
Haus kaufen
Werlte;
Immobilienpreise
Werlte Mietspiegel
Werlte wohnungsboerse.net übernimmt keine Gewähr für von Dritten gemachte Angaben