
Doppelhaushälfte mieten in Bobingen
Objekt nicht gefunden
auf der Karte ansehenUmzugskosten berechnen
- Kaltmiete
- 1.500 €
- Zimmer
- 6
- Fläche
- 160 m²
14 Aufrufe
Objekt-ID: 38891260
| Objekttyp: | Doppelhaushälfte |
| Zimmer: | 6 |
| Größe: | 160.00 m² |
| Grundstücksfläche: | 600,00 m² |
| Frei ab: | 1.1.2026 |
Preise & Kosten
| Kaltmiete: | k.A. |
| Nebenkosten: | 100 € |
| Gesamtmiete: |
k.A. |
| Preis/m²: | 9,38 € |
| Mit Mietspiegel Bobingen vergleichen | |
| Kaution: | k.A. |
Immobilie
Garten
Einbauküche
Keller
Tiere erlaubt
| Baujahr: | 1970 |
| Befeuerungsart: | Strom |
| Energieausweis: | Energieausweis in Vorbereitung |
Objektbeschreibung
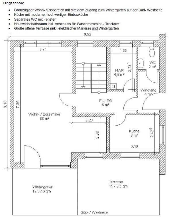
Diese gepflegte Doppelhaushälfte in Hanglage mit ca. 160 m² Wohnfläche und ca. 600 m² Grundstücksfläche (inkl. großzügiger Garten mit Gemüsegartenanteil und Gewächshaus) befindet sich in zentraler Lage in Bobingen. Das Haus verfügt über 6 Zimmer, 2 Badezimmer, ein Gäste-WC, einen Wintergarten und eine große Terrasse.
Eine Garage und ein Carport bieten Platz für Ihr Fahrzeuge. Eine hochwertige Einbauküche ist bereits vorhanden. Das Haus ist unterkellert und bietet somit zusätzlichen Stauraum. Haustiere sind nach Absprache erlaubt. Das Haus wird ab dem 01.01.2026 bezugsfrei sein.
Eine Garage und ein Carport bieten Platz für Ihr Fahrzeuge. Eine hochwertige Einbauküche ist bereits vorhanden. Das Haus ist unterkellert und bietet somit zusätzlichen Stauraum. Haustiere sind nach Absprache erlaubt. Das Haus wird ab dem 01.01.2026 bezugsfrei sein.
Lage
86399 BobingenBobingen
Der aktuelle durchschnittliche Quadratmeterpreis beträgt 12,22 €/m² in Bobingen.
Mit Mietspiegel
Bobingen vergleichen
Was kostet dein Umzug?
Du planst einen Umzug? Finde jetzt die günstigste Umzugsfirma in deiner Region!
Umzugskosten berechnen Schütze dich vor Betrug!
Leiste keinerlei Zahlung im Vorraus!
Beachte unsere Sicherheitshinweise zum Thema Immobilienbetrug und lies, woran du solche Anzeigen erkennen kannst und wie du dich vor Betrügern schützt.
Anzeige melden Beachte unsere Sicherheitshinweise zum Thema Immobilienbetrug und lies, woran du solche Anzeigen erkennen kannst und wie du dich vor Betrügern schützt.
*Anzeige
Ähnliche Häuser bei ImmoScout24
Bobingen
- Miete
- 1.350 €
- Zimmer
- 6 Zi.
- Fläche
- 150 Zi.
Anbieter
privater Anbieter
Diese Anzeige ist momentan deaktiviert. Daher ist eine Kontaktaufnahme nicht möglich.
Weitere Ergebnisse für:
Wohnungen
Bobingen;
Immobilien
Bobingen;
Haus mieten
Bobingen;
WG Zimmer
Bobingen;
Wohnung
Bobingen kaufen;
Haus kaufen
Bobingen;
Immobilienpreise
Bobingen Mietspiegel
Bobingen wohnungsboerse.net übernimmt keine Gewähr für von Dritten gemachte Angaben