
Doppelhaushälfte mieten in Kappeln
Erstbezug nach Sanierung - gepflegte DHH in Kappeln
auf der Karte ansehenUmzugskosten berechnen
- Kaltmiete
- 1.200 €
- Zimmer
- 4
- Fläche
- 104 m²
19 Aufrufe
Objekt-ID: 38883137
| Objekttyp: | Doppelhaushälfte |
| Zimmer: | 4 |
| Größe: | 104.00 m² |
| Grundstücksfläche: | 462,00 m² |
| Frei ab: | 1.3.2026 |
Preise & Kosten
| Kaltmiete: | 1.200 € |
| Nebenkosten: | 220 € |
| Gesamtmiete: |
1.420 € |
| Preis/m²: | 11,54 € |
| Mit Mietspiegel Kappeln vergleichen | |
| Kaution: | k.A. |
Immobilie
Einbauküche
Keller
Tiere erlaubt
| Baujahr: | 1956 |
| Befeuerungsart: | Umweltwärme |
| Energieausweis: | Bedarfsausweis |
| Endenergiebedarf: | 98,00 kWh/(m²*a) |
| Energieeffizienzklasse: | C |
Objektbeschreibung
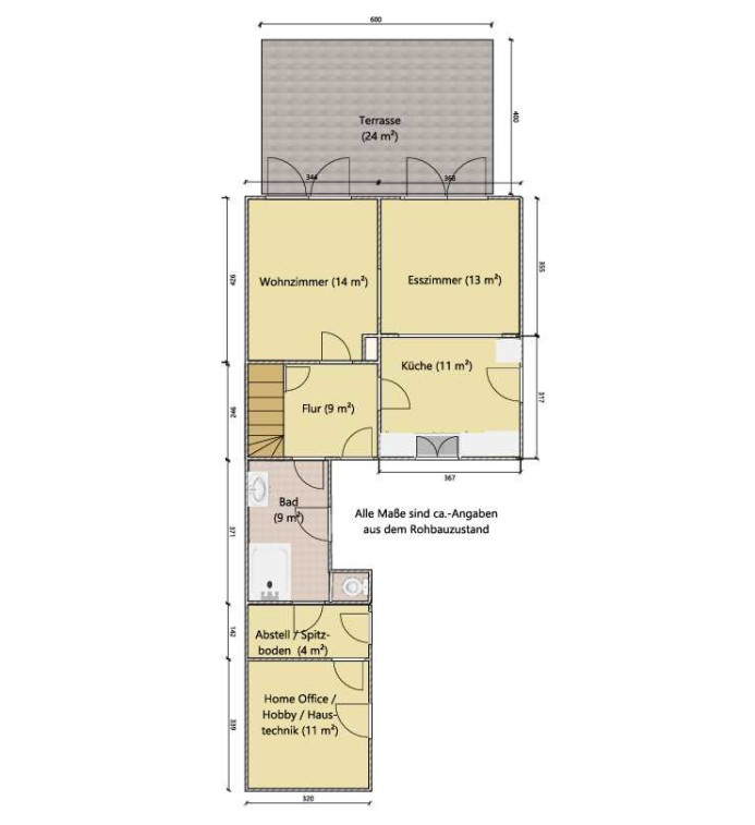
Derzeit wird diese in Kappeln-Ellenberg gelegene Doppelhaushälfte umfassend saniert und daher liegen leider derzeit noch keine aussagekräftigen Fotos vor. Aber der Grundriss und der Lageplan vermitteln einen ersten Eindruck dieser Immobilie. Sie haben hier im Vorfeld die Möglichkeit sich diese Immobilie zu sichern und so zum 01. März 2026 dieses vollständig sanierte Haus als Erstbezug nach Sanierung anzumieten.
Die Ausstattungshighlights in Kürze:
- Erstbezug nach umfassender energetischer Sanierung
- Neue Luft-Wasser-Wärmepumpe der Marke Stiebel-Eltron
- 2-kWp-PV-Anlage mit 2,11 kWh-Speicher
- Fußbodenheizung in allen Räumen
- Neue 3fach-verglaste Fenster, Haustür und Innentüren
- Neuer hochwertige Vinyl-Böden in Holzoptik
- frisch gestrichene weiße Wände
- Einblasdämmung in den Außenwänden
- Vollständig neue Elektrik in allen Räumen
- Neue helle Küche mit neuen Elektrogeräten
- Offenes Wohnkonzept zwischen Küche, Ess- und Wohnzimmer
- Großzügige Terrassentüren mit Zugang zur großen Südterrasse
- Neues Tageslichtbad mit Walk-In-Dusche und diskretem WC
- Im Dachgeschoss zwei helle Zimmer
- Zusätzlicher Raum für Home Office, Hobby und Haustechnik
- separater Außenzugang
- Stauraum im Spitzboden
- Gartenschuppen mit Stromanschluss für z.B. Werkstatt oder Hobby
- Teilkeller
- ca. 462 qm großes Grundstück mit 24qm Südterrasse
- Rasenfläche im hinteren Bereich
- Optional: Kaminofen nach Rücksprache
- 2 Kfz-Stellplätze
- Ca. 200m Luftlinie zur Schlei und zum schwarzen Weg
- Ca. 500m fußläufig zur Kappelner Innenstadt
- Ca. 5 km zur Ostsee
Die Ausstattungshighlights in Kürze:
- Erstbezug nach umfassender energetischer Sanierung
- Neue Luft-Wasser-Wärmepumpe der Marke Stiebel-Eltron
- 2-kWp-PV-Anlage mit 2,11 kWh-Speicher
- Fußbodenheizung in allen Räumen
- Neue 3fach-verglaste Fenster, Haustür und Innentüren
- Neuer hochwertige Vinyl-Böden in Holzoptik
- frisch gestrichene weiße Wände
- Einblasdämmung in den Außenwänden
- Vollständig neue Elektrik in allen Räumen
- Neue helle Küche mit neuen Elektrogeräten
- Offenes Wohnkonzept zwischen Küche, Ess- und Wohnzimmer
- Großzügige Terrassentüren mit Zugang zur großen Südterrasse
- Neues Tageslichtbad mit Walk-In-Dusche und diskretem WC
- Im Dachgeschoss zwei helle Zimmer
- Zusätzlicher Raum für Home Office, Hobby und Haustechnik
- separater Außenzugang
- Stauraum im Spitzboden
- Gartenschuppen mit Stromanschluss für z.B. Werkstatt oder Hobby
- Teilkeller
- ca. 462 qm großes Grundstück mit 24qm Südterrasse
- Rasenfläche im hinteren Bereich
- Optional: Kaminofen nach Rücksprache
- 2 Kfz-Stellplätze
- Ca. 200m Luftlinie zur Schlei und zum schwarzen Weg
- Ca. 500m fußläufig zur Kappelner Innenstadt
- Ca. 5 km zur Ostsee
Lage
24376 KappelnKappeln
Der aktuelle durchschnittliche Quadratmeterpreis beträgt 13,11 €/m² in Kappeln.
Mit Mietspiegel
Kappeln vergleichen
Was kostet dein Umzug?
Du planst einen Umzug? Finde jetzt die günstigste Umzugsfirma in deiner Region!
Umzugskosten berechnen Schütze dich vor Betrug!
Leiste keinerlei Zahlung im Vorraus!
Beachte unsere Sicherheitshinweise zum Thema Immobilienbetrug und lies, woran du solche Anzeigen erkennen kannst und wie du dich vor Betrügern schützt.
Anzeige melden Beachte unsere Sicherheitshinweise zum Thema Immobilienbetrug und lies, woran du solche Anzeigen erkennen kannst und wie du dich vor Betrügern schützt.
*Anzeige
Ähnliche Häuser bei ImmoScout24
Kappeln
- Miete
- 1.050 €
- Zimmer
- 4 Zi.
- Fläche
- 95 Zi.
Weitere Ergebnisse für:
Wohnungen
Kappeln;
Immobilien
Kappeln;
Haus mieten
Kappeln;
WG Zimmer
Kappeln;
Wohnung
Kappeln kaufen;
Haus kaufen
Kappeln;
Immobilienpreise
Kappeln Mietspiegel
Kappeln wohnungsboerse.net übernimmt keine Gewähr für von Dritten gemachte Angaben