
Dachgeschosswohnung in Michendorf
Objekt nicht gefunden
auf der Karte ansehenUmzugskosten berechnen
- Kaltmiete
- 1.419 €
- Zimmer
- 4
- Fläche
- 129 m²
25 Aufrufe
Objekt-ID: 38880898
| Objekttyp: | Dachgeschosswohnung |
| Zimmer: | 4 |
| Größe: | 129.00 m² |
| Frei ab: | nach Vereinbarung |
Preise & Kosten
| Kaltmiete: | k.A. |
| Nebenkosten: | 340 € |
| Gesamtmiete: |
k.A. |
| Preis/m²: | 11,00 € |
| Mit Mietspiegel Michendorf vergleichen | |
| Kaution: | k.A. |
Immobilie
Balkon
Terrasse
Einbauküche
Keller
Tiere erlaubt
| Baujahr: | 1995 |
| Befeuerungsart: | Zentralheizung |
| Energieausweis: | Verbrauchsausweis |
| Endenergiebedarf: | 127,80 kWh/(m²*a) |
| Energieeffizienzklasse: | D |
Objektbeschreibung
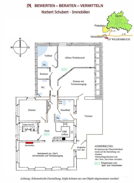
Die hier angebotene Wohnung befindet sich in der obersten Wohnebene des Hauses und weist die typischen Merkmale einer Dachgeschosswohnung auf. Beeindruckend ist der etwa 33 m² große Wohnbereich mit dem Kaminofen und dem Zugang zu der mehr als 20 m² (Realfläche) großen Terrasse.
Neben dem Wohnbereich befindet sich die, zur Diele hin, offene Küche. Im hinteren Teil der Wohnung existieren neben den Wohnräumen zwei Bäder und ein WC sowie eine Kammer. Der ausgebaute Spitzboden wird über eine Klapptreppe erreicht. Das warme Wasser für diese Wohnung wird durch eine neu installierte Wärmepumpe bereitet. Laut Hersteller entstehen bei durchschnittlichem Verbrauch monatliche Stromkosten in Höhe von ca. 40 EUR. Dieser Betrag ist bei der Angabe "Heizkosten/Warmwasser" nicht enthalten.
Neben dem Wohnbereich befindet sich die, zur Diele hin, offene Küche. Im hinteren Teil der Wohnung existieren neben den Wohnräumen zwei Bäder und ein WC sowie eine Kammer. Der ausgebaute Spitzboden wird über eine Klapptreppe erreicht. Das warme Wasser für diese Wohnung wird durch eine neu installierte Wärmepumpe bereitet. Laut Hersteller entstehen bei durchschnittlichem Verbrauch monatliche Stromkosten in Höhe von ca. 40 EUR. Dieser Betrag ist bei der Angabe "Heizkosten/Warmwasser" nicht enthalten.
Lage
Potsdamer Allee14552 Michendorf
Michendorf
Der aktuelle durchschnittliche Quadratmeterpreis beträgt 13,52 €/m² in Michendorf.
Mit Mietspiegel
Michendorf vergleichen
Was kostet dein Umzug?
Du planst einen Umzug? Finde jetzt die günstigste Umzugsfirma in deiner Region!
Umzugskosten berechnen Schütze dich vor Betrug!
Leiste keinerlei Zahlung im Vorraus!
Beachte unsere Sicherheitshinweise zum Thema Immobilienbetrug und lies, woran du solche Anzeigen erkennen kannst und wie du dich vor Betrügern schützt.
Anzeige melden Beachte unsere Sicherheitshinweise zum Thema Immobilienbetrug und lies, woran du solche Anzeigen erkennen kannst und wie du dich vor Betrügern schützt.
*Anzeige
Ähnliche Wohnungen bei ImmoScout24
Michendorf
- Miete
- 1.300 €
- Zimmer
- 4 Zi.
- Fläche
- 120 Zi.
Anbieter
Diese Anzeige ist momentan deaktiviert. Daher ist eine Kontaktaufnahme nicht möglich.
Weitere Ergebnisse für:
Wohnungen
Michendorf;
Immobilien
Michendorf;
Haus mieten
Michendorf;
WG Zimmer
Michendorf;
Wohnung
Michendorf kaufen;
Haus kaufen
Michendorf;
Immobilienpreise
Michendorf Mietspiegel
Michendorf wohnungsboerse.net übernimmt keine Gewähr für von Dritten gemachte Angaben