
Dachgeschosswohnung in Poing
Gemütliches Wohnen im Stahlgruber Wohnpark
auf der Karte ansehenUmzugskosten berechnen
- Kaltmiete
- 900 €
- Zimmer
- 2.5
- Fläche
- 63 m²
5 Aufrufe
Objekt-ID: 38859332
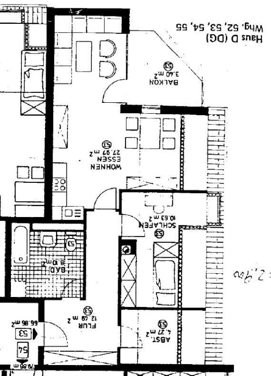
| Objekttyp: | Dachgeschosswohnung |
| Zimmer: | 2.5 |
| Größe: | 63.00 m² |
| Etage: | 3 von 3 |
| Frei ab: | 1.2.2026 |
Preise & Kosten
| Kaltmiete: | 900 € |
| Nebenkosten: | 200 € |
| Gesamtmiete: |
1.100 € |
| Preis/m²: | 14,29 € |
| Mit Mietspiegel Poing vergleichen | |
| Kaution: | k.A. |
Immobilie
Balkon
Einbauküche
Keller
Tiere erlaubt
| Baujahr: | 1985 |
| Befeuerungsart: | Gas |
| Energieausweis: | Verbrauchsausweis |
| Endenergiebedarf: | 98,00 kWh/(m²*a) |
| Energieeffizienzklasse: | C |
Objektbeschreibung
Diese charmante 2-Zimmer-Dachgeschosswohnung befindet sich im 3. Obergeschoss eines
gepflegten Mehrfamilienhauses (ohne Aufzug) im beliebten Stahlgruber Wohnpark in Poing.
Die Wohnung überzeugt durch ihre helle und freundliche Atmosphäre. Das großzügige Wohnzimmer ist offen zur Küche gestaltet und bietet direkten Zugang zum Balkon – ideal zum Entspannen an
sonnigen Tagen.
gepflegten Mehrfamilienhauses (ohne Aufzug) im beliebten Stahlgruber Wohnpark in Poing.
Die Wohnung überzeugt durch ihre helle und freundliche Atmosphäre. Das großzügige Wohnzimmer ist offen zur Küche gestaltet und bietet direkten Zugang zum Balkon – ideal zum Entspannen an
sonnigen Tagen.
Lage
85586 PoingPoing
Der aktuelle durchschnittliche Quadratmeterpreis beträgt 16,93 €/m² in Poing.
Mit Mietspiegel
Poing vergleichen
Was kostet dein Umzug?
Du planst einen Umzug? Finde jetzt die günstigste Umzugsfirma in deiner Region!
Umzugskosten berechnen Schütze dich vor Betrug!
Leiste keinerlei Zahlung im Vorraus!
Beachte unsere Sicherheitshinweise zum Thema Immobilienbetrug und lies, woran du solche Anzeigen erkennen kannst und wie du dich vor Betrügern schützt.
Anzeige melden Beachte unsere Sicherheitshinweise zum Thema Immobilienbetrug und lies, woran du solche Anzeigen erkennen kannst und wie du dich vor Betrügern schützt.
*Anzeige
Ähnliche Wohnungen bei ImmoScout24
Poing
- Miete
- 750 €
- Zimmer
- 2.5 Zi.
- Fläche
- 55 Zi.
Anbieter
Weitere Ergebnisse für:
Wohnungen
Poing;
Immobilien
Poing;
Haus mieten
Poing;
WG Zimmer
Poing;
Wohnung
Poing kaufen;
Haus kaufen
Poing;
Immobilienpreise
Poing Mietspiegel
Poing wohnungsboerse.net übernimmt keine Gewähr für von Dritten gemachte Angaben