
Etagenwohnung in Aachen-Mitte
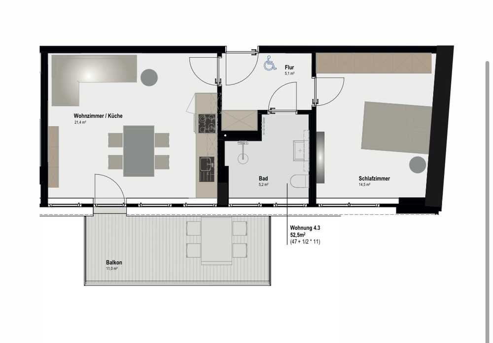
Wohnung 4.3
auf der Karte ansehenUmzugskosten berechnen
- Kaltmiete
 - 761,25 €
 
- Zimmer
 - 2
 
- Fläche
 - 52.5 m²
 
                    7 Aufrufe
                    
                
                Objekt-ID: 38831621
| Objekttyp: | Etagenwohnung | 
| Zimmer: | 2 | 
| Größe: | 52.50 m² | 
| Etage: | 4 von 5 | 
| Frei ab: | 01.03.2026 | 
Preise & Kosten
| Kaltmiete: | 761,25 € | 
| Nebenkosten: | 131,25 € | 
| Gesamtmiete: | 
                                                                                                                    892,50 € | 
                            
| Preis/m²: | 14,50 € | 
| Mit Mietspiegel Aachen vergleichen | |
| Kaution: | k.A. | 
Immobilie
                                    Balkon
                                
                                                            
                                    Einbauküche
                                
                                                            
                                    Aufzug
                                
                                                            
                                    Keller
                                
                                                            
                                    Tiere erlaubt
                                
                                                            
                                    Behindertengerecht
                                
                                                    | Befeuerungsart: | Fernwärme | 
| Energieausweis: | Energieausweis in Vorbereitung | 
Lage
Vereinsstraße52062 Aachen
Aachen Mitte
Der aktuelle durchschnittliche Quadratmeterpreis beträgt 12,83 €/m² in Aachen - Mitte. Der durchschnittliche Quadratmeterpreis in Aachen liegt derzeit bei 12,90 €/m².
                                                            Mit Mietspiegel
                                    Aachen vergleichen
                                                    
                                    Was kostet dein Umzug?
Du planst einen Umzug? Finde jetzt die günstigste Umzugsfirma in deiner Region!
                        Umzugskosten berechnen                    Schütze dich vor Betrug!
                            Leiste keinerlei Zahlung im Vorraus!
                            
Beachte unsere Sicherheitshinweise zum Thema Immobilienbetrug und lies, woran du solche Anzeigen erkennen kannst und wie du dich vor Betrügern schützt.
                        Anzeige melden                    Beachte unsere Sicherheitshinweise zum Thema Immobilienbetrug und lies, woran du solche Anzeigen erkennen kannst und wie du dich vor Betrügern schützt.
            *Anzeige
            
        
        
        Ähnliche Wohnungen bei ImmoScout24
Aachen-Mitte
            - Miete
 - 650 €
 
- Zimmer
 - 2 Zi.
 
- Fläche
 - 45 Zi.
 
Anbieter
Weitere Ergebnisse für:
                Wohnungen
                    Aachen;
                Immobilien
                    Aachen;
                Haus mieten
                    Aachen;
                                    WG Zimmer
                        Aachen;
                                Wohnung
                    Aachen kaufen;
                Haus kaufen
                    Aachen;
                                    Immobilienpreise
                        Aachen                                                    Mietspiegel
                        Aachen                                wohnungsboerse.net übernimmt keine Gewähr für von Dritten gemachte Angaben