
Erdgeschosswohnung in Griesheim
Helle 3-Zimmer Erdgeschosswohnung mit Terrasse in Griesheim
auf der Karte ansehenUmzugskosten berechnen
- Kaltmiete
- 1.250 €
- Zimmer
- 3
- Fläche
- 115 m²
3 Aufrufe
Objekt-ID: 38801142
| Objekttyp: | Erdgeschosswohnung |
| Zimmer: | 3 |
| Größe: | 115.00 m² |
| Etage: | 1 von 1 |
| Frei ab: | 1.2.2026 |
Preise & Kosten
| Kaltmiete: | 1.250 € |
| Nebenkosten: | 400 € |
| Gesamtmiete: |
1.650 € |
| Preis/m²: | 10,87 € |
| Mit Mietspiegel Griesheim vergleichen | |
| Kaution: | k.A. |
Immobilie
Balkon
Terrasse
Einbauküche
Keller
Tiere erlaubt
Behindertengerecht
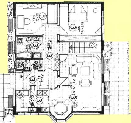
Objektbeschreibung
Charmante 3-Zimmer-Wohnung mit Terrasse
Objektbeschreibung:
Diese gepflegte 3-Zimmer-Wohnung überzeugt durch ihren durchdachten Grundriss und eine helle, freundliche Atmosphäre. Der Wohn- und Essbereich mit großen Fenstern bietet direkten Zugang zur Terrasse und sorgt für ein angenehmes Wohngefühl. Die angrenzende Küche ist kompakt und funktional gestaltet ideal für den Alltag.
Das Schlafzimmer („Eltern“) sowie das Kinderzimmer bieten ausreichend Platz und sind ruhig gelegen. Das Badezimmer ist mit Badewanne, Dusche und Fenster ausgestattet. Ein separates Kellerabteil mit Wasch- und Trockenraum sorgt für zusätzlichen Komfort. Ein weiterer großer Raum im Keller ist mit Tageslichtfenstern ausgestattet und kann durchaus als weiterer Wohnraum genutzt werden.
***Haustiere nach Absprache möglich.***
Vermietung nur mit Liquiditätsauskunft (SCHUFA, Arbeitgeber, Vormieter)
Vermietung ab dem 01.02.2026 möglich. 1.250,00 € zuzüglich Nebenkosten.
Objektbeschreibung:
Diese gepflegte 3-Zimmer-Wohnung überzeugt durch ihren durchdachten Grundriss und eine helle, freundliche Atmosphäre. Der Wohn- und Essbereich mit großen Fenstern bietet direkten Zugang zur Terrasse und sorgt für ein angenehmes Wohngefühl. Die angrenzende Küche ist kompakt und funktional gestaltet ideal für den Alltag.
Das Schlafzimmer („Eltern“) sowie das Kinderzimmer bieten ausreichend Platz und sind ruhig gelegen. Das Badezimmer ist mit Badewanne, Dusche und Fenster ausgestattet. Ein separates Kellerabteil mit Wasch- und Trockenraum sorgt für zusätzlichen Komfort. Ein weiterer großer Raum im Keller ist mit Tageslichtfenstern ausgestattet und kann durchaus als weiterer Wohnraum genutzt werden.
***Haustiere nach Absprache möglich.***
Vermietung nur mit Liquiditätsauskunft (SCHUFA, Arbeitgeber, Vormieter)
Vermietung ab dem 01.02.2026 möglich. 1.250,00 € zuzüglich Nebenkosten.
Lage
64347 GriesheimGriesheim
Der aktuelle durchschnittliche Quadratmeterpreis beträgt 14,21 €/m² in Griesheim.
Mit Mietspiegel
Griesheim vergleichen
Was kostet dein Umzug?
Du planst einen Umzug? Finde jetzt die günstigste Umzugsfirma in deiner Region!
Umzugskosten berechnen Schütze dich vor Betrug!
Leiste keinerlei Zahlung im Vorraus!
Beachte unsere Sicherheitshinweise zum Thema Immobilienbetrug und lies, woran du solche Anzeigen erkennen kannst und wie du dich vor Betrügern schützt.
Anzeige melden Beachte unsere Sicherheitshinweise zum Thema Immobilienbetrug und lies, woran du solche Anzeigen erkennen kannst und wie du dich vor Betrügern schützt.
*Anzeige
Ähnliche Wohnungen bei ImmoScout24
Griesheim
- Miete
- 1.100 €
- Zimmer
- 3 Zi.
- Fläche
- 105 Zi.
Weitere Ergebnisse für:
Wohnungen
Griesheim;
Immobilien
Griesheim;
Haus mieten
Griesheim;
WG Zimmer
Griesheim;
Wohnung
Griesheim kaufen;
Haus kaufen
Griesheim;
Immobilienpreise
Griesheim Mietspiegel
Griesheim wohnungsboerse.net übernimmt keine Gewähr für von Dritten gemachte Angaben