
Etagenwohnung in Neustadt an der Weinstraße-Kernstadt
Neuwertige 3,5-Zimmer Wohnung mit Balkon im 2. OG in Neustadt Kernstadt
auf der Karte ansehenUmzugskosten berechnen
- Kaltmiete
- 1.135 €
- Zimmer
- 3.5
- Fläche
- 119.12 m²
6 Aufrufe
Objekt-ID: 38785057
| Objekttyp: | Etagenwohnung |
| Zimmer: | 3.5 |
| Größe: | 119.12 m² |
| Etage: | 2 von 3 |
| Frei ab: | 1.1.2026 |
Preise & Kosten
| Kaltmiete: | 1.135 € |
| Nebenkosten: | 300 € |
| Gesamtmiete: |
1.435 € |
| Preis/m²: | 9,53 € |
| Mit Mietspiegel Neustadt an der Weinstraße vergleichen | |
| Kaution: | k.A. |
Immobilie
Balkon
Einbauküche
Aufzug
Keller
Behindertengerecht
| Baujahr: | 2023 |
| Befeuerungsart: | Strom |
| Energieausweis: | Bedarfsausweis |
| Endenergiebedarf: | 53,70 kWh/(m²*a) |
| Energieeffizienzklasse: | A+ |
Objektbeschreibung
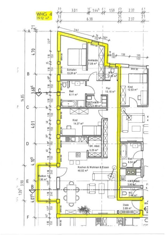
Diese exklusive, neuwertige 3,5-Zimmer-Wohnung mit ca. 119 m² Wohnfläche befindet sich im 2. Obergeschoss eines modernen Mehrfamilienhauses in der Kernstadt von Neustadt an der Weinstraße. Das Haus wurde 2023 erbaut und verfügt über 3 Geschosse. Die Wohnung besticht durch ihre gehobene Innenausstattung und einen großzügigen Balkon, der zum Entspannen einlädt. Ein Aufzug erleichtert den Zugang zu allen Etagen, und die Barrierefreiheit der Wohnung sorgt für höchsten Komfort. Die Wohnung ist mit einer modernen Fußbodenheizung, betrieben durch eine effiziente Wärmepumpe, ausgestattet. Ein Gäste-WC sowie ein Keller bieten zusätzlichen Stauraum und Komfort. Die Küche ist bereits voll ausgestattet. Die Wohnung ist ab dem 1. Januar 2026 verfügbar. Haustiere sind nicht gestattet.
Lage
Talstraße67434 Neustadt an der Weinstraße
Neustadt an der Weinstraße Kernstadt
Der aktuelle durchschnittliche Quadratmeterpreis beträgt 10,60 €/m² in Neustadt an der Weinstraße - Kernstadt. Der durchschnittliche Quadratmeterpreis in Neustadt an der Weinstraße liegt derzeit bei 10,64 €/m².
Mit Mietspiegel
Neustadt an der Weinstraße vergleichen
Was kostet dein Umzug?
Du planst einen Umzug? Finde jetzt die günstigste Umzugsfirma in deiner Region!
Umzugskosten berechnen Schütze dich vor Betrug!
Leiste keinerlei Zahlung im Vorraus!
Beachte unsere Sicherheitshinweise zum Thema Immobilienbetrug und lies, woran du solche Anzeigen erkennen kannst und wie du dich vor Betrügern schützt.
Anzeige melden Beachte unsere Sicherheitshinweise zum Thema Immobilienbetrug und lies, woran du solche Anzeigen erkennen kannst und wie du dich vor Betrügern schützt.
*Anzeige
Ähnliche Wohnungen bei ImmoScout24
Neustadt an der Weinstraße-Kernstadt
- Miete
- 1.000 €
- Zimmer
- 3.5 Zi.
- Fläche
- 110 Zi.
Weitere Ergebnisse für:
Wohnungen
Neustadt an der Weinstraße;
Immobilien
Neustadt an der Weinstraße;
Haus mieten
Neustadt an der Weinstraße;
WG Zimmer
Neustadt an der Weinstraße;
Wohnung
Neustadt an der Weinstraße kaufen;
Haus kaufen
Neustadt an der Weinstraße;
Immobilienpreise
Neustadt an der Weinstraße Mietspiegel
Neustadt an der Weinstraße wohnungsboerse.net übernimmt keine Gewähr für von Dritten gemachte Angaben