
Sonstige in Jesteburg
Helle 2-Zimmer-Wohnung in Jesteburg mit 62 m²
auf der Karte ansehenUmzugskosten berechnen
- Kaltmiete
- 750 €
- Zimmer
- 2
- Fläche
- 61 m²
4 Aufrufe
Objekt-ID: 38728038
| Objekttyp: | Sonstige |
| Zimmer: | 2 |
| Größe: | 61.00 m² |
| Frei ab: | 1.1.2026 |
Preise & Kosten
| Kaltmiete: | 750 € |
| Nebenkosten: | 100 € |
| Gesamtmiete: |
850 € |
| Preis/m²: | 12,30 € |
| Mit Mietspiegel Jesteburg vergleichen | |
| Kaution: | k.A. |
Immobilie
Balkon
Garten
Keller
Tiere erlaubt
| Baujahr: | 1976 |
| Befeuerungsart: | Öl |
Objektbeschreibung
Diese helle und großzügig geschnittene Wohnung im 1. Obergeschoss befindet sich in ruhiger Wohnlage von Jesteburg-Itzenbüttel. Sie überzeugt durch eine praktische Raumaufteilung, viel Tageslicht und zusätzlichen Komfort wie einen Kellerraum und einen Garagenstellplatz. Ideal geeignet für Singles, Paare oder kleine Familien.
Die Offen Einbauküche ist vorhanden und die Wohnung wird zum 1. Januar 2026 verfügbar sein.
Ausstattung & Aufteilung:
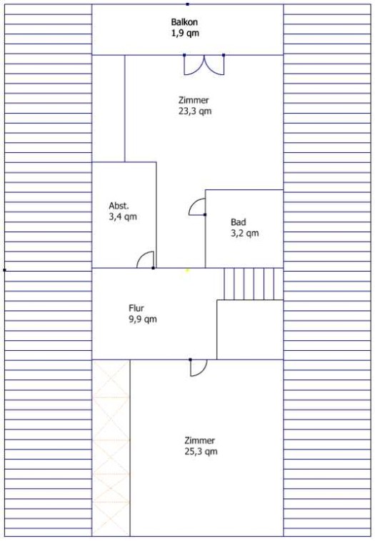
Wohnfläche: ca. 63 m²
Zimmer: 2 ( Schlafzimmer + Wohnzimmer)
Badezimmer: mit Dusche und Fenster (ca. 3,2 m²)
Flur: ca. 9,9 m² mit viel Tageslicht
Balkon: südlich ausgerichtet, ideal zum Entspannen (ca. 1,9 m²)
Raumhöhe: 2,40 m
Abstellraum: innerhalb der Wohnung vorhanden (ca. 3,4 m²)
Kellerraum: zusätzlicher Stauraum im Untergeschoss
Garage: 1 Stellplatz inklusive
Die Wohnung liegt in einer ruhigen Seitenstraße in Jesteburg-Itzenbüttel. Einkaufsmöglichkeiten, Schulen und öffentliche Verkehrsmittel sind in wenigen Minuten erreichbar. Hamburg und Buchholz in der Nordheide sind in ca. 25 Autominuten bequem zu erreichen.
Die Offen Einbauküche ist vorhanden und die Wohnung wird zum 1. Januar 2026 verfügbar sein.
Ausstattung & Aufteilung:
Wohnfläche: ca. 63 m²
Zimmer: 2 ( Schlafzimmer + Wohnzimmer)
Badezimmer: mit Dusche und Fenster (ca. 3,2 m²)
Flur: ca. 9,9 m² mit viel Tageslicht
Balkon: südlich ausgerichtet, ideal zum Entspannen (ca. 1,9 m²)
Raumhöhe: 2,40 m
Abstellraum: innerhalb der Wohnung vorhanden (ca. 3,4 m²)
Kellerraum: zusätzlicher Stauraum im Untergeschoss
Garage: 1 Stellplatz inklusive
Die Wohnung liegt in einer ruhigen Seitenstraße in Jesteburg-Itzenbüttel. Einkaufsmöglichkeiten, Schulen und öffentliche Verkehrsmittel sind in wenigen Minuten erreichbar. Hamburg und Buchholz in der Nordheide sind in ca. 25 Autominuten bequem zu erreichen.
Lage
21266 JesteburgJesteburg
Der aktuelle durchschnittliche Quadratmeterpreis beträgt 13,70 €/m² in Jesteburg.
Mit Mietspiegel
Jesteburg vergleichen
Was kostet dein Umzug?
Du planst einen Umzug? Finde jetzt die günstigste Umzugsfirma in deiner Region!
Umzugskosten berechnen Schütze dich vor Betrug!
Leiste keinerlei Zahlung im Vorraus!
Beachte unsere Sicherheitshinweise zum Thema Immobilienbetrug und lies, woran du solche Anzeigen erkennen kannst und wie du dich vor Betrügern schützt.
Anzeige melden Beachte unsere Sicherheitshinweise zum Thema Immobilienbetrug und lies, woran du solche Anzeigen erkennen kannst und wie du dich vor Betrügern schützt.
*Anzeige
Ähnliche Wohnungen bei ImmoScout24
Jesteburg
- Miete
- 600 €
- Zimmer
- 2 Zi.
- Fläche
- 55 Zi.
Weitere Ergebnisse für:
Wohnungen
Jesteburg;
Immobilien
Jesteburg;
Haus mieten
Jesteburg;
WG Zimmer
Jesteburg;
Wohnung
Jesteburg kaufen;
Haus kaufen
Jesteburg;
Immobilienpreise
Jesteburg Mietspiegel
Jesteburg wohnungsboerse.net übernimmt keine Gewähr für von Dritten gemachte Angaben