
Etagenwohnung in Dortmund-Rahm
Freundliche 3-Zimmer-Wohnung mit Balkon in ruhiger Lage – Dortmund Jungferntal
auf der Karte ansehenUmzugskosten berechnen
- Kaltmiete
- 600 €
- Zimmer
- 3.5
- Fläche
- 69 m²
126 Aufrufe
Objekt-ID: 38704564
| Objekttyp: | Etagenwohnung |
| Zimmer: | 3.5 |
| Größe: | 69.00 m² |
| Etage: | 2 von 2 |
| Frei ab: | 1.1.2026 |
Preise & Kosten
| Kaltmiete: | 600 € |
| Nebenkosten: | 240 € |
| Gesamtmiete: |
840 € |
| Preis/m²: | 8,70 € |
| Mit Mietspiegel Dortmund vergleichen | |
| Kaution: | k.A. |
Immobilie
Balkon
Garten
Keller
Tiere erlaubt
| Baujahr: | 1968 |
| Befeuerungsart: | Zentralheizung |
| Energieausweis: | liegt vor |
Objektbeschreibung
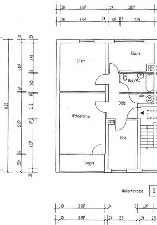
Diese helle und gut geschnittene 3-Zimmer-Wohnung befindet sich im 2. Obergeschoss eines gepflegten Mehrfamilienhauses im beliebten Stadtteil Dortmund-Jungferntal. Mit rund 69 m² Wohnfläche bietet sie ein komfortables Zuhause in ruhiger Umgebung.
Die Wohnung bietet ein helles Wohnzimmer mit Zugang zum Süd-Balkon, zwei Schlafzimmer, eine Küche sowie ein Badezimmer und einem Abstellraum.
Das Wohnzimmer, die Küche, das Bad und der Flur sind gefliest, während in den Schlafräumen Teppichboden für ein wohnliches Ambiente sorgt.
Ein Kellerabteil bietet zusätzlichen Stauraum. Außerdem stehen im Keller eine gemeinschaftliche Waschküche und ein Trockenraum zur Verfügung.
Alle Räume sind mit elektrische außen Rollläden, für zusätzlichen Komfort und Wärmeschutz, ausgestattet.
Im Wohnzimmer, Flur und Badezimmer ist eine helle Paneeldecke verbaut, die mit Einbauspots ausgestattet ist.
Außerdem verfügt die Wohnung über eine Gegensprechanlage.
Ein Gemeinschaftsparkplatz kann von den Bewohnern genutzt werden.
Die Wohnung bietet ein helles Wohnzimmer mit Zugang zum Süd-Balkon, zwei Schlafzimmer, eine Küche sowie ein Badezimmer und einem Abstellraum.
Das Wohnzimmer, die Küche, das Bad und der Flur sind gefliest, während in den Schlafräumen Teppichboden für ein wohnliches Ambiente sorgt.
Ein Kellerabteil bietet zusätzlichen Stauraum. Außerdem stehen im Keller eine gemeinschaftliche Waschküche und ein Trockenraum zur Verfügung.
Alle Räume sind mit elektrische außen Rollläden, für zusätzlichen Komfort und Wärmeschutz, ausgestattet.
Im Wohnzimmer, Flur und Badezimmer ist eine helle Paneeldecke verbaut, die mit Einbauspots ausgestattet ist.
Außerdem verfügt die Wohnung über eine Gegensprechanlage.
Ein Gemeinschaftsparkplatz kann von den Bewohnern genutzt werden.
Lage
Wallachstraße44369 Dortmund
Dortmund Rahm
Der aktuelle durchschnittliche Quadratmeterpreis beträgt 9,50 €/m² in Dortmund - Rahm. Der durchschnittliche Quadratmeterpreis in Dortmund liegt derzeit bei 9,89 €/m².
Mit Mietspiegel
Dortmund vergleichen
Was kostet dein Umzug?
Du planst einen Umzug? Finde jetzt die günstigste Umzugsfirma in deiner Region!
Umzugskosten berechnen Schütze dich vor Betrug!
Leiste keinerlei Zahlung im Vorraus!
Beachte unsere Sicherheitshinweise zum Thema Immobilienbetrug und lies, woran du solche Anzeigen erkennen kannst und wie du dich vor Betrügern schützt.
Anzeige melden Beachte unsere Sicherheitshinweise zum Thema Immobilienbetrug und lies, woran du solche Anzeigen erkennen kannst und wie du dich vor Betrügern schützt.
*Anzeige
Ähnliche Wohnungen bei ImmoScout24
Dortmund-Rahm
- Miete
- 450 €
- Zimmer
- 3.5 Zi.
- Fläche
- 60 Zi.
Weitere Ergebnisse für:
Wohnungen
Dortmund;
Immobilien
Dortmund;
Haus mieten
Dortmund;
WG Zimmer
Dortmund;
Wohnung
Dortmund kaufen;
Haus kaufen
Dortmund;
Immobilienpreise
Dortmund Mietspiegel
Dortmund wohnungsboerse.net übernimmt keine Gewähr für von Dritten gemachte Angaben