
Etagenwohnung in Bayreuth-Bayreuth
Helle 5-Zimmer Studenten-Wohnung im 1. OG in Bayreuth City - zentral & nur 7 Min. zur Uni!
auf der Karte ansehenUmzugskosten berechnen
- Kaltmiete
- 950 €
- Zimmer
- 5
- Fläche
- 74 m²
15 Aufrufe
Objekt-ID: 38702755
| Objekttyp: | Etagenwohnung |
| Zimmer: | 5 |
| Größe: | 74.00 m² |
| Etage: | 1 von 3 |
| Frei ab: | 1.11.2025 |
Preise & Kosten
| Kaltmiete: | 950 € |
| Nebenkosten: | 260 € |
| Gesamtmiete: |
1.210 € |
| Preis/m²: | 12,84 € |
| Mit Mietspiegel Bayreuth vergleichen | |
| Kaution: | k.A. |
Immobilie
Garten
Einbauküche
| Baujahr: | 1794 |
| Befeuerungsart: | Zentralheizung |
| Energieausweis: | Energieausweis nicht notwendig (Denkmalschutz) |
Objektbeschreibung
Diese gemütliche und helle 5-Zimmer-Wohnung liegt in einem charmanten, denkmalgeschützten Stadthaus mitten im Zentrum, ideal für eine WG oder Studierende, die zentral, komfortabel und mit Stil wohnen möchten.
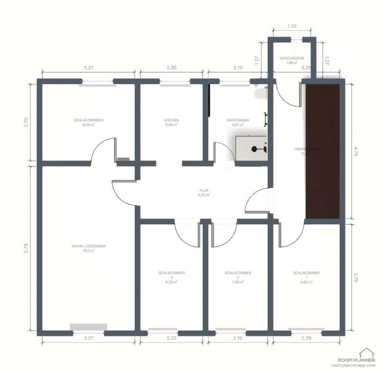
Die Wohnung befindet sich im 1. OG und bietet vier separate Schlafzimmer, ein großes Wohnzimmer mit Essbereich, eine Einbauküche, ein Badezimmer mit Dusche.
Die Einbauküche ist vollständig ausgestattet. Auch Waschmaschine und Trockner sind bereits inklusive.
Jedes Zimmer verfügt über einen Schreibtisch, ideal zum Lernen und Arbeiten.
Im Erdgeschoss befindet sich die beliebte "Hamsterbacke" - ein Unverpackt-Laden, wo du nachhaltig einkaufen kannst.
Die Wohnung befindet sich im 1. OG und bietet vier separate Schlafzimmer, ein großes Wohnzimmer mit Essbereich, eine Einbauküche, ein Badezimmer mit Dusche.
Die Einbauküche ist vollständig ausgestattet. Auch Waschmaschine und Trockner sind bereits inklusive.
Jedes Zimmer verfügt über einen Schreibtisch, ideal zum Lernen und Arbeiten.
Im Erdgeschoss befindet sich die beliebte "Hamsterbacke" - ein Unverpackt-Laden, wo du nachhaltig einkaufen kannst.
Lage
Hohenzollernring95444 Bayreuth
Bayreuth Bayreuth
Der aktuelle durchschnittliche Quadratmeterpreis beträgt 10,10 €/m² in Bayreuth - Bayreuth. Der durchschnittliche Quadratmeterpreis in Bayreuth liegt derzeit bei 12,30 €/m².
Mit Mietspiegel
Bayreuth vergleichen
Was kostet dein Umzug?
Du planst einen Umzug? Finde jetzt die günstigste Umzugsfirma in deiner Region!
Umzugskosten berechnen Schütze dich vor Betrug!
Leiste keinerlei Zahlung im Vorraus!
Beachte unsere Sicherheitshinweise zum Thema Immobilienbetrug und lies, woran du solche Anzeigen erkennen kannst und wie du dich vor Betrügern schützt.
Anzeige melden Beachte unsere Sicherheitshinweise zum Thema Immobilienbetrug und lies, woran du solche Anzeigen erkennen kannst und wie du dich vor Betrügern schützt.
*Anzeige
Ähnliche Wohnungen bei ImmoScout24
Bayreuth-Bayreuth
- Miete
- 800 €
- Zimmer
- 5 Zi.
- Fläche
- 65 Zi.
Weitere Ergebnisse für:
Wohnungen
Bayreuth;
Immobilien
Bayreuth;
Haus mieten
Bayreuth;
WG Zimmer
Bayreuth;
Wohnung
Bayreuth kaufen;
Haus kaufen
Bayreuth;
Immobilienpreise
Bayreuth Mietspiegel
Bayreuth wohnungsboerse.net übernimmt keine Gewähr für von Dritten gemachte Angaben