
Souterrainwohnung in Lörrach
Helle 2-Zimmer Wohnung mit Freisitz in Lörrach-Hauingen
auf der Karte ansehenUmzugskosten berechnen
- Kaltmiete
- 740 €
- Zimmer
- 2
- Fläche
- 66 m²
11 Aufrufe
Objekt-ID: 38691967
Objekttyp: | Souterrainwohnung |
Zimmer: | 2 |
Größe: | 66.00 m² |
Frei ab: | 1.11.2025 |
Preise & Kosten
Kaltmiete: | 740 € |
Nebenkosten: | 150 € |
Gesamtmiete: |
890 € |
Preis/m²: | 11,21 € |
Mit Mietspiegel Lörrach vergleichen | |
Kaution: | k.A. |
Immobilie
Balkon
Garten
Einbauküche
Keller
Befeuerungsart: | Zentralheizung |
Energieausweis: | Verbrauchsausweis |
Endenergiebedarf: | 54,00 kWh/(m²*a) |
Energieeffizienzklasse: | B |
Objektbeschreibung
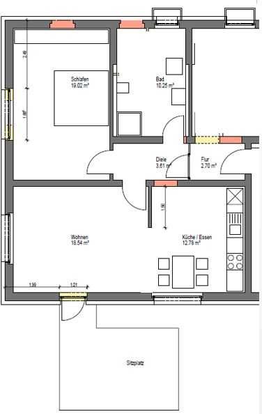
Diese helle 2-Zimmer-Wohnung mit ca. 66 m² Wohnfläche befindet sich in Lörrach-Hauingen in ruhiger Wohnlage. Die offene Küche bildet zusammen mit dem Wohnzimmer einen großzügigen Wohnbereich mit anschließendem Freisitz und Gartenbereich. Eine Einbauküche mit Geschirrspüler ist vorhanden. Die Wohnung verfügt weiter über ein Badezimmer mit Dusche und Waschmaschine. Der sonnige Freisitz lädt zum Entspannen ein und ein eigener Kellerraum bietet zusätzlichen Stauraum.
Die Wohnräume sind mit einem Design-Fußboden ausgestattet, der Flur und das Bad (Dusche) mit modernen zeitlosen Fliesen. Die Wände sind Raufaser weiß gestrichen.
Die Wohnung liegt im Souterrain (Hanglage) eines Mehrfamilienhauses, das energetisch saniert ist und über weitere Garten- und Rasenflächen verfügt. Für Fahrräder etc. gibt es einen überdachten Abstellplatz (Carport).
Die Wohnung wird ab dem 1.11.2025 verfügbar sein. Haustiere sind in dieser Wohnung nicht gestattet.
Die Wohnräume sind mit einem Design-Fußboden ausgestattet, der Flur und das Bad (Dusche) mit modernen zeitlosen Fliesen. Die Wände sind Raufaser weiß gestrichen.
Die Wohnung liegt im Souterrain (Hanglage) eines Mehrfamilienhauses, das energetisch saniert ist und über weitere Garten- und Rasenflächen verfügt. Für Fahrräder etc. gibt es einen überdachten Abstellplatz (Carport).
Die Wohnung wird ab dem 1.11.2025 verfügbar sein. Haustiere sind in dieser Wohnung nicht gestattet.
Lage
79541 LörrachLörrach
Der aktuelle durchschnittliche Quadratmeterpreis beträgt 14,03 €/m² in Lörrach.
Mit Mietspiegel
Loerrach vergleichen
Was kostet dein Umzug?
Du planst einen Umzug? Finde jetzt die günstigste Umzugsfirma in deiner Region!
Umzugskosten berechnen Schütze dich vor Betrug!
Leiste keinerlei Zahlung im Vorraus!
Beachte unsere Sicherheitshinweise zum Thema Immobilienbetrug und lies, woran du solche Anzeigen erkennen kannst und wie du dich vor Betrügern schützt.
Anzeige melden Beachte unsere Sicherheitshinweise zum Thema Immobilienbetrug und lies, woran du solche Anzeigen erkennen kannst und wie du dich vor Betrügern schützt.
*Anzeige

Ähnliche Wohnungen bei ImmoScout24
Lörrach
- Miete
- 600 €
- Zimmer
- 2 Zi.
- Fläche
- 60 Zi.
Weitere Ergebnisse für:
Wohnungen
Lörrach;
Immobilien
Lörrach;
Haus mieten
Lörrach;
WG Zimmer
Lörrach;
Wohnung
Lörrach kaufen;
Haus kaufen
Lörrach;
Immobilienpreise
Lörrach Mietspiegel
Lörrach wohnungsboerse.net übernimmt keine Gewähr für von Dritten gemachte Angaben