
Erdgeschosswohnung in Würzburg-Zellerau
3-Zimmer Erdgeschoss-Wohnung mit Einbauküche!
auf der Karte ansehenUmzugskosten berechnen
- Kaltmiete
- 1.594 €
- Zimmer
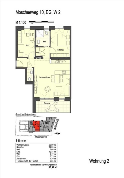
- 3
- Fläche
- 83.91 m²
4 Aufrufe
Objekt-ID: 38681937
Objekttyp: | Erdgeschosswohnung |
Zimmer: | 3 |
Größe: | 83.91 m² |
Frei ab: | 01.12.2025 |
Preise & Kosten
Kaltmiete: | 1.594 € |
Nebenkosten: | 294 € |
Gesamtmiete: |
1.888 € |
Preis/m²: | 19,00 € |
Mit Mietspiegel Würzburg vergleichen | |
Kaution: | k.A. |
Immobilie
Einbauküche
Baujahr: | 2025 |
Befeuerungsart: | Solar |
Energieausweis: | Bedarfsausweis |
Endenergiebedarf: | 55,80 kWh/(m²*a) |
Energieeffizienzklasse: | B |
Objektbeschreibung
Bitte senden Sie Ihre SCHRIFTLICHE ANFRAGE mit einer Kurzbeschreibung, für wen die Wohnung konkret gedacht ist und was Sie genau machen, an Anbieter kontaktieren über das Kontaktformular.
Von telefonischen Anfragen bitte wir freundlichst abzusehen. Wir freuen uns von Ihnen zu lesen!
Überzeugen Sie sich persönlich bei einer Besichtigung von den modernen Wohnungen (aktuell sind noch keine Bilder vorhanden!) mit der Bitte um schriftliche Anfrage!
Von telefonischen Anfragen bitte wir freundlichst abzusehen. Wir freuen uns von Ihnen zu lesen!
Überzeugen Sie sich persönlich bei einer Besichtigung von den modernen Wohnungen (aktuell sind noch keine Bilder vorhanden!) mit der Bitte um schriftliche Anfrage!
Lage
Moscheeweg97082 Würzburg
Würzburg Zellerau
Der aktuelle durchschnittliche Quadratmeterpreis beträgt 13,03 €/m² in Würzburg - Zellerau. Der durchschnittliche Quadratmeterpreis in Würzburg liegt derzeit bei 13,87 €/m².
Mit Mietspiegel
Würzburg vergleichen
Was kostet dein Umzug?
Du planst einen Umzug? Finde jetzt die günstigste Umzugsfirma in deiner Region!
Umzugskosten berechnen Schütze dich vor Betrug!
Leiste keinerlei Zahlung im Vorraus!
Beachte unsere Sicherheitshinweise zum Thema Immobilienbetrug und lies, woran du solche Anzeigen erkennen kannst und wie du dich vor Betrügern schützt.
Anzeige melden Beachte unsere Sicherheitshinweise zum Thema Immobilienbetrug und lies, woran du solche Anzeigen erkennen kannst und wie du dich vor Betrügern schützt.
*Anzeige

Ähnliche Wohnungen bei ImmoScout24
Würzburg-Zellerau
- Miete
- 1.450 €
- Zimmer
- 3 Zi.
- Fläche
- 75 Zi.
Anbieter
Weitere Ergebnisse für:
Wohnungen
Würzburg;
Immobilien
Würzburg;
Haus mieten
Würzburg;
WG Zimmer
Würzburg;
Wohnung
Würzburg kaufen;
Haus kaufen
Würzburg;
Immobilienpreise
Würzburg Mietspiegel
Würzburg wohnungsboerse.net übernimmt keine Gewähr für von Dritten gemachte Angaben