
Sonstige in Fellbach
Erstbezug nach Sanierung: Helle 3-Zi-Wohnung im 4. OG in Fellbach
auf der Karte ansehenUmzugskosten berechnen
- Kaltmiete
- 1.250 €
- Zimmer
- 3
- Fläche
- 85.32 m²
10 Aufrufe
Objekt-ID: 38665705
Objekttyp: | Sonstige |
Zimmer: | 3 |
Größe: | 85.32 m² |
Etage: | 4 von 6 |
Frei ab: | 1.12.2025 |
Preise & Kosten
Kaltmiete: | 1.250 € |
Nebenkosten: | 450 € |
Gesamtmiete: |
1.700 € |
Preis/m²: | 14,65 € |
Mit Mietspiegel Fellbach vergleichen | |
Kaution: | k.A. |
Immobilie
Balkon
Einbauküche
Aufzug
Keller
Baujahr: | 1966 |
Befeuerungsart: | Zentralheizung |
Energieausweis: | Bedarfsausweis |
Endenergiebedarf: | 124,00 kWh/(m²*a) |
Energieeffizienzklasse: | D |
Objektbeschreibung
Diese modern renovierte 3-Zimmer-Wohnung befindet sich in einer sehr gefragten Lage in Fellbach. Die Bushaltestelle liegt direkt vor dem Haus, und die U-Bahn-Station ist in nur 5 Minuten zu Fuß erreichbar – perfekte Anbindung nach Stuttgart und Umgebung.
Das Stuttgarter Stadtzentrum (Mitte) ist in nur 15 Minuten mit dem Auto erreichbar. Einkaufsmöglichkeiten, Restaurants und Geschäfte des täglichen Bedarfs befinden sich in der Nähe – in maximal 10 Minuten Fahrzeit.
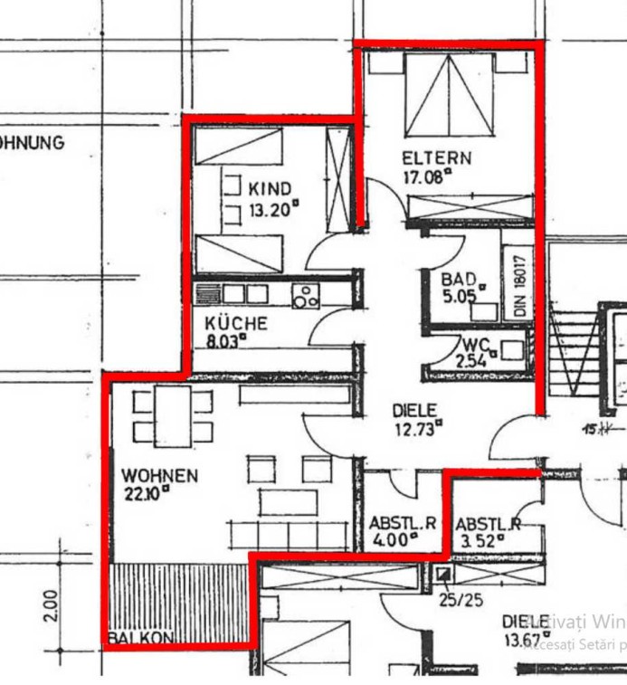
Die Wohnung ist frisch renoviert, lediglich kleine Restarbeiten stehen noch an. Eine voll ausgestattete Einbauküche ist vorhanden und muss vom neuen Mieter übernommen werden.
Ausstattung:
2 helle Schlafzimmer
Großzügiges Wohnzimmer mit Zugang zum Balkon
Badezimmer mit Dusche
Separates WC
Geräumige Abstellkammer
Kellerraum
Glasfaseranschluss für schnelles Internet vorhanden
Aufzug im Haus
Gemeinschaftlicher Gartenbereich
Parkmöglichkeiten auf der Straße vorhanden
Lage:
Ruhige und zentrale Lage in Fellbach, mit sehr guter Verkehrsanbindung und Einkaufsmöglichkeiten in der Nähe.
Sonstiges:
Die Wohnung befindet sich im 4. Obergeschoss eines 6-stöckigen Gebäudes mit Aufzug.
Verfügbar ab 01.12.2025 oder nach Absprache ab 01.01.2026. Miete:
Kaltmiete: 1.250 €
Nebenkosten: 450 € (inkl. Heizung, Warmwasser, Müllentsorgung, Gebäudeversicherung, Treppenhausreinigung und Gartenpflege – Strom ist nicht enthalten)
Das Stuttgarter Stadtzentrum (Mitte) ist in nur 15 Minuten mit dem Auto erreichbar. Einkaufsmöglichkeiten, Restaurants und Geschäfte des täglichen Bedarfs befinden sich in der Nähe – in maximal 10 Minuten Fahrzeit.
Die Wohnung ist frisch renoviert, lediglich kleine Restarbeiten stehen noch an. Eine voll ausgestattete Einbauküche ist vorhanden und muss vom neuen Mieter übernommen werden.
Ausstattung:
2 helle Schlafzimmer
Großzügiges Wohnzimmer mit Zugang zum Balkon
Badezimmer mit Dusche
Separates WC
Geräumige Abstellkammer
Kellerraum
Glasfaseranschluss für schnelles Internet vorhanden
Aufzug im Haus
Gemeinschaftlicher Gartenbereich
Parkmöglichkeiten auf der Straße vorhanden
Lage:
Ruhige und zentrale Lage in Fellbach, mit sehr guter Verkehrsanbindung und Einkaufsmöglichkeiten in der Nähe.
Sonstiges:
Die Wohnung befindet sich im 4. Obergeschoss eines 6-stöckigen Gebäudes mit Aufzug.
Verfügbar ab 01.12.2025 oder nach Absprache ab 01.01.2026. Miete:
Kaltmiete: 1.250 €
Nebenkosten: 450 € (inkl. Heizung, Warmwasser, Müllentsorgung, Gebäudeversicherung, Treppenhausreinigung und Gartenpflege – Strom ist nicht enthalten)
Lage
70734 FellbachFellbach
Der aktuelle durchschnittliche Quadratmeterpreis beträgt 16,55 €/m² in Fellbach.
Mit Mietspiegel
Fellbach vergleichen
Was kostet dein Umzug?
Du planst einen Umzug? Finde jetzt die günstigste Umzugsfirma in deiner Region!
Umzugskosten berechnen Schütze dich vor Betrug!
Leiste keinerlei Zahlung im Vorraus!
Beachte unsere Sicherheitshinweise zum Thema Immobilienbetrug und lies, woran du solche Anzeigen erkennen kannst und wie du dich vor Betrügern schützt.
Anzeige melden Beachte unsere Sicherheitshinweise zum Thema Immobilienbetrug und lies, woran du solche Anzeigen erkennen kannst und wie du dich vor Betrügern schützt.
*Anzeige

Ähnliche Wohnungen bei ImmoScout24
Fellbach
- Miete
- 1.100 €
- Zimmer
- 3 Zi.
- Fläche
- 80 Zi.
Weitere Ergebnisse für:
Wohnungen
Fellbach;
Immobilien
Fellbach;
Haus mieten
Fellbach;
WG Zimmer
Fellbach;
Wohnung
Fellbach kaufen;
Haus kaufen
Fellbach;
Immobilienpreise
Fellbach Mietspiegel
Fellbach wohnungsboerse.net übernimmt keine Gewähr für von Dritten gemachte Angaben