
Etagenwohnung in Nettetal
Attraktive 3-Zimmer-Wohnung mit Balkon in Nettetal-Lobberich ab 01.12.2025
auf der Karte ansehenUmzugskosten berechnen
- Kaltmiete
- 896,50 €
- Zimmer
- 3
- Fläche
- 81.5 m²
3 Aufrufe
Objekt-ID: 38656568
Objekttyp: | Etagenwohnung |
Zimmer: | 3 |
Größe: | 81.50 m² |
Etage: | 1 von 1 |
Frei ab: | 1.12.2025 |
Preise & Kosten
Kaltmiete: | 896,50 € |
Nebenkosten: | 215 € |
Gesamtmiete: |
1.111,50 € |
Preis/m²: | 11,00 € |
Mit Mietspiegel Nettetal vergleichen | |
Kaution: | k.A. |
Immobilie
Balkon
Tiere erlaubt
Baujahr: | 2021 |
Befeuerungsart: | Umweltwärme |
Energieausweis: | liegt vor |
Objektbeschreibung
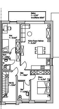
Das Haus ist in 2021 neu gebaut. Es befinden sich nur 3 Wohneinheiten im Haus: jeweils eine Wohnung pro Etage.
Die Wohnung besteht aus 3 Zimmern, einer offen gestalteten Küche, Diele, Bad mit Dusche, Gäste-WC und Abstellraum. Zur Wohnung gehört ein Parkplatz vor dem Hauseingang. Vom geräumigen Balkon aus haben Sie einen traumhaften Blick ins Grüne und auf den Wasserturm Lobberichs.
Ein aktueller Energieausweis liegt zur Besichtigung vor. .
Die Wohnung besteht aus 3 Zimmern, einer offen gestalteten Küche, Diele, Bad mit Dusche, Gäste-WC und Abstellraum. Zur Wohnung gehört ein Parkplatz vor dem Hauseingang. Vom geräumigen Balkon aus haben Sie einen traumhaften Blick ins Grüne und auf den Wasserturm Lobberichs.
Ein aktueller Energieausweis liegt zur Besichtigung vor. .
Lage
41334 NettetalNettetal
Der aktuelle durchschnittliche Quadratmeterpreis beträgt 9,98 €/m² in Nettetal.
Mit Mietspiegel
Nettetal vergleichen
Was kostet dein Umzug?
Du planst einen Umzug? Finde jetzt die günstigste Umzugsfirma in deiner Region!
Umzugskosten berechnen Schütze dich vor Betrug!
Leiste keinerlei Zahlung im Vorraus!
Beachte unsere Sicherheitshinweise zum Thema Immobilienbetrug und lies, woran du solche Anzeigen erkennen kannst und wie du dich vor Betrügern schützt.
Anzeige melden Beachte unsere Sicherheitshinweise zum Thema Immobilienbetrug und lies, woran du solche Anzeigen erkennen kannst und wie du dich vor Betrügern schützt.
*Anzeige

Ähnliche Wohnungen bei ImmoScout24
Nettetal
- Miete
- 750 €
- Zimmer
- 3 Zi.
- Fläche
- 75 Zi.
Weitere Ergebnisse für:
Wohnungen
Nettetal;
Immobilien
Nettetal;
Haus mieten
Nettetal;
WG Zimmer
Nettetal;
Wohnung
Nettetal kaufen;
Haus kaufen
Nettetal;
Immobilienpreise
Nettetal Mietspiegel
Nettetal wohnungsboerse.net übernimmt keine Gewähr für von Dritten gemachte Angaben