
Wohnung in Minden
Attraktive 3-Zimmer-Neubauwohnung mit Balkon in Minden – Erstbezug ab 01.12.2025
auf der Karte ansehenUmzugskosten berechnen
- Kaltmiete
- 1.046 €
- Zimmer
- 3
- Fläche
- 77 m²
5 Aufrufe
Objekt-ID: 38654633
| Objekttyp: | Keine Angabe |
| Zimmer: | 3 |
| Größe: | 77.00 m² |
| Etage: | 3 von 4 |
| Frei ab: | 01.12.2025 |
Preise & Kosten
| Kaltmiete: | 1.046 € |
| Nebenkosten: | 233 € |
| Gesamtmiete: |
1.279 € |
| Preis/m²: | 13,58 € |
| Mit Mietspiegel Minden vergleichen | |
| Kaution: | k.A. |
Immobilie
Balkon
Einbauküche
Aufzug
Keller
Neubau
Tiere erlaubt
| Baujahr: | 2025 |
Objektbeschreibung
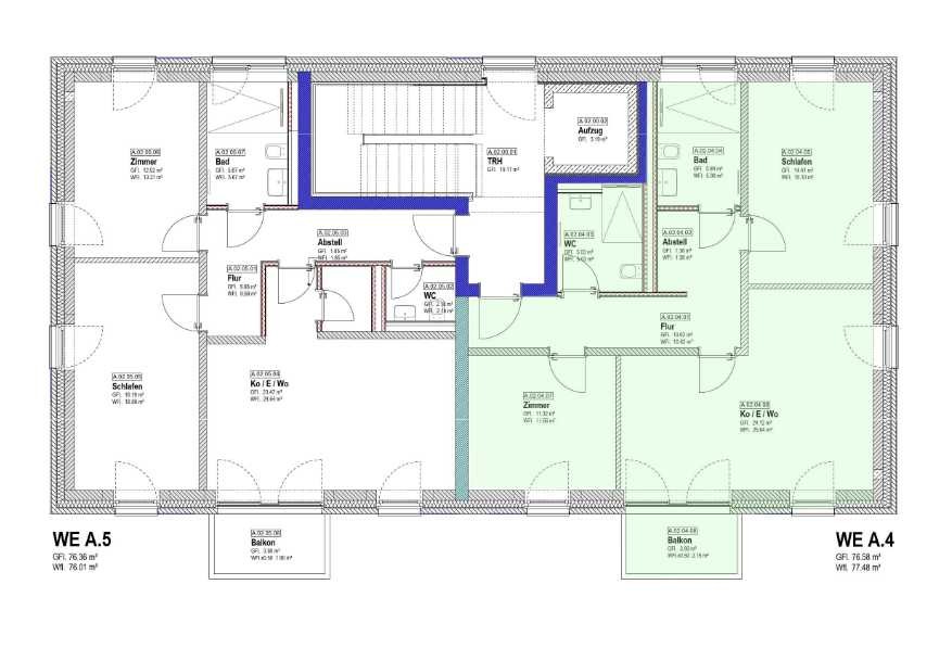
Im 2. Obergeschoss links des Hauses A erwartet Sie eine attraktive 3-Zimmer-Neubauwohnung mit ca. 77 m² Wohnfläche.
Ein offener Wohn- und Essbereich mit Zugang zum Balkon, zwei Schlafzimmer, ein modernes Badezimmer sowie eine hochwertige Einbauküche sorgen für ein komfortables und freundliches Wohnambiente.
Große Fenster, helle Räume und ein praktischer Grundriss bieten Ihnen modernes Wohnen im Erstbezug.
Ein offener Wohn- und Essbereich mit Zugang zum Balkon, zwei Schlafzimmer, ein modernes Badezimmer sowie eine hochwertige Einbauküche sorgen für ein komfortables und freundliches Wohnambiente.
Große Fenster, helle Räume und ein praktischer Grundriss bieten Ihnen modernes Wohnen im Erstbezug.
Lage
32425 MindenMinden
Der aktuelle durchschnittliche Quadratmeterpreis beträgt 9,86 €/m² in Minden.
Mit Mietspiegel
Minden vergleichen
Was kostet dein Umzug?
Du planst einen Umzug? Finde jetzt die günstigste Umzugsfirma in deiner Region!
Umzugskosten berechnen Schütze dich vor Betrug!
Leiste keinerlei Zahlung im Vorraus!
Beachte unsere Sicherheitshinweise zum Thema Immobilienbetrug und lies, woran du solche Anzeigen erkennen kannst und wie du dich vor Betrügern schützt.
Anzeige melden Beachte unsere Sicherheitshinweise zum Thema Immobilienbetrug und lies, woran du solche Anzeigen erkennen kannst und wie du dich vor Betrügern schützt.
*Anzeige
Ähnliche Wohnungen bei ImmoScout24
Minden
- Miete
- 900 €
- Zimmer
- 3 Zi.
- Fläche
- 70 Zi.
Anbieter
Weitere Ergebnisse für:
Wohnungen
Minden;
Immobilien
Minden;
Haus mieten
Minden;
WG Zimmer
Minden;
Wohnung
Minden kaufen;
Haus kaufen
Minden;
Immobilienpreise
Minden Mietspiegel
Minden wohnungsboerse.net übernimmt keine Gewähr für von Dritten gemachte Angaben