
Erdgeschosswohnung in Seligenstadt
Gepflegte 2-Zimmer Erdgeschosswohnung mit Garten in Seligenstadt
auf der Karte ansehenUmzugskosten berechnen
- Kaltmiete
- 750 €
- Zimmer
- 2
- Fläche
- 59 m²
10 Aufrufe
Objekt-ID: 38648702
Objekttyp: | Erdgeschosswohnung |
Zimmer: | 2 |
Größe: | 59.00 m² |
Frei ab: | 1.11.2025 |
Preise & Kosten
Kaltmiete: | 750 € |
Gesamtmiete: | k.A. |
Preis/m²: | 12,71 € |
Mit Mietspiegel Seligenstadt vergleichen | |
Kaution: | k.A. |
Immobilie
Balkon
Garten
Keller
Tiere erlaubt
Objektbeschreibung
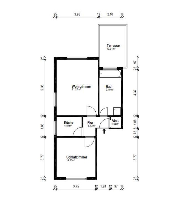
Diese gepflegte 2-Zimmer Erdgeschosswohnung mit ca. 59 m² Wohnfläche befindet sich in Seligenstadt. Sie verfügt über ein großes Badezimmer und einen direkten Zugang zu einem gemeinschaftlich nutzbaren Garten sowie eine eigene Terrasse. Ein Keller bietet zusätzlichen Stauraum. Die Heizkosten sind in den Nebenkosten enthalten. Haustiere sind nach Absprache erlaubt. Die Wohnung ist ab dem 01.11.2025 verfügbar.
Lage
Mittelbeune63500 Seligenstadt
Seligenstadt
Der aktuelle durchschnittliche Quadratmeterpreis beträgt 12,57 €/m² in Seligenstadt.
Mit Mietspiegel
Seligenstadt vergleichen
Was kostet dein Umzug?
Du planst einen Umzug? Finde jetzt die günstigste Umzugsfirma in deiner Region!
Umzugskosten berechnen Schütze dich vor Betrug!
Leiste keinerlei Zahlung im Vorraus!
Beachte unsere Sicherheitshinweise zum Thema Immobilienbetrug und lies, woran du solche Anzeigen erkennen kannst und wie du dich vor Betrügern schützt.
Anzeige melden Beachte unsere Sicherheitshinweise zum Thema Immobilienbetrug und lies, woran du solche Anzeigen erkennen kannst und wie du dich vor Betrügern schützt.
*Anzeige

Ähnliche Wohnungen bei ImmoScout24
Seligenstadt
- Miete
- 600 €
- Zimmer
- 2 Zi.
- Fläche
- 50 Zi.
Weitere Ergebnisse für:
Wohnungen
Seligenstadt;
Immobilien
Seligenstadt;
Haus mieten
Seligenstadt;
WG Zimmer
Seligenstadt;
Wohnung
Seligenstadt kaufen;
Haus kaufen
Seligenstadt;
Immobilienpreise
Seligenstadt Mietspiegel
Seligenstadt wohnungsboerse.net übernimmt keine Gewähr für von Dritten gemachte Angaben