
Loft in Braunschweig-Östliches Ringgebiet
Außergewöhnlich wohnen: großzügiges Loft im Hinterhaus
auf der Karte ansehenUmzugskosten berechnen
- Kaltmiete
- 780 €
- Zimmer
- 2
- Fläche
- 120 m²
15 Aufrufe
Objekt-ID: 38639175
Objekttyp: | Loft |
Zimmer: | 2 |
Größe: | 120.00 m² |
Frei ab: | 11.10.2025 |
Preise & Kosten
Kaltmiete: | 780 € |
Nebenkosten: | 300 € |
Gesamtmiete: |
1.080 € |
Preis/m²: | 6,50 € |
Mit Mietspiegel Braunschweig vergleichen | |
Kaution: | k.A. |
Immobilie
Tiere erlaubt
Baujahr: | 1910 |
Befeuerungsart: | Zentralheizung |
Energieausweis: | Verbrauchsausweis |
Endenergiebedarf: | 129,50 kWh/(m²*a) |
Energieeffizienzklasse: | D |
Objektbeschreibung
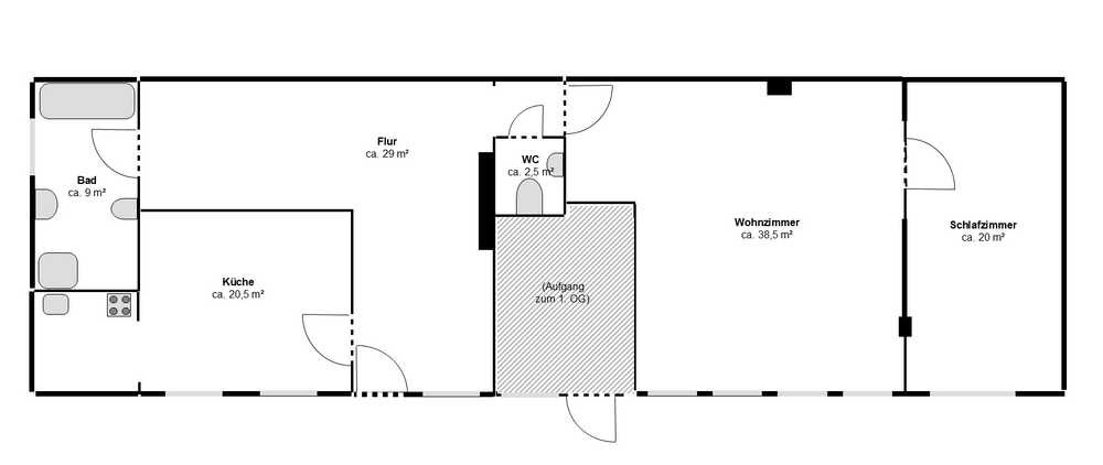
Im Hinterhaus eines wilhelminischen Hauses in der Marienstraße befindest sich im Erdgeschoss die großzügige Loft-Wohnung mit 120 m², die sich auf ein Wohnzimmer, ein Schlafzimmer, einen Flur, eine Küche und ein Bad sowie ein Gäste-WC verteilen.
Dabei bietet auch der geräumige Flur durchaus Platz für Schränke, Regale oder den Schreibtisch. Die Küche gliedert sich in einen Bereich zum Kochen und einen gemütlichen Essbereich.
Das Obergeschoss des Hauses wird tagsüber von einer Kindergruppe genutzt.
Dabei bietet auch der geräumige Flur durchaus Platz für Schränke, Regale oder den Schreibtisch. Die Küche gliedert sich in einen Bereich zum Kochen und einen gemütlichen Essbereich.
Das Obergeschoss des Hauses wird tagsüber von einer Kindergruppe genutzt.
Lage
Marienstraße38104 Braunschweig
Braunschweig Östliches Ringgebiet
Der aktuelle durchschnittliche Quadratmeterpreis beträgt 9,82 €/m² in Braunschweig - Östliches Ringgebiet. Der durchschnittliche Quadratmeterpreis in Braunschweig liegt derzeit bei 10,27 €/m².
Mit Mietspiegel
Braunschweig vergleichen
Was kostet dein Umzug?
Du planst einen Umzug? Finde jetzt die günstigste Umzugsfirma in deiner Region!
Umzugskosten berechnen Schütze dich vor Betrug!
Leiste keinerlei Zahlung im Vorraus!
Beachte unsere Sicherheitshinweise zum Thema Immobilienbetrug und lies, woran du solche Anzeigen erkennen kannst und wie du dich vor Betrügern schützt.
Anzeige melden Beachte unsere Sicherheitshinweise zum Thema Immobilienbetrug und lies, woran du solche Anzeigen erkennen kannst und wie du dich vor Betrügern schützt.
*Anzeige

Ähnliche Wohnungen bei ImmoScout24
Braunschweig-Östliches Ringgebiet
- Miete
- 650 €
- Zimmer
- 2 Zi.
- Fläche
- 110 Zi.
Weitere Ergebnisse für:
Wohnungen
Braunschweig;
Immobilien
Braunschweig;
Haus mieten
Braunschweig;
WG Zimmer
Braunschweig;
Wohnung
Braunschweig kaufen;
Haus kaufen
Braunschweig;
Immobilienpreise
Braunschweig Mietspiegel
Braunschweig wohnungsboerse.net übernimmt keine Gewähr für von Dritten gemachte Angaben