
Einfamilienhaus mieten in Coswig (Anhalt)
Freistehendes 4-Zimmer-Haus mit Stellplatz Coswig (Anhalt)
auf der Karte ansehenUmzugskosten berechnen
- Kaltmiete
- 700 €
- Zimmer
- 4
- Fläche
- 117 m²
10 Aufrufe
Objekt-ID: 38637181
Objekttyp: | Einfamilienhaus |
Zimmer: | 4 |
Größe: | 117.00 m² |
Grundstücksfläche: | 83,00 m² |
Frei ab: | 1.11.2025 |
Preise & Kosten
Kaltmiete: | 700 € |
Nebenkosten: | 250 € |
Gesamtmiete: |
950 € |
Preis/m²: | 5,98 € |
Mit Mietspiegel Coswig (Anhalt) vergleichen | |
Kaution: | k.A. |
Immobilie
Einbauküche
Stellplatz
Tiere erlaubt
Behindertengerecht
Baujahr: | 1981 |
Befeuerungsart: | Öl |
Energieausweis: | Bedarfsausweis |
Objektbeschreibung
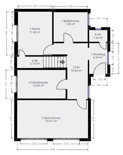
Dieses freistehende Einfamilienhaus mit ca. 117 m² Wohnfläche und 2 Vollgeschossen befindet sich in der Wörpener Hauptstraße 38 in Coswig (Anhalt). Das Haus verfügt über 4 Zimmer und 2 Badezimmer sowie ein Gäste-WC. Die Ausstattung ist einfach gehalten, aber eine Einbauküche ist vorhanden. Ein besonderes Highlight ist die Barrierefreiheit, die den Zugang für alle erleichtert. Ein Stellplatz im Hof bzw vor dem Grundstück ist vorhanden. Haustiere sind nach Absprache erlaubt. Das Haus ist ab dem 1.11.2025 verfügbar.
Was kostet dein Umzug?
Du planst einen Umzug? Finde jetzt die günstigste Umzugsfirma in deiner Region!
Umzugskosten berechnen Schütze dich vor Betrug!
Leiste keinerlei Zahlung im Vorraus!
Beachte unsere Sicherheitshinweise zum Thema Immobilienbetrug und lies, woran du solche Anzeigen erkennen kannst und wie du dich vor Betrügern schützt.
Anzeige melden Beachte unsere Sicherheitshinweise zum Thema Immobilienbetrug und lies, woran du solche Anzeigen erkennen kannst und wie du dich vor Betrügern schützt.
*Anzeige

Ähnliche Häuser bei ImmoScout24
Coswig (Anhalt)
- Miete
- 550 €
- Zimmer
- 4 Zi.
- Fläche
- 110 Zi.
Weitere Ergebnisse für:
Wohnungen
Coswig (Anhalt);
Immobilien
Coswig (Anhalt);
Haus mieten
Coswig (Anhalt);
WG Zimmer
Coswig (Anhalt);
Wohnung
Coswig (Anhalt) kaufen;
Haus kaufen
Coswig (Anhalt);
Immobilienpreise
Coswig (Anhalt) Mietspiegel
Coswig (Anhalt) wohnungsboerse.net übernimmt keine Gewähr für von Dritten gemachte Angaben