
Erdgeschosswohnung in Oberkochen
Moderne,helle 2-Zimmer Wohnung (EG) in Oberkochen
auf der Karte ansehenUmzugskosten berechnen
- Kaltmiete
- 700 €
- Zimmer
- 2
- Fläche
- 50 m²
4 Aufrufe
Objekt-ID: 38618934
Objekttyp: | Erdgeschosswohnung |
Zimmer: | 2 |
Größe: | 50.00 m² |
Frei ab: | 1.11.2025 |
Preise & Kosten
Kaltmiete: | 700 € |
Nebenkosten: | 190 € |
Gesamtmiete: |
890 € |
Preis/m²: | 14,00 € |
Mit Mietspiegel Oberkochen vergleichen | |
Kaution: | k.A. |
Immobilie
Balkon
Einbauküche
Aufzug
Keller
Behindertengerecht
Befeuerungsart: | Holzpellets |
Energieausweis: | liegt vor |
Objektbeschreibung
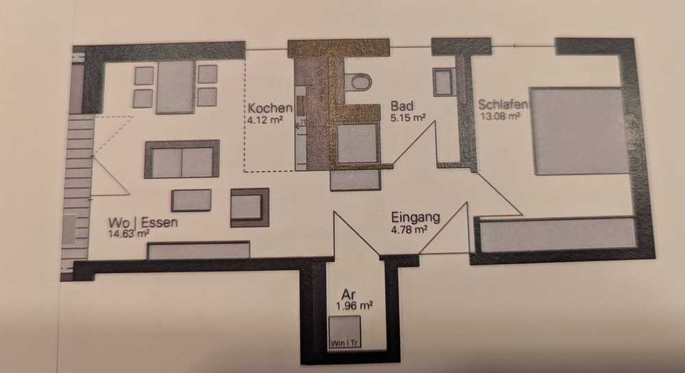
Diese moderne 2-Zimmer Wohnung verfügt ein helles Wohn/Esszimmer, Schlafzimmer, eine Küche mit EBK (Bosch Geräte und hochwertige Granitplatte) , Abstellraum sowie ein Bad mit Dusche. Beheizt wird komfortabel über eine Fußbodenheizung. Hochwertige Ausstattung wie Echtholz-Parkett und Innentüre, kontrollierte Lüftungsanlage, elektr.Raffstore, Terasse mit absl. Stauraum,Aufzug und abschliessbarer Keller. Ein eigener Stellplatz rundet das Angebot ab. Die Wohnung ist ab dem 1.11.2025 verfügbar.
Lage
73447 OberkochenOberkochen
Der aktuelle durchschnittliche Quadratmeterpreis beträgt 11,29 €/m² in Oberkochen.
Mit Mietspiegel
Oberkochen vergleichen
Was kostet dein Umzug?
Du planst einen Umzug? Finde jetzt die günstigste Umzugsfirma in deiner Region!
Umzugskosten berechnen Schütze dich vor Betrug!
Leiste keinerlei Zahlung im Vorraus!
Beachte unsere Sicherheitshinweise zum Thema Immobilienbetrug und lies, woran du solche Anzeigen erkennen kannst und wie du dich vor Betrügern schützt.
Anzeige melden Beachte unsere Sicherheitshinweise zum Thema Immobilienbetrug und lies, woran du solche Anzeigen erkennen kannst und wie du dich vor Betrügern schützt.
*Anzeige

Ähnliche Wohnungen bei ImmoScout24
Oberkochen
- Miete
- 550 €
- Zimmer
- 2 Zi.
- Fläche
- 40 Zi.
Weitere Ergebnisse für:
Wohnungen
Oberkochen;
Immobilien
Oberkochen;
Haus mieten
Oberkochen;
WG Zimmer
Oberkochen;
Wohnung
Oberkochen kaufen;
Haus kaufen
Oberkochen;
Immobilienpreise
Oberkochen Mietspiegel
Oberkochen wohnungsboerse.net übernimmt keine Gewähr für von Dritten gemachte Angaben