
Erdgeschosswohnung in Lünen
Gepflegte 1,5-Zimmer Wohnung im EG in Lünen
auf der Karte ansehenUmzugskosten berechnen
- Kaltmiete
- 400 €
- Zimmer
- 1.5
- Fläche
- 52 m²
29 Aufrufe
Objekt-ID: 38584502
Objekttyp: | Erdgeschosswohnung |
Zimmer: | 1.5 |
Größe: | 52.00 m² |
Frei ab: | 1.1.2026 |
Preise & Kosten
Kaltmiete: | 400 € |
Nebenkosten: | 164 € |
Gesamtmiete: |
564 € |
Preis/m²: | 7,69 € |
Mit Mietspiegel Lünen vergleichen | |
Kaution: | k.A. |
Immobilie
Garten
Keller
Tiere erlaubt
Behindertengerecht
Baujahr: | 1934 |
Energieausweis: | Energieausweis in Vorbereitung |
Objektbeschreibung
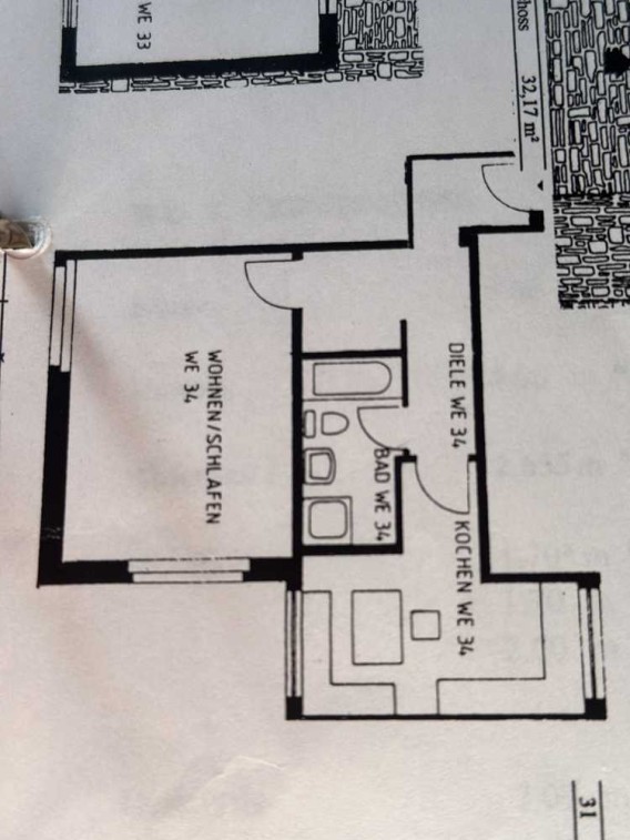
Diese gepflegte 1,5-Zimmer Wohnung mit ca. 52 m² Wohnfläche befindet sich im Erdgeschoss eines charmanten Gebäudes aus dem Jahr 1934 in Lünen. Die Wohnung wurde zuletzt 1996 modernisiert und verfügt über eine normale Innenausstattung. Sie ist barrierefrei zugänglich und bietet somit höchsten Wohnkomfort. Ein eigener Gartenanteil sowie ein Kellerabteil zur Lagerung Ihrer persönlichen Gegenstände sind ebenfalls vorhanden. Die Ölheizung sorgt für wohlige Wärme, wobei die Heizkosten nicht in den Nebenkosten enthalten sind. Ein Stellplatz in der Garage rundet das Angebot ab. Haustiere sind nach Absprache erlaubt. Die Wohnung ist ab dem 1. Januar 2026 verfügbar.
Lage
Marktgasse44534 Lünen
Lünen
Der aktuelle durchschnittliche Quadratmeterpreis beträgt 8,24 €/m² in Lünen.
Mit Mietspiegel
Luenen vergleichen
Was kostet dein Umzug?
Du planst einen Umzug? Finde jetzt die günstigste Umzugsfirma in deiner Region!
Umzugskosten berechnen Schütze dich vor Betrug!
Leiste keinerlei Zahlung im Vorraus!
Beachte unsere Sicherheitshinweise zum Thema Immobilienbetrug und lies, woran du solche Anzeigen erkennen kannst und wie du dich vor Betrügern schützt.
Anzeige melden Beachte unsere Sicherheitshinweise zum Thema Immobilienbetrug und lies, woran du solche Anzeigen erkennen kannst und wie du dich vor Betrügern schützt.
*Anzeige

Ähnliche Wohnungen bei ImmoScout24
Lünen
- Miete
- 250 €
- Zimmer
- 1.5 Zi.
- Fläche
- 45 Zi.
Weitere Ergebnisse für:
Wohnungen
Lünen;
Immobilien
Lünen;
Haus mieten
Lünen;
WG Zimmer
Lünen;
Wohnung
Lünen kaufen;
Haus kaufen
Lünen;
Immobilienpreise
Lünen Mietspiegel
Lünen wohnungsboerse.net übernimmt keine Gewähr für von Dritten gemachte Angaben