
Erdgeschosswohnung in Regensburg-Burgweinting-Harting
Großzügige 5-Zimmer Wohnung mit Garten und Garage in Regensburg
auf der Karte ansehenUmzugskosten berechnen
- Kaltmiete
- 1.585 €
- Zimmer
- 5
- Fläche
- 130 m²
6 Aufrufe
Objekt-ID: 38552331
Objekttyp: | Erdgeschosswohnung |
Zimmer: | 5 |
Größe: | 130.00 m² |
Frei ab: | 1.12.2025 |
Preise & Kosten
Kaltmiete: | 1.585 € |
Gesamtmiete: | k.A. |
Preis/m²: | 12,19 € |
Mit Mietspiegel Regensburg vergleichen | |
Kaution: | k.A. |
Immobilie
Balkon
Garten
Einbauküche
Aufzug
Garage
Keller
Tiere erlaubt
Baujahr: | 2015 |
Befeuerungsart: | Zentralheizung |
Energieausweis: | Energieausweis in Vorbereitung |
Objektbeschreibung
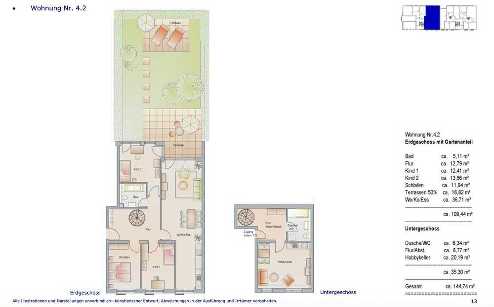
Diese helle 5-Zimmer-Wohnung im Erdgeschoss mit ca. 130 m² Wohnfläche befindet sich in Regensburg, Stadtteil Burgweinting-Harting. Die Wohnung verfügt über 2 Badezimmer, eine Einbauküche und eine Terrasse, die zum Entspannen einlädt. Ein eigener Gartenanteil (ca. 40-50 qm) sowie einen Tiefgaragenstellplatz (Miete inklusive in Nebenkosten) und ein beheizbares Wohnkeller, welches mit der Hauptwohnung über eine Treppe zugänglich ist (voll gefliest mit Wasseranschluss für eine zusätzliche Küche und ein eigener Eingang), bieten zusätzlichen Komfort und Stauraum.
Die Wohnung ist barrierefrei zugänglich und verfügt über einen Aufzug. Haustiere sind nach Absprache erlaubt. Die Wohnung wird ab dem 01.12.2025 verfügbar sein. Langfristiges Mietverhältnis ist wünschenwert. Familien und Nichtrauchern sind ebenso bevorzugt.
Die Wohnung ist barrierefrei zugänglich und verfügt über einen Aufzug. Haustiere sind nach Absprache erlaubt. Die Wohnung wird ab dem 01.12.2025 verfügbar sein. Langfristiges Mietverhältnis ist wünschenwert. Familien und Nichtrauchern sind ebenso bevorzugt.
Lage
Hermann-Höcherlstr.93055 Regensburg
Regensburg Burgweinting-Harting
Der aktuelle durchschnittliche Quadratmeterpreis beträgt 14,34 €/m² in Regensburg - Burgweinting-Harting. Der durchschnittliche Quadratmeterpreis in Regensburg liegt derzeit bei 14,70 €/m².
Mit Mietspiegel
Regensburg vergleichen
Was kostet dein Umzug?
Du planst einen Umzug? Finde jetzt die günstigste Umzugsfirma in deiner Region!
Umzugskosten berechnen Schütze dich vor Betrug!
Leiste keinerlei Zahlung im Vorraus!
Beachte unsere Sicherheitshinweise zum Thema Immobilienbetrug und lies, woran du solche Anzeigen erkennen kannst und wie du dich vor Betrügern schützt.
Anzeige melden Beachte unsere Sicherheitshinweise zum Thema Immobilienbetrug und lies, woran du solche Anzeigen erkennen kannst und wie du dich vor Betrügern schützt.
*Anzeige

Ähnliche Wohnungen bei ImmoScout24
Regensburg-Burgweinting-Harting
- Miete
- 1.450 €
- Zimmer
- 5 Zi.
- Fläche
- 120 Zi.
Weitere Ergebnisse für:
Wohnungen
Regensburg;
Immobilien
Regensburg;
Haus mieten
Regensburg;
WG Zimmer
Regensburg;
Wohnung
Regensburg kaufen;
Haus kaufen
Regensburg;
Immobilienpreise
Regensburg Mietspiegel
Regensburg wohnungsboerse.net übernimmt keine Gewähr für von Dritten gemachte Angaben