
Terrassenwohnung in Bruchsal
2-Zimmer-Wohnung mit Terrasse, Bruchsal Südstadt
auf der Karte ansehenUmzugskosten berechnen
- Kaltmiete
- 660 €
- Zimmer
- 2
- Fläche
- 57 m²
9 Aufrufe
Objekt-ID: 38541334
Objekttyp: | Terrassenwohnung |
Zimmer: | 2 |
Größe: | 57.00 m² |
Frei ab: | 01.12.2025 |
Preise & Kosten
Kaltmiete: | 660 € |
Nebenkosten: | 120 € |
Gesamtmiete: |
780 € |
Preis/m²: | 11,58 € |
Mit Mietspiegel Bruchsal vergleichen | |
Kaution: | k.A. |
Immobilie
Balkon
Terrasse
Einbauküche
Keller
Tiere erlaubt
Befeuerungsart: | Zentralheizung |
Objektbeschreibung
Objektbeschreibung:
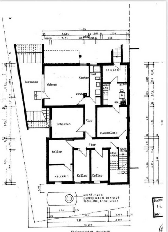
Zur Vermietung steht ab 01.12.2025 eine helle 2-Zimmer-Wohnung im Kellergeschoss eines gepflegten 5-Familienhauses in der Bruchsaler Südstadt. Trotz der Lage im KG verfügt die Wohnung über große Fenster und eine eigene Terrasse.
Wohnfläche: ca. 57 qm
• Wohnzimmer: ca. 20 qm
• Schlafzimmer: ca. 15 qm
Küche: ca. 7 qm
• Bad mit Wanne
• Flur ca. 8 qm
• Terrasse
Zusätzlich:
• Gemeinschaftswaschraum im Haus (Anschluss für eigene Waschmaschine)
• Fahrradkeller vorhanden
Die Wohnung ist lichtdurchflutet, ruhig gelegen und ohne Möbel.
Die vorhandene Küche kann nach Absprache kostenfrei ubernommen werden.
Lage:
• Ruhige Wohngegend in der Bruchsaler Südstadt
• Einkaufsmöglichkeiten in wenigen Gehminuten
erreichbar
• Kindergarten, Schule und ÖPNV-Haltestelle in unmittelbarer Nähe
Ca. 2 km bis zur Stadtmitte und Fußgängerzone
• Schloss Bruchsal mit Schlossgarten ca. 2,5 km entfernt
• Bahnhof Bruchsal ca. 2 km
• Gute Anbindung an B3 und B35, Autobahn A5 in ca. 5
km
Wichtige Hinweise:
• Nichtraucherwohnung
• Anfragen nur mit Angaben zur Personenzahl, Haustieren (falls vorhanden) und einer kurzen Vorstellung. Alle anderen Anfragen werden nicht beantwortet.
• Bei Mietvertragsabschluss sind Einkommensnachweise der letzten 3 Monate vorzulegen.
Per Whats App: +49 1521 5398447
Zur Vermietung steht ab 01.12.2025 eine helle 2-Zimmer-Wohnung im Kellergeschoss eines gepflegten 5-Familienhauses in der Bruchsaler Südstadt. Trotz der Lage im KG verfügt die Wohnung über große Fenster und eine eigene Terrasse.
Wohnfläche: ca. 57 qm
• Wohnzimmer: ca. 20 qm
• Schlafzimmer: ca. 15 qm
Küche: ca. 7 qm
• Bad mit Wanne
• Flur ca. 8 qm
• Terrasse
Zusätzlich:
• Gemeinschaftswaschraum im Haus (Anschluss für eigene Waschmaschine)
• Fahrradkeller vorhanden
Die Wohnung ist lichtdurchflutet, ruhig gelegen und ohne Möbel.
Die vorhandene Küche kann nach Absprache kostenfrei ubernommen werden.
Lage:
• Ruhige Wohngegend in der Bruchsaler Südstadt
• Einkaufsmöglichkeiten in wenigen Gehminuten
erreichbar
• Kindergarten, Schule und ÖPNV-Haltestelle in unmittelbarer Nähe
Ca. 2 km bis zur Stadtmitte und Fußgängerzone
• Schloss Bruchsal mit Schlossgarten ca. 2,5 km entfernt
• Bahnhof Bruchsal ca. 2 km
• Gute Anbindung an B3 und B35, Autobahn A5 in ca. 5
km
Wichtige Hinweise:
• Nichtraucherwohnung
• Anfragen nur mit Angaben zur Personenzahl, Haustieren (falls vorhanden) und einer kurzen Vorstellung. Alle anderen Anfragen werden nicht beantwortet.
• Bei Mietvertragsabschluss sind Einkommensnachweise der letzten 3 Monate vorzulegen.
Per Whats App: +49 1521 5398447
Lage
76646 BruchsalBruchsal
Der aktuelle durchschnittliche Quadratmeterpreis beträgt 11,70 €/m² in Bruchsal.
Mit Mietspiegel
Bruchsal vergleichen
Was kostet dein Umzug?
Du planst einen Umzug? Finde jetzt die günstigste Umzugsfirma in deiner Region!
Umzugskosten berechnen Schütze dich vor Betrug!
Leiste keinerlei Zahlung im Vorraus!
Beachte unsere Sicherheitshinweise zum Thema Immobilienbetrug und lies, woran du solche Anzeigen erkennen kannst und wie du dich vor Betrügern schützt.
Anzeige melden Beachte unsere Sicherheitshinweise zum Thema Immobilienbetrug und lies, woran du solche Anzeigen erkennen kannst und wie du dich vor Betrügern schützt.
*Anzeige

Ähnliche Wohnungen bei ImmoScout24
Bruchsal
- Miete
- 550 €
- Zimmer
- 2 Zi.
- Fläche
- 50 Zi.
Weitere Ergebnisse für:
Wohnungen
Bruchsal;
Immobilien
Bruchsal;
Haus mieten
Bruchsal;
WG Zimmer
Bruchsal;
Wohnung
Bruchsal kaufen;
Haus kaufen
Bruchsal;
Immobilienpreise
Bruchsal Mietspiegel
Bruchsal wohnungsboerse.net übernimmt keine Gewähr für von Dritten gemachte Angaben