
Erdgeschosswohnung in Krefeld-Dießem/Lehmheide
Frisch renovierte 2-Zimmerwohnung Gladbacher Straße (Nähe Helios-Kliniken)
auf der Karte ansehenUmzugskosten berechnen
- Kaltmiete
- 550 €
- Zimmer
- 2
- Fläche
- 51.78 m²
3 Aufrufe
Objekt-ID: 38536909
Objekttyp: | Erdgeschosswohnung |
Zimmer: | 2 |
Größe: | 51.78 m² |
Frei ab: | 01.11.2025 |
Preise & Kosten
Kaltmiete: | 550 € |
Gesamtmiete: | k.A. |
Preis/m²: | 10,62 € |
Mit Mietspiegel Krefeld vergleichen | |
Kaution: | k.A. |
Immobilie
Baujahr: | 1920 |
Befeuerungsart: | Zentralheizung |
Energieausweis: | Bedarfsausweis |
Endenergiebedarf: | 100,10 kWh/(m²*a) |
Energieeffizienzklasse: | D |
Objektbeschreibung
Die hier angebotene 2-Zimmer-Wohnung mit ca. 52 m² befindet sich in einem gepflegten Mehrfamilienhaus in der Gladbacher Straße in Krefeld (Nähe Helios-Kliniken). Die Wohnung wird aktuell umfassend renoviert und in modernem, bezugsfertigem Zustand übergeben.
Im Zuge der Renovierung werden folgende Arbeiten ausgeführt:
frisch gestrichene Wände und Decken, neue Fußleisten
neuer Laminatboden in Holzoptik
Austausch sämtlicher Steckdosen und Lichtschalter
neue Innentüren
modernisiertes Badezimmer
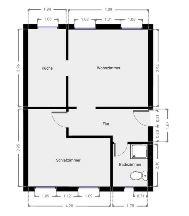
Die Wohnung verfügt über einen praktischen Grundriss mit einem hellen Wohnzimmer, einem separaten Schlafzimmer, einer Küche sowie einem modernen Bad. Dank der umfassenden Renovierung bietet die Wohnung zeitgemäßen Wohnkomfort in einem charmanten Altbau.
Beheizt wird die Wohnung über eine Gasetagenheizung; die angegebenen Heizkosten sind ein Schätzwert. Die Abrechnung erfolgt direkt mit Ihrem Versorger.
Im Zuge der Renovierung werden folgende Arbeiten ausgeführt:
frisch gestrichene Wände und Decken, neue Fußleisten
neuer Laminatboden in Holzoptik
Austausch sämtlicher Steckdosen und Lichtschalter
neue Innentüren
modernisiertes Badezimmer
Die Wohnung verfügt über einen praktischen Grundriss mit einem hellen Wohnzimmer, einem separaten Schlafzimmer, einer Küche sowie einem modernen Bad. Dank der umfassenden Renovierung bietet die Wohnung zeitgemäßen Wohnkomfort in einem charmanten Altbau.
Beheizt wird die Wohnung über eine Gasetagenheizung; die angegebenen Heizkosten sind ein Schätzwert. Die Abrechnung erfolgt direkt mit Ihrem Versorger.
Lage
47805 KrefeldKrefeld Dießem/Lehmheide
Der aktuelle durchschnittliche Quadratmeterpreis beträgt 9,81 €/m² in Krefeld - Dießem/Lehmheide. Der durchschnittliche Quadratmeterpreis in Krefeld liegt derzeit bei 9,99 €/m².
Mit Mietspiegel
Krefeld vergleichen
Was kostet dein Umzug?
Du planst einen Umzug? Finde jetzt die günstigste Umzugsfirma in deiner Region!
Umzugskosten berechnen Schütze dich vor Betrug!
Leiste keinerlei Zahlung im Vorraus!
Beachte unsere Sicherheitshinweise zum Thema Immobilienbetrug und lies, woran du solche Anzeigen erkennen kannst und wie du dich vor Betrügern schützt.
Anzeige melden Beachte unsere Sicherheitshinweise zum Thema Immobilienbetrug und lies, woran du solche Anzeigen erkennen kannst und wie du dich vor Betrügern schützt.
*Anzeige

Ähnliche Wohnungen bei ImmoScout24
Krefeld-Dießem/Lehmheide
- Miete
- 400 €
- Zimmer
- 2 Zi.
- Fläche
- 45 Zi.
Anbieter
Weitere Ergebnisse für:
Wohnungen
Krefeld;
Immobilien
Krefeld;
Haus mieten
Krefeld;
WG Zimmer
Krefeld;
Wohnung
Krefeld kaufen;
Haus kaufen
Krefeld;
Immobilienpreise
Krefeld Mietspiegel
Krefeld wohnungsboerse.net übernimmt keine Gewähr für von Dritten gemachte Angaben