
Etagenwohnung in Ensch
Moderne und helle Wohnung mit großzügiger Wohnküche
auf der Karte ansehenUmzugskosten berechnen
- Kaltmiete
- 1.000 €
- Zimmer
- 3
- Fläche
- 101 m²
16 Aufrufe
Objekt-ID: 38529710
Objekttyp: | Etagenwohnung |
Zimmer: | 3 |
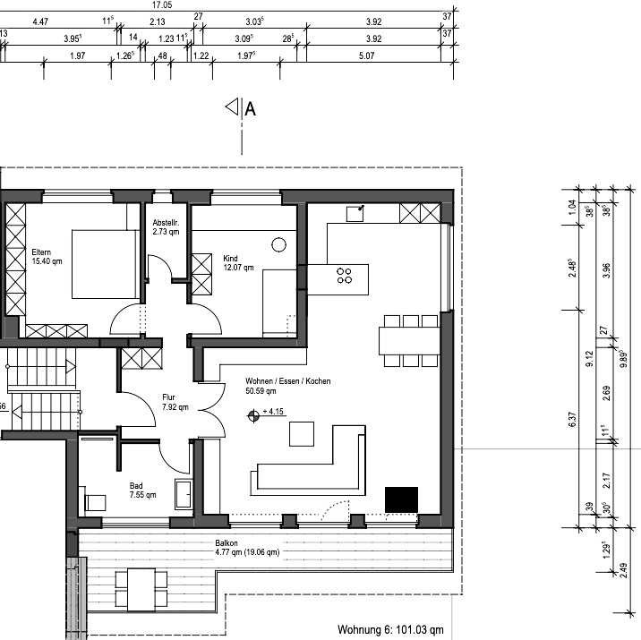
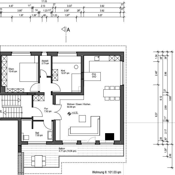
Größe: | 101.00 m² |
Etage: | 2 von 3 |
Frei ab: | 1.12.2025 |
Preise & Kosten
Kaltmiete: | 1.000 € |
Nebenkosten: | 180 € |
Gesamtmiete: |
1.180 € |
Preis/m²: | 9,90 € |
Kaution: | k.A. |
Immobilie
Balkon
Garten
Wohnküche
Einbauküche
Keller
Tiere erlaubt
Baujahr: | 1970 |
Befeuerungsart: | Zentralheizung |
Energieausweis: | Verbrauchsausweis |
Endenergiebedarf: | 109,90 kWh/(m²*a) |
Energieeffizienzklasse: | D |
Objektbeschreibung
Die Wohnung wurde 2016 komplett renoviert und bietet ein modernes Bad, viel Platz und einen schönen Blick über das Moseltal. Die beiden Zimmer blicken Richtung Garten, das Schlafzimmer bietet viel Stauraum im Einbauschrank. Das zweite Zimmer kann flexibel genutzt werden. Der große Wohnbereich mit offener Einbauküche führt auf den überdachten Balkon Richtung Osten und Blick Richtung Moseltal. Ein Abstellraum in der Wohnung und ein eigener Kellerraum bieten viel praktischen Stauraum.
Zusätzlich zur Garage sind weitere Abstellmöglichkeiten vorhanden.
Im Keller gibt es zudem einen Waschraum für Ihre Waschmaschine.
Der große Garten kann gemeinsam mit den anderen Mietparteien genutzt werden.
Zusätzlich zur Garage sind weitere Abstellmöglichkeiten vorhanden.
Im Keller gibt es zudem einen Waschraum für Ihre Waschmaschine.
Der große Garten kann gemeinsam mit den anderen Mietparteien genutzt werden.
Was kostet dein Umzug?
Du planst einen Umzug? Finde jetzt die günstigste Umzugsfirma in deiner Region!
Umzugskosten berechnen Schütze dich vor Betrug!
Leiste keinerlei Zahlung im Vorraus!
Beachte unsere Sicherheitshinweise zum Thema Immobilienbetrug und lies, woran du solche Anzeigen erkennen kannst und wie du dich vor Betrügern schützt.
Anzeige melden Beachte unsere Sicherheitshinweise zum Thema Immobilienbetrug und lies, woran du solche Anzeigen erkennen kannst und wie du dich vor Betrügern schützt.
*Anzeige

Ähnliche Wohnungen bei ImmoScout24
Ensch
- Miete
- 850 €
- Zimmer
- 3 Zi.
- Fläche
- 95 Zi.
Weitere Ergebnisse für:
Wohnungen
Ensch;
Immobilien
Ensch;
Haus mieten
Ensch;
WG Zimmer
Ensch;
Wohnung
Ensch kaufen;
Haus kaufen
Ensch;
wohnungsboerse.net übernimmt keine Gewähr für von Dritten gemachte Angaben