
Maisonette-Wohnung in Simmerath
Erstbezug im Grünen – Wohnen im KfW-40-EE-Effizienzhaus mit Komfort & Gemeinschaft WE1
auf der Karte ansehenUmzugskosten berechnen
- Kaltmiete
- 1.430 €
- Zimmer
- 4
- Fläche
- 111 m²
10 Aufrufe
Objekt-ID: 38526437
Objekttyp: | Maisonette-Wohnung |
Zimmer: | 4 |
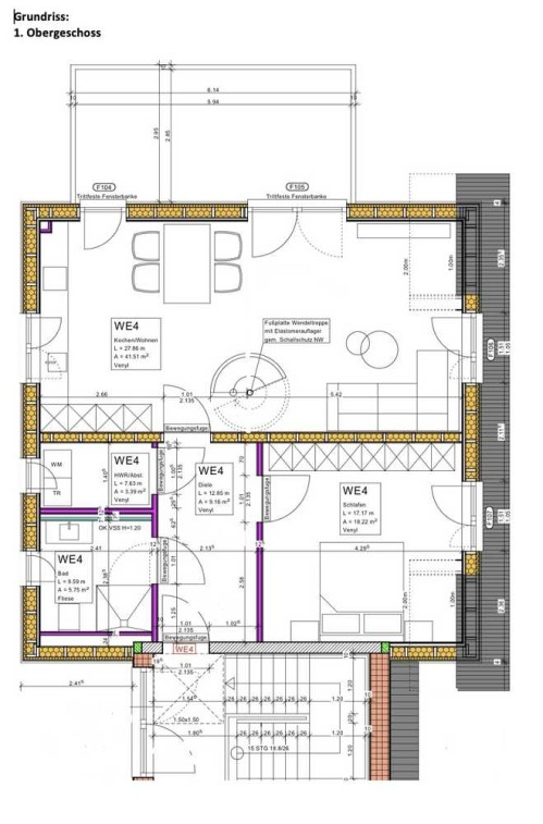
Größe: | 111.00 m² |
Frei ab: | 1.11.2025 |
Preise & Kosten
Kaltmiete: | 1.430 € |
Nebenkosten: | 200 € |
Gesamtmiete: |
1.630 € |
Preis/m²: | 12,88 € |
Mit Mietspiegel Simmerath vergleichen | |
Kaution: | k.A. |
Immobilie
Balkon
Garten
Keller
Tiere erlaubt
Baujahr: | 2025 |
Befeuerungsart: | Strom |
Energieausweis: | Verbrauchsausweis |
Objektbeschreibung
Exklusives Wohnen in einem modernen, freistehenden Vierparteienhaus mit großem Garten
In schöner Lage entsteht ein hochwertiger, kernsanierter Altbau mit verbundenem Neubau mit insgesamt vier Wohneinheiten – ideal für alle, die auf Nachhaltigkeit, Lebensqualität und ein gutes Miteinander Wert legen.
Das erwartet Sie:
• Eigener kleiner Garten – privater Außenbereich
• Großer Gemeinschaftsgarten – für Begegnung, Spiel & Entspannung
• KfW-Effizienzhaus 40 EE – nachhaltig und effizient
• Moderne Wärmepumpe in Kombination mit Fußbodenheizung – minimale Nebenkosten für Heizung & Warmwasser
• Eigenes Kellerabteil für jede Wohnung
• Zwei Stellplätze mit einer Ladesäule für E-Fahrzeuge je 30€
• Durchdachte Grundrisse, helle Räume und hoher Wohnkomfort
Ihre Vorteile auf einen Blick:
✔ gute Anbindung an den Nachbarort Simmerath mit guter Infrastruktur
✔ Haus mit vier Parteien – viel Privatsphäre & wenig Lärm
✔ Ideal für Paare, Familien und alle, die bewusst wohnen möchten
✔ Zukunftssicher durch moderne, energieeffiziente Bauweise
In schöner Lage entsteht ein hochwertiger, kernsanierter Altbau mit verbundenem Neubau mit insgesamt vier Wohneinheiten – ideal für alle, die auf Nachhaltigkeit, Lebensqualität und ein gutes Miteinander Wert legen.
Das erwartet Sie:
• Eigener kleiner Garten – privater Außenbereich
• Großer Gemeinschaftsgarten – für Begegnung, Spiel & Entspannung
• KfW-Effizienzhaus 40 EE – nachhaltig und effizient
• Moderne Wärmepumpe in Kombination mit Fußbodenheizung – minimale Nebenkosten für Heizung & Warmwasser
• Eigenes Kellerabteil für jede Wohnung
• Zwei Stellplätze mit einer Ladesäule für E-Fahrzeuge je 30€
• Durchdachte Grundrisse, helle Räume und hoher Wohnkomfort
Ihre Vorteile auf einen Blick:
✔ gute Anbindung an den Nachbarort Simmerath mit guter Infrastruktur
✔ Haus mit vier Parteien – viel Privatsphäre & wenig Lärm
✔ Ideal für Paare, Familien und alle, die bewusst wohnen möchten
✔ Zukunftssicher durch moderne, energieeffiziente Bauweise
Lage
Bundesstraße52152 Simmerath
Simmerath
Der aktuelle durchschnittliche Quadratmeterpreis beträgt 9,58 €/m² in Simmerath.
Mit Mietspiegel
Simmerath vergleichen
Was kostet dein Umzug?
Du planst einen Umzug? Finde jetzt die günstigste Umzugsfirma in deiner Region!
Umzugskosten berechnen Schütze dich vor Betrug!
Leiste keinerlei Zahlung im Vorraus!
Beachte unsere Sicherheitshinweise zum Thema Immobilienbetrug und lies, woran du solche Anzeigen erkennen kannst und wie du dich vor Betrügern schützt.
Anzeige melden Beachte unsere Sicherheitshinweise zum Thema Immobilienbetrug und lies, woran du solche Anzeigen erkennen kannst und wie du dich vor Betrügern schützt.
*Anzeige

Ähnliche Wohnungen bei ImmoScout24
Simmerath
- Miete
- 1.300 €
- Zimmer
- 4 Zi.
- Fläche
- 105 Zi.
Weitere Ergebnisse für:
Wohnungen
Simmerath;
Immobilien
Simmerath;
Haus mieten
Simmerath;
WG Zimmer
Simmerath;
Wohnung
Simmerath kaufen;
Haus kaufen
Simmerath;
Immobilienpreise
Simmerath Mietspiegel
Simmerath wohnungsboerse.net übernimmt keine Gewähr für von Dritten gemachte Angaben