
Erdgeschosswohnung in Würselen
Objekt nicht gefunden
auf der Karte ansehenUmzugskosten berechnen
- Kaltmiete
- 975 €
- Zimmer
- 3
- Fläche
- 98 m²
11 Aufrufe
Objekt-ID: 38499897
Objekttyp: | Erdgeschosswohnung |
Zimmer: | 3 |
Größe: | 98.00 m² |
Frei ab: | Ab sofort bezugsfrei |
Preise & Kosten
Kaltmiete: | k.A. |
Nebenkosten: | 240 € |
Gesamtmiete: |
k.A. |
Preis/m²: | 9,95 € |
Mit Mietspiegel Würselen vergleichen | |
Kaution: | k.A. |
Immobilie
Balkon
Garten
Aufzug
Tiere erlaubt
Behindertengerecht
Befeuerungsart: | Erdwärme |
Objektbeschreibung
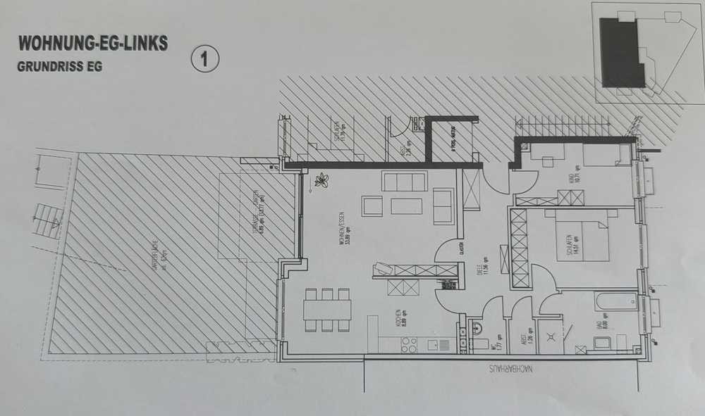
3-Zimmer-Wohnung mit Terrasse, Garten und Tiefgaragenstellplatz
Diese schöne Erdgeschosswohnung bietet 98 m² Wohnfläche und überzeugt mit einer großzügigen Raumaufteilung:
• 3 helle Zimmer
• separate Küche
• Badezimmer mit Wanne
• zusätzliches WC
• Terrasse mit eigenem Garten
Ein Stellplatz in der Tiefgarage ist ebenfalls vorhanden.
Diese schöne Erdgeschosswohnung bietet 98 m² Wohnfläche und überzeugt mit einer großzügigen Raumaufteilung:
• 3 helle Zimmer
• separate Küche
• Badezimmer mit Wanne
• zusätzliches WC
• Terrasse mit eigenem Garten
Ein Stellplatz in der Tiefgarage ist ebenfalls vorhanden.
Lage
Mauerfeldchen52146 Würselen
Würselen
Der aktuelle durchschnittliche Quadratmeterpreis beträgt 9,79 €/m² in Würselen.
Mit Mietspiegel
Wuerselen vergleichen
Was kostet dein Umzug?
Du planst einen Umzug? Finde jetzt die günstigste Umzugsfirma in deiner Region!
Umzugskosten berechnen Schütze dich vor Betrug!
Leiste keinerlei Zahlung im Vorraus!
Beachte unsere Sicherheitshinweise zum Thema Immobilienbetrug und lies, woran du solche Anzeigen erkennen kannst und wie du dich vor Betrügern schützt.
Anzeige melden Beachte unsere Sicherheitshinweise zum Thema Immobilienbetrug und lies, woran du solche Anzeigen erkennen kannst und wie du dich vor Betrügern schützt.
*Anzeige

Ähnliche Wohnungen bei ImmoScout24
Würselen
- Miete
- 850 €
- Zimmer
- 3 Zi.
- Fläche
- 90 Zi.
Anbieter
privater Anbieter
Diese Anzeige ist momentan deaktiviert. Daher ist eine Kontaktaufnahme nicht möglich.
Weitere Ergebnisse für:
Wohnungen
Würselen;
Immobilien
Würselen;
Haus mieten
Würselen;
WG Zimmer
Würselen;
Wohnung
Würselen kaufen;
Haus kaufen
Würselen;
Immobilienpreise
Würselen Mietspiegel
Würselen wohnungsboerse.net übernimmt keine Gewähr für von Dritten gemachte Angaben