
Dachgeschosswohnung in Plauen-Haselbrunn
Neuwertige 3-Zimmer-Wohnung mit Balkon und Einbauküche in Plauen
auf der Karte ansehenUmzugskosten berechnen
- Kaltmiete
- 400 €
- Zimmer
- 3
- Fläche
- 80 m²
8 Aufrufe
Objekt-ID: 38464706
Objekttyp: | Dachgeschosswohnung |
Zimmer: | 3 |
Größe: | 80.00 m² |
Etage: | 3 von 3 |
Frei ab: | 01.09.2026 |
Preise & Kosten
Kaltmiete: | 400 € |
Nebenkosten: | 190 € |
Gesamtmiete: |
590 € |
Preis/m²: | 5,00 € |
Mit Mietspiegel Plauen vergleichen | |
Kaution: | k.A. |
Immobilie
Balkon
Garten
Einbauküche
Keller
Tiere erlaubt
Befeuerungsart: | Zentralheizung |
Objektbeschreibung
Wir suchen für unsere schöne 3-Raum Dachgeschoss Wohnung eine Nachmieter. Da wir in ein anderes Bundesland ziehen, fangen wir jetzt an einen Nachmieter für ab dem 1.09.2026 zu suchen.
Wie in der Anzeige ersichtlich, besteht die Möglichkeit bei unserer Wohnung die Einbauküche zu übernehmen (gekauft 2022) für einen Preis von 2000€ mit Elektronischen Geräten möglich.
Je nachdem wo Interesse besteht, könnten weitere Möbelstücke gegen Bezahlung übernommen werden (nach Absprache).
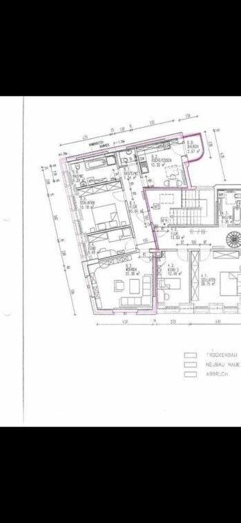
Des weiteren besteht die Wohnung aus einem großen Bad mit Dusche (2024 renoviert) und einer Badewanne. Ein Gästebad ist ebenfalls vorhanden. Alle anderen Details über Raumgröße usw. sind auf dem Grundriss der Wohnung zu sehen (siehe Bild).
Alle anderen Bilder werden im Laufe nächster Woche hinzugefügt, da wir selbst noch im Urlaub sind. Bei Fragen gerne einfach eine Nachricht schreiben. Alternativ hätte ich die Bilder vom Vorherigen Mieter, wenn jemand schon einen kleinen Einblick in die Wohnung haben möchte und nicht bis nächste Woche warten will.
Wichtige Daten zur Wohnung:
- 80m2 Wohnfläche
- 4m2 Balkon
- Keller & Dachboden
- Gartenfläche im Hinterhof für Mieter nutzbar
- Parkplätze vor dem Haus vorhanden (Kostenlos)
- Hausmeisterdienst
Wie in der Anzeige ersichtlich, besteht die Möglichkeit bei unserer Wohnung die Einbauküche zu übernehmen (gekauft 2022) für einen Preis von 2000€ mit Elektronischen Geräten möglich.
Je nachdem wo Interesse besteht, könnten weitere Möbelstücke gegen Bezahlung übernommen werden (nach Absprache).
Des weiteren besteht die Wohnung aus einem großen Bad mit Dusche (2024 renoviert) und einer Badewanne. Ein Gästebad ist ebenfalls vorhanden. Alle anderen Details über Raumgröße usw. sind auf dem Grundriss der Wohnung zu sehen (siehe Bild).
Alle anderen Bilder werden im Laufe nächster Woche hinzugefügt, da wir selbst noch im Urlaub sind. Bei Fragen gerne einfach eine Nachricht schreiben. Alternativ hätte ich die Bilder vom Vorherigen Mieter, wenn jemand schon einen kleinen Einblick in die Wohnung haben möchte und nicht bis nächste Woche warten will.
Wichtige Daten zur Wohnung:
- 80m2 Wohnfläche
- 4m2 Balkon
- Keller & Dachboden
- Gartenfläche im Hinterhof für Mieter nutzbar
- Parkplätze vor dem Haus vorhanden (Kostenlos)
- Hausmeisterdienst
Lage
Morgenbergstraße08525 Plauen
Plauen Haselbrunn
Der aktuelle durchschnittliche Quadratmeterpreis beträgt 4,90 €/m² in Plauen - Haselbrunn. Der durchschnittliche Quadratmeterpreis in Plauen liegt derzeit bei 5,65 €/m².
Mit Mietspiegel
Plauen vergleichen
Was kostet dein Umzug?
Du planst einen Umzug? Finde jetzt die günstigste Umzugsfirma in deiner Region!
Umzugskosten berechnen Schütze dich vor Betrug!
Leiste keinerlei Zahlung im Vorraus!
Beachte unsere Sicherheitshinweise zum Thema Immobilienbetrug und lies, woran du solche Anzeigen erkennen kannst und wie du dich vor Betrügern schützt.
Anzeige melden Beachte unsere Sicherheitshinweise zum Thema Immobilienbetrug und lies, woran du solche Anzeigen erkennen kannst und wie du dich vor Betrügern schützt.
*Anzeige

Ähnliche Wohnungen bei ImmoScout24
Plauen-Haselbrunn
- Miete
- 250 €
- Zimmer
- 3 Zi.
- Fläche
- 70 Zi.
Weitere Ergebnisse für:
Wohnungen
Plauen;
Immobilien
Plauen;
Haus mieten
Plauen;
WG Zimmer
Plauen;
Wohnung
Plauen kaufen;
Haus kaufen
Plauen;
Immobilienpreise
Plauen Mietspiegel
Plauen wohnungsboerse.net übernimmt keine Gewähr für von Dritten gemachte Angaben