
Etagenwohnung in Mayen
3-Zimmer-Wohnung mit Balkon
auf der Karte ansehenUmzugskosten berechnen
- Kaltmiete
- 1.069,23 €
- Zimmer
- 3
- Fläche
- 73.74 m²
137 Aufrufe
Objekt-ID: 37308963
Objekttyp: | Etagenwohnung |
Zimmer: | 3 |
Größe: | 73.74 m² |
Etage: | 1 von 3 |
Frei ab: | 01.05.2025 |
Preise & Kosten
Kaltmiete: | 1.069,23 € |
Nebenkosten: | 264,35 € |
Gesamtmiete: |
1.333,58 € |
Preis/m²: | 14,50 € |
Mit Mietspiegel Mayen vergleichen | |
Kaution: | k.A. |
Immobilie
Balkon
Aufzug
Keller
Tiere erlaubt
Behindertengerecht
Baujahr: | 2025 |
Befeuerungsart: | Fernwärme |
Energieausweis: | Bedarfsausweis |
Endenergiebedarf: | 49,00 kWh/(m²*a) |
Energieeffizienzklasse: | A |
Objektbeschreibung
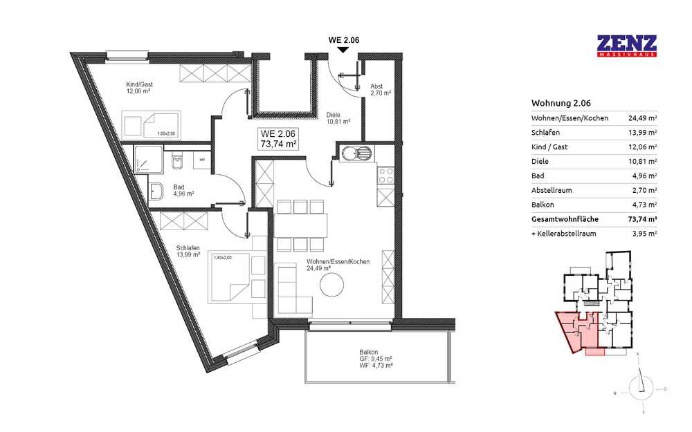
Diese 3-Zimmer-Wohnung im Burgpalais Mayen bietet auf 73,74 m² Gesamtwohnfläche und einer zusätzlichen Kellerabstellfläche von 3,95 m² eine angenehme Wohnatmosphäre und eignet sich ideal für Paare oder kleine Familien.
Der offene Wohn-, Ess- und Küchenbereich mit 24,49 m² bietet Platz für eine flexible Raumgestaltung und sorgt für eine freundliche und einladende Atmosphäre.
Das Schlafzimmer mit 13,99 m² bietet ausreichend Platz für ein großes Bett und Stauraum. Ein weiteres Zimmer mit 12,06 m² eignet sich ideal als Kinder- oder Gästezimmer.
Die Diele mit 10,81 m² schafft einen großzügigen Eingangsbereich. Das moderne Badezimmer mit 4,96 m² ist funktional und bietet viel Komfort. Ein praktischer Abstellraum mit 2,70 m² sorgt für zusätzlichen Stauraum.
Der Balkon mit 9,45 m² ist vom Wohnbereich aus zugänglich und bietet einen schönen Platz, um draußen zu entspannen.
Die Wohnung ist schwellenfrei und mit modernen Fenstern mit 3-fach-Wärmeschutzverglasung ausgestattet. Elektrische Rollläden und eine energieeffiziente Fußbodenheizung mit Einzelraumregelung sorgen für zusätzlichen Komfort.
Raumaufteilung:
3-Zimmer, Diele, Abstellraum, Duschbad, Kellerabstellraum
Der offene Wohn-, Ess- und Küchenbereich mit 24,49 m² bietet Platz für eine flexible Raumgestaltung und sorgt für eine freundliche und einladende Atmosphäre.
Das Schlafzimmer mit 13,99 m² bietet ausreichend Platz für ein großes Bett und Stauraum. Ein weiteres Zimmer mit 12,06 m² eignet sich ideal als Kinder- oder Gästezimmer.
Die Diele mit 10,81 m² schafft einen großzügigen Eingangsbereich. Das moderne Badezimmer mit 4,96 m² ist funktional und bietet viel Komfort. Ein praktischer Abstellraum mit 2,70 m² sorgt für zusätzlichen Stauraum.
Der Balkon mit 9,45 m² ist vom Wohnbereich aus zugänglich und bietet einen schönen Platz, um draußen zu entspannen.
Die Wohnung ist schwellenfrei und mit modernen Fenstern mit 3-fach-Wärmeschutzverglasung ausgestattet. Elektrische Rollläden und eine energieeffiziente Fußbodenheizung mit Einzelraumregelung sorgen für zusätzlichen Komfort.
Raumaufteilung:
3-Zimmer, Diele, Abstellraum, Duschbad, Kellerabstellraum
Lage
Bornhaustert56727 Mayen
Mayen
Der aktuelle durchschnittliche Quadratmeterpreis beträgt 9,27 €/m² in Mayen.
Mit Mietspiegel
Mayen vergleichen
Was kostet dein Umzug?
Du planst einen Umzug? Finde jetzt die günstigste Umzugsfirma in deiner Region!
Umzugskosten berechnen Schütze dich vor Betrug!
Leiste keinerlei Zahlung im Vorraus!
Beachte unsere Sicherheitshinweise zum Thema Immobilienbetrug und lies, woran du solche Anzeigen erkennen kannst und wie du dich vor Betrügern schützt.
Anzeige melden Beachte unsere Sicherheitshinweise zum Thema Immobilienbetrug und lies, woran du solche Anzeigen erkennen kannst und wie du dich vor Betrügern schützt.
*Anzeige

Ähnliche Wohnungen bei ImmoScout24
Mayen
- Miete
- 950 €
- Zimmer
- 3 Zi.
- Fläche
- 65 Zi.
Anbieter
Weitere Ergebnisse für:
Wohnungen
Mayen;
Immobilien
Mayen;
Haus mieten
Mayen;
WG Zimmer
Mayen;
Wohnung
Mayen kaufen;
Haus kaufen
Mayen;
Immobilienpreise
Mayen Mietspiegel
Mayen wohnungsboerse.net übernimmt keine Gewähr für von Dritten gemachte Angaben