
Erdgeschosswohnung in Mayen
Erstbezug - Rollstuhlgerechte Wohnung mit großzügigem Schnitt
auf der Karte ansehenUmzugskosten berechnen
- Kaltmiete
- 927,29 €
- Zimmer
- 2
- Fläche
- 71.33 m²
151 Aufrufe
Objekt-ID: 36758267
Objekttyp: | Erdgeschosswohnung |
Zimmer: | 2 |
Größe: | 71.33 m² |
Frei ab: | 01.03.2025 |
Preise & Kosten
Kaltmiete: | 927,29 € |
Nebenkosten: | 258,33 € |
Gesamtmiete: |
1.185,62 € |
Preis/m²: | 13,00 € |
Mit Mietspiegel Mayen vergleichen | |
Kaution: | k.A. |
Immobilie
Aufzug
Keller
Tiere erlaubt
Behindertengerecht
Baujahr: | 2025 |
Befeuerungsart: | Fernwärme |
Energieausweis: | Bedarfsausweis |
Endenergiebedarf: | 49,00 kWh/(m²*a) |
Energieeffizienzklasse: | A |
Objektbeschreibung
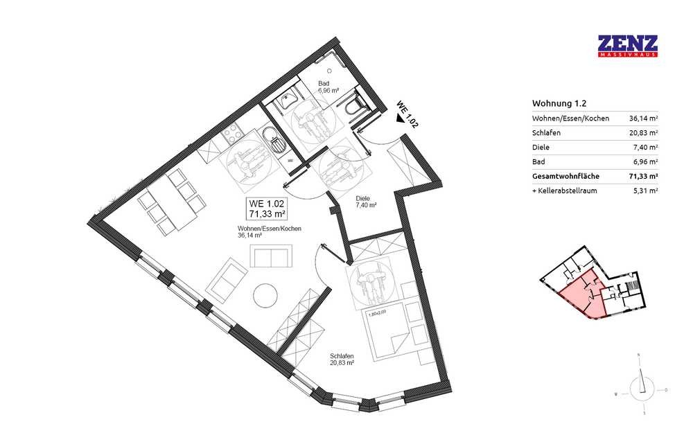
Diese großzügige, rollstuhlgerechte 2-Zimmer-Wohnung im Erdgeschoss des Burgpalais Mayen bietet auf 71,33 m² Wohnfläche idealen Komfort für Menschen mit körperlichen Einschränkungen oder diejenigen, die eine geräumige und barrierefreie Wohnung suchen.
Der offene Wohn- und Essbereich mit 36,14 m² ermöglicht eine angenehme Bewegungsfreiheit, während das Schlafzimmer mit 20,83 m² viel Platz für ein großes Bett und Schränke bietet.
Die gesamte Wohnung ist schwellenfrei und verfügt über Fenster mit 3-fach-Wärmeschutzverglasung, elektrische Rollläden und eine energieeffiziente Fußbodenheizung mit Einzelraumregelung. Ein Personenaufzug steht ebenfalls zur Verfügung, um einen bequemen Zugang zu allen Bereichen zu gewährleisten.
Raumaufteilung:
2-Zimmer, Diele, Duschbad, Kellerabstellraum
In den Nebenkosten ist bereits ein Tiefgargagenstellplatz in Höhe von 80,00 € enthalten.
Der offene Wohn- und Essbereich mit 36,14 m² ermöglicht eine angenehme Bewegungsfreiheit, während das Schlafzimmer mit 20,83 m² viel Platz für ein großes Bett und Schränke bietet.
Die gesamte Wohnung ist schwellenfrei und verfügt über Fenster mit 3-fach-Wärmeschutzverglasung, elektrische Rollläden und eine energieeffiziente Fußbodenheizung mit Einzelraumregelung. Ein Personenaufzug steht ebenfalls zur Verfügung, um einen bequemen Zugang zu allen Bereichen zu gewährleisten.
Raumaufteilung:
2-Zimmer, Diele, Duschbad, Kellerabstellraum
In den Nebenkosten ist bereits ein Tiefgargagenstellplatz in Höhe von 80,00 € enthalten.
Lage
Marktplatz56727 Mayen
Mayen
Der aktuelle durchschnittliche Quadratmeterpreis beträgt 9,27 €/m² in Mayen.
Mit Mietspiegel
Mayen vergleichen
Was kostet dein Umzug?
Du planst einen Umzug? Finde jetzt die günstigste Umzugsfirma in deiner Region!
Umzugskosten berechnen Schütze dich vor Betrug!
Leiste keinerlei Zahlung im Vorraus!
Beachte unsere Sicherheitshinweise zum Thema Immobilienbetrug und lies, woran du solche Anzeigen erkennen kannst und wie du dich vor Betrügern schützt.
Anzeige melden Beachte unsere Sicherheitshinweise zum Thema Immobilienbetrug und lies, woran du solche Anzeigen erkennen kannst und wie du dich vor Betrügern schützt.
*Anzeige

Ähnliche Wohnungen bei ImmoScout24
Mayen
- Miete
- 800 €
- Zimmer
- 2 Zi.
- Fläche
- 65 Zi.
Anbieter
Weitere Ergebnisse für:
Wohnungen
Mayen;
Immobilien
Mayen;
Haus mieten
Mayen;
WG Zimmer
Mayen;
Wohnung
Mayen kaufen;
Haus kaufen
Mayen;
Immobilienpreise
Mayen Mietspiegel
Mayen wohnungsboerse.net übernimmt keine Gewähr für von Dritten gemachte Angaben