
Dachgeschosswohnung in Bad Oeynhausen
Ansprechende 2-Zimmer-Wohnung mit Einbauküche in Bad
auf der Karte ansehenUmzugskosten berechnen
- Kaltmiete
- 510 €
- Zimmer
- 2
- Fläche
- 50 m²
25 Aufrufe
Objekt-ID: 36684367
Objekttyp: | Dachgeschosswohnung |
Zimmer: | 2 |
Größe: | 50.00 m² |
Etage: | 3 von 3 |
Frei ab: | 01.12.2025 |
Preise & Kosten
Kaltmiete: | 510 € |
Nebenkosten: | 100 € |
Gesamtmiete: |
610 € |
Preis/m²: | 10,20 € |
Mit Mietspiegel Bad Oeynhausen vergleichen | |
Kaution: | k.A. |
Immobilie
Einbauküche
Keller
Baujahr: | 1996 |
Befeuerungsart: | Zentralheizung |
Energieausweis: | liegt vor |
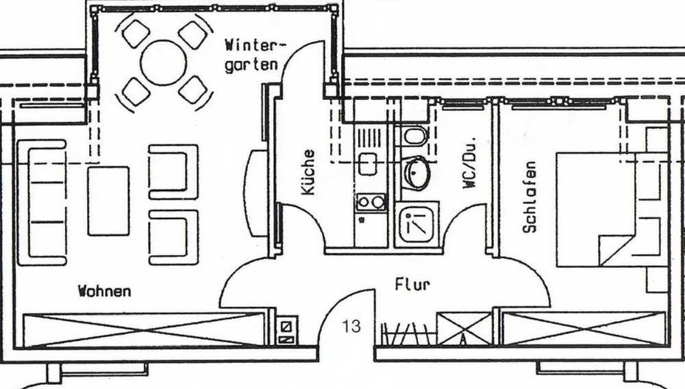
Objektbeschreibung
Zum 01.12.2025 kann in die attraktive Wohnung, die im Erdgeschoss liegt, eingezogen werden. Die Wohnung liegt sehr zentral, sämtliche Kliniken in Bad Oeynhausen sind fussläufig erreichbar. Ein aktueller Energieausweis liegt vor. Zum Objekt gehört auch ein Kellerraum. Zur Verfügung steht Ihnen außerdem eine Einbauküche, für welche monatlich 30 Euro extra zu entrichten sind. Die Waschmaschine und der Trockner , finden Platz im Gemeinschaftlichen Waschraum. Einstellplatz in der abgeschlossenen Tiefgarage kann separat mit angemietet werden.
Lage
32545 Bad OeynhausenBad Oeynhausen
Der aktuelle durchschnittliche Quadratmeterpreis beträgt 9,01 €/m² in Bad Oeynhausen.
Mit Mietspiegel
Bad-Oeynhausen vergleichen
Was kostet dein Umzug?
Du planst einen Umzug? Finde jetzt die günstigste Umzugsfirma in deiner Region!
Umzugskosten berechnen Schütze dich vor Betrug!
Leiste keinerlei Zahlung im Vorraus!
Beachte unsere Sicherheitshinweise zum Thema Immobilienbetrug und lies, woran du solche Anzeigen erkennen kannst und wie du dich vor Betrügern schützt.
Anzeige melden Beachte unsere Sicherheitshinweise zum Thema Immobilienbetrug und lies, woran du solche Anzeigen erkennen kannst und wie du dich vor Betrügern schützt.
*Anzeige

Ähnliche Wohnungen bei ImmoScout24
Bad Oeynhausen
- Miete
- 400 €
- Zimmer
- 2 Zi.
- Fläche
- 40 Zi.
Weitere Ergebnisse für:
Wohnungen
Bad Oeynhausen;
Immobilien
Bad Oeynhausen;
Haus mieten
Bad Oeynhausen;
WG Zimmer
Bad Oeynhausen;
Wohnung
Bad Oeynhausen kaufen;
Haus kaufen
Bad Oeynhausen;
Immobilienpreise
Bad Oeynhausen Mietspiegel
Bad Oeynhausen wohnungsboerse.net übernimmt keine Gewähr für von Dritten gemachte Angaben