Hochparterre-Wohnung in Lugau/Erzgebirge
Hochparterre-Whg. in Lugauer Randgrünlage☘️
auf der Karte ansehenUmzugskosten berechnen
- Kaltmiete
- 380 €
- Zimmer
- 3
- Fläche
- 76 m²
606 Aufrufe
Objekt-ID: 36443013
| Objekttyp: | Hochparterre-Wohnung |
| Zimmer: | 3 |
| Größe: | 76.00 m² |
| Frei ab: | ab sofort |
Preise & Kosten
| Kaltmiete: | 380 € |
| Nebenkosten: | 150 € |
| Miete für Garage/Stellplatz: | 0 € |
| Gesamtmiete: |
530 € |
| Preis/m²: | 5,00 € |
| Mit Mietspiegel Lugau/Erzgebirge vergleichen | |
| Kaution: | 500 |
Immobilie
Terrasse
Garten
Keller
Altbau
Tiere erlaubt
| Baujahr: | 1930 |
| Objektzustand: | modernisiert |
| Befeuerungsart: | Gas |
| Energieausweis: | Energieausweis in Vorbereitung |
| Endenergiebedarf: | 117,10 kWh/(m²*a) |
| Energieeffizienzklasse: | D |
Objektbeschreibung
Altbauvilla aus der Gründerzeit mit 4 WE.
Die 1995 im rustikalen Stil kernsanierte Wohnung in einer Gründerzeitvilla (4 WE mit freundlichen dt. Mietparteien) befindet sich im Hochparterre (7 Stufen) mit hellen großzügigen Wohnräumen.
Die Wohnungsvermietung erfolgt mit 2 Monaten Mietfreiheit wegen malermäßiger Wohnungsrenovierung. Haustier(e) nach Absprache.
Im rückwärtigen sonnigen Südwestgarten mit grünem Altbaumbestand (dahinter nur Grünland) lässt es sich sehr angenehm verweilen. Ein kleiner Südwest-Gartenanteil kann bei Bedarf optional Privat genutzt werden...
Entfernungen/Fußläufig): Bus- 200 m, Kindergarten um die Ecke, 10 Min. Grundschule + Stadtzentrum + Einkaufsmöglichkeiten,
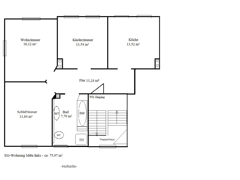
Gliederung (ca. Maße): 16 m² Wohnzimmer, 14 m² Küche, 14 m² Schlafzimmer, 14 m² Kinderzimmer, 11 m² Flur, 8 m² Vollbad(BW+DU), Keller + Bodenraum ++
Sonstiges:
neue Wohnungseingangstür, große bodengeflieste Küche mit Fliesenzeile (Alt-Einbauküche geschenkt- auch Entsorgung möglich)
Bad mit KALDEWEI-Badewanne + DUSAR-Eckdusche - Gartenblick,
KS-Isolierfenster, neuwertige Brennwert-Erdgas-Zhzg. mit Warmwasser,
alter E-Pass-Verbrauchs-Wert war 117,1 kwh/m²a, Funk-HKV, Rauchwarnmelder, Dielungsböden(abschleifbar) bzw. Laminatböden,
Sonst: Vollwärmedämmung, DSL, Altbaumbestand / Grünflächen, toller Landschaftsblick,
Die 1995 im rustikalen Stil kernsanierte Wohnung in einer Gründerzeitvilla (4 WE mit freundlichen dt. Mietparteien) befindet sich im Hochparterre (7 Stufen) mit hellen großzügigen Wohnräumen.
Die Wohnungsvermietung erfolgt mit 2 Monaten Mietfreiheit wegen malermäßiger Wohnungsrenovierung. Haustier(e) nach Absprache.
Im rückwärtigen sonnigen Südwestgarten mit grünem Altbaumbestand (dahinter nur Grünland) lässt es sich sehr angenehm verweilen. Ein kleiner Südwest-Gartenanteil kann bei Bedarf optional Privat genutzt werden...
Entfernungen/Fußläufig): Bus- 200 m, Kindergarten um die Ecke, 10 Min. Grundschule + Stadtzentrum + Einkaufsmöglichkeiten,
Gliederung (ca. Maße): 16 m² Wohnzimmer, 14 m² Küche, 14 m² Schlafzimmer, 14 m² Kinderzimmer, 11 m² Flur, 8 m² Vollbad(BW+DU), Keller + Bodenraum ++
Sonstiges:
neue Wohnungseingangstür, große bodengeflieste Küche mit Fliesenzeile (Alt-Einbauküche geschenkt- auch Entsorgung möglich)
Bad mit KALDEWEI-Badewanne + DUSAR-Eckdusche - Gartenblick,
KS-Isolierfenster, neuwertige Brennwert-Erdgas-Zhzg. mit Warmwasser,
alter E-Pass-Verbrauchs-Wert war 117,1 kwh/m²a, Funk-HKV, Rauchwarnmelder, Dielungsböden(abschleifbar) bzw. Laminatböden,
Sonst: Vollwärmedämmung, DSL, Altbaumbestand / Grünflächen, toller Landschaftsblick,
Lage
Untere Hauptstraße09385 Lugau/Erzgebirge
Lugau/Erzgebirge
Der aktuelle durchschnittliche Quadratmeterpreis beträgt 6,15 €/m² in Lugau/Erzgebirge.
Mit Mietspiegel
LugauErzgebirge vergleichen
Was kostet dein Umzug?
Du planst einen Umzug? Finde jetzt die günstigste Umzugsfirma in deiner Region!
Umzugskosten berechnen Schütze dich vor Betrug!
Leiste keinerlei Zahlung im Vorraus!
Beachte unsere Sicherheitshinweise zum Thema Immobilienbetrug und lies, woran du solche Anzeigen erkennen kannst und wie du dich vor Betrügern schützt.
Anzeige melden Beachte unsere Sicherheitshinweise zum Thema Immobilienbetrug und lies, woran du solche Anzeigen erkennen kannst und wie du dich vor Betrügern schützt.
*Anzeige
Ähnliche Wohnungen bei ImmoScout24
Lugau/Erzgebirge
- Miete
- 250 €
- Zimmer
- 3 Zi.
- Fläche
- 70 Zi.
Anbieter
privater AnbieterWeitere Ergebnisse für:
Wohnungen
Lugau/Erzgebirge;
Immobilien
Lugau/Erzgebirge;
Haus mieten
Lugau/Erzgebirge;
WG Zimmer
Lugau/Erzgebirge;
Wohnung
Lugau/Erzgebirge kaufen;
Haus kaufen
Lugau/Erzgebirge;
Immobilienpreise
Lugau/Erzgebirge Mietspiegel
Lugau/Erzgebirge wohnungsboerse.net übernimmt keine Gewähr für von Dritten gemachte Angaben









