
Etagenwohnung in Altenburg
Diese schöne 2-Raum-Wohnung in fußläufiger Nähe zum Klinikum Altenburg sucht neue Mieter
auf der Karte ansehenUmzugskosten berechnen
- Kaltmiete
- 300 €
- Zimmer
- 2
- Fläche
- 50 m²
57 Aufrufe
Objekt-ID: 35624994
Objekttyp: | Etagenwohnung |
Zimmer: | 2 |
Größe: | 50.00 m² |
Etage: | 4 von 4 |
Frei ab: | 1.10.2024 |
Preise & Kosten
Kaltmiete: | 300 € |
Nebenkosten: | 150 € |
Gesamtmiete: |
450 € |
Preis/m²: | 6,00 € |
Mit Mietspiegel Altenburg vergleichen | |
Kaution: | k.A. |
Immobilie
Garten
Einbauküche
Keller
Tiere erlaubt
Befeuerungsart: | Gas |
Energieausweis: | Energieausweis in Vorbereitung |
Objektbeschreibung
Angeboten wird eine schöne und helle Wohnung in der Zwickauer Straße 35, 1.OG links, 04600 Altenburg. Diese ist zum 01.10.2024 bezugsfähig.
Diese Wohnung beinhaltet eine Einbauküche.
Fußläufig entfernt ist das Hallenbad, der große Teich, das Theaterzelt, das Sport- und Freizeitareal, das Freibad Süd sowie das Klinikum Altenburg. Der öffentliche Nahverkehr ist in wenigen Minuten zu erreichen. Der Markt ist 1km und das Residenzschloss ist 1,5km entfernt.
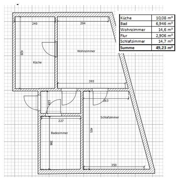
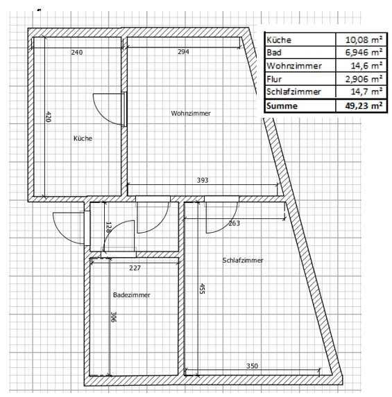
Es handelt sich um eine 2-Raum-Wohnung mit Küche, Bad und Flur
Wohnungslage: 3.OG rechts
Bad mit Fenster
Böden: Fließen & neuer belastungsfähiger und hochwertiger Vinyl Fußboden
Zustand gepflegt, eigener Keller & der Hof kann mitgenutzt werden.
Wohnungsaufteilung
2 Zimmer, 1 Küche, 1 Bad/Badewanne/WC, 1 Kellerraum
Zentralheizung mit Gas, Heizung ist in den Nebenkosten enthalten
Im Hof ist ein Trockenplatz und eine Terrasse zum Großen Teich, welche allen Mietern zugänglich sind und für die Nutzung freisteht.
Miete und Nebenkosten betragen:
Nettokaltmiete pro m²: 6,00€
Nettokaltmiete 300,00€
Nebenkosten 150,00€*
Des Weiteren ist eine Kaution von drei Kaltmieten von zusammen 900,00€ bis spätestens 1.Monat nach Mietvertragsunterschrift zu entrichten.
Die Wohnung kann zum 01.10.2024 übernommen werden.
Diese Wohnung beinhaltet eine Einbauküche.
Fußläufig entfernt ist das Hallenbad, der große Teich, das Theaterzelt, das Sport- und Freizeitareal, das Freibad Süd sowie das Klinikum Altenburg. Der öffentliche Nahverkehr ist in wenigen Minuten zu erreichen. Der Markt ist 1km und das Residenzschloss ist 1,5km entfernt.
Es handelt sich um eine 2-Raum-Wohnung mit Küche, Bad und Flur
Wohnungslage: 3.OG rechts
Bad mit Fenster
Böden: Fließen & neuer belastungsfähiger und hochwertiger Vinyl Fußboden
Zustand gepflegt, eigener Keller & der Hof kann mitgenutzt werden.
Wohnungsaufteilung
2 Zimmer, 1 Küche, 1 Bad/Badewanne/WC, 1 Kellerraum
Zentralheizung mit Gas, Heizung ist in den Nebenkosten enthalten
Im Hof ist ein Trockenplatz und eine Terrasse zum Großen Teich, welche allen Mietern zugänglich sind und für die Nutzung freisteht.
Miete und Nebenkosten betragen:
Nettokaltmiete pro m²: 6,00€
Nettokaltmiete 300,00€
Nebenkosten 150,00€*
Des Weiteren ist eine Kaution von drei Kaltmieten von zusammen 900,00€ bis spätestens 1.Monat nach Mietvertragsunterschrift zu entrichten.
Die Wohnung kann zum 01.10.2024 übernommen werden.
Lage
Zwickauer Straße04600 Altenburg
Altenburg
Der aktuelle durchschnittliche Quadratmeterpreis beträgt 6,55 €/m² in Altenburg.
Mit Mietspiegel
Altenburg vergleichen
Was kostet dein Umzug?
Du planst einen Umzug? Finde jetzt die günstigste Umzugsfirma in deiner Region!
Umzugskosten berechnen Schütze dich vor Betrug!
Leiste keinerlei Zahlung im Vorraus!
Beachte unsere Sicherheitshinweise zum Thema Immobilienbetrug und lies, woran du solche Anzeigen erkennen kannst und wie du dich vor Betrügern schützt.
Anzeige melden Beachte unsere Sicherheitshinweise zum Thema Immobilienbetrug und lies, woran du solche Anzeigen erkennen kannst und wie du dich vor Betrügern schützt.
*Anzeige

Ähnliche Wohnungen bei ImmoScout24
Altenburg
- Miete
- 150 €
- Zimmer
- 2 Zi.
- Fläche
- 40 Zi.
Weitere Ergebnisse für:
Wohnungen
Altenburg;
Immobilien
Altenburg;
Haus mieten
Altenburg;
WG Zimmer
Altenburg;
Wohnung
Altenburg kaufen;
Haus kaufen
Altenburg;
Immobilienpreise
Altenburg Mietspiegel
Altenburg wohnungsboerse.net übernimmt keine Gewähr für von Dritten gemachte Angaben