Etagenwohnung in Düsseldorf-Pempelfort
2 Zimmer, Küche, Bad-saniert-in Pempelfort
auf der Karte ansehenUmzugskosten berechnen
- Kaltmiete
- 800 €
- Zimmer
- 2
- Fläche
- 66 m²
4415 Aufrufe
Objekt-ID: 35224520
| Objekttyp: | Etagenwohnung |
| Zimmer: | 2 |
| Größe: | 66.00 m² |
| Etage: | 1 |
| Frei ab: | 01.08.2024 |
Preise & Kosten
| Kaltmiete: | 800 € |
| Nebenkosten: | 200 € |
| Gesamtmiete: |
1.000 € |
| Provision: | 0,0 |
| Preis/m²: | 12,12 € |
| Mit Mietspiegel Düsseldorf vergleichen | |
| Ablöse: | 0 € |
| Kaution: | 2000,00 |
Immobilie
Balkon
Keller
Tiere erlaubt
| Baujahr: | 1958 |
| Objektzustand: | teilweise renoviert |
| Befeuerungsart: | Fernwärme |
| Energieausweis: | Verbrauchsausweis |
| Energieverbrauchskennwert: | 141,70 kWh/(m²*a) |
| Energieverbrauch für Warmwasser enthalten? | Nein |
Objektbeschreibung
Die Wohnung wurde im Mai 2021 renoviert. Das Bad saniert und neu gefliest.
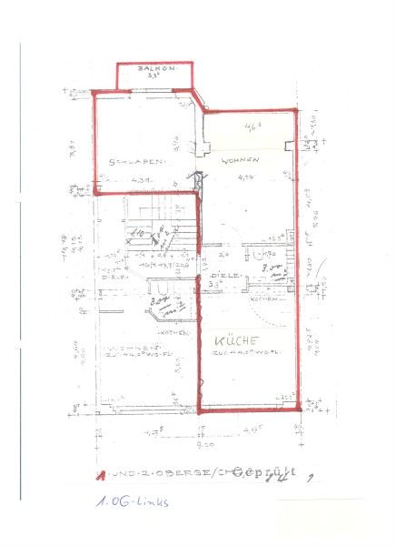
Die Wohnung besteht aus 2 Zimmer, Küche, Bad, Balkon und Keller.
Die Wohnung liegt zentrumsnah im Bezirk 1.
Altstadt und Rheinufer erreicht man in ca. 10 Minuten.
Alle Geschäfte des täglichen Bedarfs, Lokale und öffentliche Verkehrsmittel sind fußläufig in 5 Minuten zu erreichen.
Die Wohnung besteht aus 2 Zimmer, Küche, Bad, Balkon und Keller.
Die Wohnung liegt zentrumsnah im Bezirk 1.
Altstadt und Rheinufer erreicht man in ca. 10 Minuten.
Alle Geschäfte des täglichen Bedarfs, Lokale und öffentliche Verkehrsmittel sind fußläufig in 5 Minuten zu erreichen.
Lage
Gneisenaustr.40477 Düsseldorf
Düsseldorf Pempelfort
Der aktuelle durchschnittliche Quadratmeterpreis beträgt 19,27 €/m² in Düsseldorf - Pempelfort. Der durchschnittliche Quadratmeterpreis in Düsseldorf liegt derzeit bei 15,25 €/m².
Mit Mietspiegel
Düsseldorf vergleichen
Was kostet dein Umzug?
Du planst einen Umzug? Finde jetzt die günstigste Umzugsfirma in deiner Region!
Umzugskosten berechnen Schütze dich vor Betrug!
Leiste keinerlei Zahlung im Vorraus!
Beachte unsere Sicherheitshinweise zum Thema Immobilienbetrug und lies, woran du solche Anzeigen erkennen kannst und wie du dich vor Betrügern schützt.
Anzeige melden Beachte unsere Sicherheitshinweise zum Thema Immobilienbetrug und lies, woran du solche Anzeigen erkennen kannst und wie du dich vor Betrügern schützt.
*Anzeige
Ähnliche Wohnungen bei ImmoScout24
Düsseldorf-Pempelfort
- Miete
- 650 €
- Zimmer
- 2 Zi.
- Fläche
- 60 Zi.
Anbieter
privater AnbieterWeitere Ergebnisse für:
Wohnungen
Düsseldorf;
Immobilien
Düsseldorf;
Haus mieten
Düsseldorf;
WG Zimmer
Düsseldorf;
Wohnung
Düsseldorf kaufen;
Haus kaufen
Düsseldorf;
Immobilienpreise
Düsseldorf Mietspiegel
Düsseldorf wohnungsboerse.net übernimmt keine Gewähr für von Dritten gemachte Angaben










