4er WG in Berlin-Kreuzberg
WG Zimmer mit eigenen Bad in DG-Wohnung Erstbezug
auf der Karte ansehenUmzugskosten berechnen
- Kaltmiete
- 1.125 €
- Zimmer
- 4
- Zimmergröße
- 22 m²
1055 Aufrufe
Objekt-ID: 34738443
| Objekttyp: | 4er WG |
| Zimmer: | 4 |
| Zimmergröße: | 22.00 m² |
| Etage: | 5 |
| Frei ab: | ab sofort |
Preise & Kosten
| Kaltmiete: | 1.125 € |
| Nebenkosten: | 275 € |
| Gesamtmiete: |
1.400 € |
| Preis/m²: | 51,14 € |
| Mit Mietspiegel Berlin vergleichen | |
| Kaution: | 3375 |
Immobilie
Garten
Dachterrasse
Einbauküche
Aufzug
Neubau
| Baujahr: | 2024 |
| Objektzustand: | Erstbezug |
| Befeuerungsart: | Gas |
| Energieausweis: | Energieausweis in Vorbereitung |
Objektbeschreibung
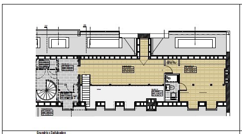
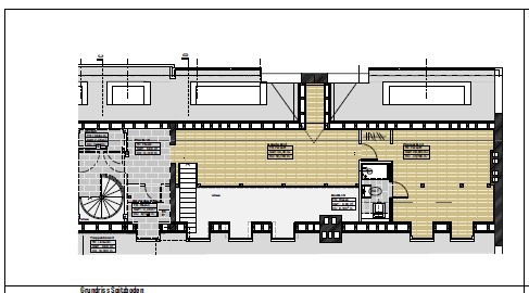
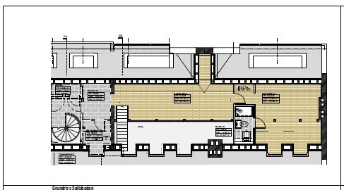
Das Zimmer hat ca. 22m² mit eigenem Duschbad ca. 4m² ist Teil einer WG mit 4 etwa gleich großen Zimmern, jeweils mit eigenem Duschbad.
Da die Wohnung gerade fertig gestellt wird, sind 3 von 4 Zimmern zur Zeit noch nicht belegt.
Der Gemeinschaftsraum beträgt ca. 140 m² auf 2 Ebenen.
Nach dem Eingangsbereich betritt man eine Wohnküche. Ihnen steht hier eine Einbauküche zur Verfügung. Es gibt eine Treppe zur offenen Galerie als Gemeinschaftsraum.
Eine separate Kammer für Wäsche ist im oberen Teil der Wohnung.
Das WG-Zimmer hat Eichenparkett mit gefliesten, neuen Duschbad, der Eingangsbereich und die Einbauküche sind mit hellen Steinfliesen belegt. Die Treppenstufen zur Galerie sind aus Eiche. Oben auf der Galerie Parkettboden.
Die gefliesten Bereiche Wohnküche und Bäder haben Fußbodenheizung.
Die große Terrasse ist mit anthrazitfarbigen WPC Dielen belegt. Ab mittags scheint die Sonne.
Da die Wohnung gerade fertig gestellt wird, sind 3 von 4 Zimmern zur Zeit noch nicht belegt.
Der Gemeinschaftsraum beträgt ca. 140 m² auf 2 Ebenen.
Nach dem Eingangsbereich betritt man eine Wohnküche. Ihnen steht hier eine Einbauküche zur Verfügung. Es gibt eine Treppe zur offenen Galerie als Gemeinschaftsraum.
Eine separate Kammer für Wäsche ist im oberen Teil der Wohnung.
Das WG-Zimmer hat Eichenparkett mit gefliesten, neuen Duschbad, der Eingangsbereich und die Einbauküche sind mit hellen Steinfliesen belegt. Die Treppenstufen zur Galerie sind aus Eiche. Oben auf der Galerie Parkettboden.
Die gefliesten Bereiche Wohnküche und Bäder haben Fußbodenheizung.
Die große Terrasse ist mit anthrazitfarbigen WPC Dielen belegt. Ab mittags scheint die Sonne.
Was kostet dein Umzug?
Du planst einen Umzug? Finde jetzt die günstigste Umzugsfirma in deiner Region!
Umzugskosten berechnen Schütze dich vor Betrug!
Leiste keinerlei Zahlung im Vorraus!
Beachte unsere Sicherheitshinweise zum Thema Immobilienbetrug und lies, woran du solche Anzeigen erkennen kannst und wie du dich vor Betrügern schützt.
Anzeige melden Beachte unsere Sicherheitshinweise zum Thema Immobilienbetrug und lies, woran du solche Anzeigen erkennen kannst und wie du dich vor Betrügern schützt.
*Anzeige
Ähnliche Zimmer bei ImmoScout24
Berlin-Kreuzberg
- Miete
- 1.000 €
- Zimmer
- 4 Zi.
- Fläche
- 15 Zi.
Anbieter
privater AnbieterWeitere Ergebnisse für:
Wohnungen
Berlin;
Immobilien
Berlin;
Haus mieten
Berlin;
WG Zimmer
Berlin;
Wohnung
Berlin kaufen;
Haus kaufen
Berlin;
Immobilienpreise
Berlin Mietspiegel
Berlin wohnungsboerse.net übernimmt keine Gewähr für von Dritten gemachte Angaben











