
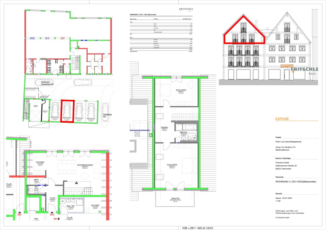
Maisonette-Wohnung in Biberach an der Riß
Erstbezug - Exklusive Neubauwohnung - Stadtmitte Biberach
auf der Karte ansehenUmzugskosten berechnen
- Kaltmiete
- 1.650 €
- Zimmer
- 3
- Fläche
- 121 m²
722 Aufrufe
Objekt-ID: 34164623
Objekttyp: | Maisonette-Wohnung |
Zimmer: | 3 |
Größe: | 121.00 m² |
Etage: | 3 |
Frei ab: | 01.03.2024 |
Preise & Kosten
Kaltmiete: | 1.650 € |
Nebenkosten: | 300 € |
Miete für Garage/Stellplatz: | 80 € |
Gesamtmiete: |
1.950 € |
Preis/m²: | 13,64 € |
Mit Mietspiegel Biberach an der Riß vergleichen | |
Kaution: | 3300 |
Immobilie
Balkon
Einbauküche
Aufzug
Keller
Neubau
Behindertengerecht
Baujahr: | 2023 |
Objektzustand: | Erstbezug |
Befeuerungsart: | Wärmepumpe |
Energieausweis: | Energieausweis in Vorbereitung |
Endenergiebedarf: | 15,00 kWh/(m²*a) |
Energieeffizienzklasse: | A+ |
Objektbeschreibung
Betreten Sie eine einzigartige Oase der Exklusivität im pulsierenden Stadtzentrum von Biberach! Diese faszinierende 4-Zimmer-Maisonette-Neubauwohnung erstreckt sich über großzügige 121 Quadratmeter im 3. Obergeschoss eines charmanten Mehrfamilienhauses mit nur fünf Wohneinheiten, die bequem über einen Aufzug erreichbar sind. Diese Wohnperle bietet nicht nur modernen Komfort, sondern präsentiert ein durchdachtes Wohnkonzept für höchste Ansprüche.
Ein besonderes Highlight dieser Immobilie ist die hochwertige Fußbodenheizung, die nicht nur angenehme Wärme verbreitet, sondern auch ein behagliches Wohngefühl auf beiden Etagen schafft. Der durchdachte Grundriss sorgt für eine optimale Nutzung des großzügigen Raumangebots und schafft eine einladende Atmosphäre.
Die moderne Einbauküche, gestaltet mit Stil und Funktionalität, bildet das Herzstück dieser exklusiven Maisonette. Großzügige Fensterfronten durchfluten die Räume mit natürlichem Licht und bieten einen malerischen Blick auf das lebendige Treiben der Stadt.
Die Maisonette-Struktur dieser Wohnung bietet Ihnen auf zwei Ebenen ein Höchstmaß an Flexibilität und Privatsphäre. Im oberen Geschoss erwarten Sie geräumige Schlafzimmer und ein stilvoll gestaltetes Badezimmer, während das untere Geschoss großzügige Wohn- und Essbereiche für gemütliche Stunden bereithält.
Ein besonderes Highlight dieser Immobilie ist die hochwertige Fußbodenheizung, die nicht nur angenehme Wärme verbreitet, sondern auch ein behagliches Wohngefühl auf beiden Etagen schafft. Der durchdachte Grundriss sorgt für eine optimale Nutzung des großzügigen Raumangebots und schafft eine einladende Atmosphäre.
Die moderne Einbauküche, gestaltet mit Stil und Funktionalität, bildet das Herzstück dieser exklusiven Maisonette. Großzügige Fensterfronten durchfluten die Räume mit natürlichem Licht und bieten einen malerischen Blick auf das lebendige Treiben der Stadt.
Die Maisonette-Struktur dieser Wohnung bietet Ihnen auf zwei Ebenen ein Höchstmaß an Flexibilität und Privatsphäre. Im oberen Geschoss erwarten Sie geräumige Schlafzimmer und ein stilvoll gestaltetes Badezimmer, während das untere Geschoss großzügige Wohn- und Essbereiche für gemütliche Stunden bereithält.
Lage
Ulmer-Tor-Str88400 Biberach an der Riß
Biberach an der Riß
Der aktuelle durchschnittliche Quadratmeterpreis beträgt 12,57 €/m² in Biberach an der Riß.
Mit Mietspiegel
Biberach-an-der-Riss vergleichen
Was kostet dein Umzug?
Du planst einen Umzug? Finde jetzt die günstigste Umzugsfirma in deiner Region!
Umzugskosten berechnen Schütze dich vor Betrug!
Leiste keinerlei Zahlung im Vorraus!
Beachte unsere Sicherheitshinweise zum Thema Immobilienbetrug und lies, woran du solche Anzeigen erkennen kannst und wie du dich vor Betrügern schützt.
Anzeige melden Beachte unsere Sicherheitshinweise zum Thema Immobilienbetrug und lies, woran du solche Anzeigen erkennen kannst und wie du dich vor Betrügern schützt.
*Anzeige

Ähnliche Wohnungen bei ImmoScout24
Biberach an der Riß
- Miete
- 1.500 €
- Zimmer
- 3 Zi.
- Fläche
- 115 Zi.
Anbieter
ImmobilienmaklerThomas Zimmermann Von Poll Immobilien
Weitere Ergebnisse für:
Wohnungen
Biberach an der Riß;
Immobilien
Biberach an der Riß;
Haus mieten
Biberach an der Riß;
WG Zimmer
Biberach an der Riß;
Wohnung
Biberach an der Riß kaufen;
Haus kaufen
Biberach an der Riß;
Immobilienpreise
Biberach an der Riß Mietspiegel
Biberach an der Riß wohnungsboerse.net übernimmt keine Gewähr für von Dritten gemachte Angaben