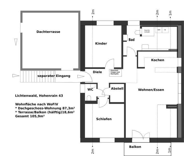
Dachgeschosswohnung in Lichtenwald
Lichtenwald: 3,5-Zi-DG-Whg in 2-Fam-Haus mit Fernblick ab 1.2.24 Energieeffizienzklasse A+, Baujahr 2016, Lüftungsanlage mit Wärmerückgewinnung, Fußbodenheizung, Einbauküche an NR
auf der Karte ansehenUmzugskosten berechnen
- Kaltmiete
- 1.250 €
- Zimmer
- 3.5
- Fläche
- 105.9 m²
889 Aufrufe
Objekt-ID: 33798121
| Objekttyp: | Dachgeschosswohnung |
| Zimmer: | 3.5 |
| Größe: | 105.90 m² |
| Etage: | 1 |
| Frei ab: | 01.02.2024 |
Preise & Kosten
| Kaltmiete: | 1.250 € |
| Nebenkosten: | 160 € |
| Miete für Garage/Stellplatz: | 40 € |
| Gesamtmiete: |
1.410 € |
| Preis/m²: | 11,80 € |
| Mit Mietspiegel Lichtenwald vergleichen | |
| Kaution: | 3 Monatsmieten |
Immobilie
Balkon
Terrasse
Einbauküche
Keller
Neubau
Teilmöbliert
| Baujahr: | 2016 |
| Objektzustand: | gepflegt |
| Befeuerungsart: | Wärmepumpe |
| Energieausweis: | Bedarfsausweis |
| Endenergiebedarf: | 11,60 kWh/(m²*a) |
| Energieeffizienzklasse: | A+ |
Objektbeschreibung
Wie ist meine gehobene Ausstattung?
In all meinen Räumen sind 60x60 Fliesen auf einer Fußbodenheizung verlegt. Die Energie dazu wird mittels Umluft-Wärme-Pumpe gewonnen. Die Lüftungsanlage mit Wärmerückgewinnung befindet sich im Dachspitz, der auch als zusätzlicher Abstellraum über eine Einschubtreppe genutzt werden kann.
Meine offene Küche hat bereits eine Einbauküche. Auch um genügend Steckdosen brauchen Sie sich keine Sorgen zu machen. Eine große Duschkabine (120x90), ein Lichtspiegel sowie der Waschmaschinen- und Trockner-Anschluss und eine Toilette befinden sich im Bad.
Meine zwei Schlafräume sind so konzipiert, dass sie als Schlafzimmer, Kinderzimmer, Büro oder Gästezimmer genutzt werden können. Im Bad und Gäste-WC haben meine Wände einen mineralischen Putz, ansonsten bin ich mit einer weißen Vliestapete ausgestattet.
Ebenfalls sind bereits diverse LED-Deckenlampen vorhanden. Meine Fenster haben elektrische Jalousien bzw. Rollläden, die ebenso wie die Lampen vernetzt sind und zentral gesteuert werden können (Hausautomation).
Durch die Video-Türsprechanlage sehen Sie, wer vor der Haustür steht.
Was bietet das Haus sonst noch?
Alle Holz-Alu-Fenster sind als Integralfenster dreifach-verglast und mit höchster Wärmedämmung versehen. Die Schlafräume haben einen zusätzlichen Schallschutz.
Es wurden für die Außenwände Ziegel gefüllt mit Mineralwolle und ein Wärmedämm-Verbundsystem verwendet, denn die Energie-Effizienzklasse ist A+ mit 11,6 kWh/(m²*a), Blick bis Albtrauf
In all meinen Räumen sind 60x60 Fliesen auf einer Fußbodenheizung verlegt. Die Energie dazu wird mittels Umluft-Wärme-Pumpe gewonnen. Die Lüftungsanlage mit Wärmerückgewinnung befindet sich im Dachspitz, der auch als zusätzlicher Abstellraum über eine Einschubtreppe genutzt werden kann.
Meine offene Küche hat bereits eine Einbauküche. Auch um genügend Steckdosen brauchen Sie sich keine Sorgen zu machen. Eine große Duschkabine (120x90), ein Lichtspiegel sowie der Waschmaschinen- und Trockner-Anschluss und eine Toilette befinden sich im Bad.
Meine zwei Schlafräume sind so konzipiert, dass sie als Schlafzimmer, Kinderzimmer, Büro oder Gästezimmer genutzt werden können. Im Bad und Gäste-WC haben meine Wände einen mineralischen Putz, ansonsten bin ich mit einer weißen Vliestapete ausgestattet.
Ebenfalls sind bereits diverse LED-Deckenlampen vorhanden. Meine Fenster haben elektrische Jalousien bzw. Rollläden, die ebenso wie die Lampen vernetzt sind und zentral gesteuert werden können (Hausautomation).
Durch die Video-Türsprechanlage sehen Sie, wer vor der Haustür steht.
Was bietet das Haus sonst noch?
Alle Holz-Alu-Fenster sind als Integralfenster dreifach-verglast und mit höchster Wärmedämmung versehen. Die Schlafräume haben einen zusätzlichen Schallschutz.
Es wurden für die Außenwände Ziegel gefüllt mit Mineralwolle und ein Wärmedämm-Verbundsystem verwendet, denn die Energie-Effizienzklasse ist A+ mit 11,6 kWh/(m²*a), Blick bis Albtrauf
Lage
Hohenrain73669 Lichtenwald
Lichtenwald
Der aktuelle durchschnittliche Quadratmeterpreis beträgt 11,96 €/m² in Lichtenwald.
Mit Mietspiegel
Lichtenwald vergleichen
Was kostet dein Umzug?
Du planst einen Umzug? Finde jetzt die günstigste Umzugsfirma in deiner Region!
Umzugskosten berechnen Schütze dich vor Betrug!
Leiste keinerlei Zahlung im Vorraus!
Beachte unsere Sicherheitshinweise zum Thema Immobilienbetrug und lies, woran du solche Anzeigen erkennen kannst und wie du dich vor Betrügern schützt.
Anzeige melden Beachte unsere Sicherheitshinweise zum Thema Immobilienbetrug und lies, woran du solche Anzeigen erkennen kannst und wie du dich vor Betrügern schützt.
*Anzeige
Ähnliche Wohnungen bei ImmoScout24
Lichtenwald
- Miete
- 1.100 €
- Zimmer
- 3.5 Zi.
- Fläche
- 100 Zi.
Anbieter
privater AnbieterWeitere Ergebnisse für:
Wohnungen
Lichtenwald;
Immobilien
Lichtenwald;
Haus mieten
Lichtenwald;
WG Zimmer
Lichtenwald;
Wohnung
Lichtenwald kaufen;
Haus kaufen
Lichtenwald;
Immobilienpreise
Lichtenwald Mietspiegel
Lichtenwald wohnungsboerse.net übernimmt keine Gewähr für von Dritten gemachte Angaben


















