
Etagenwohnung in Nürnberg-Zerzabelshof
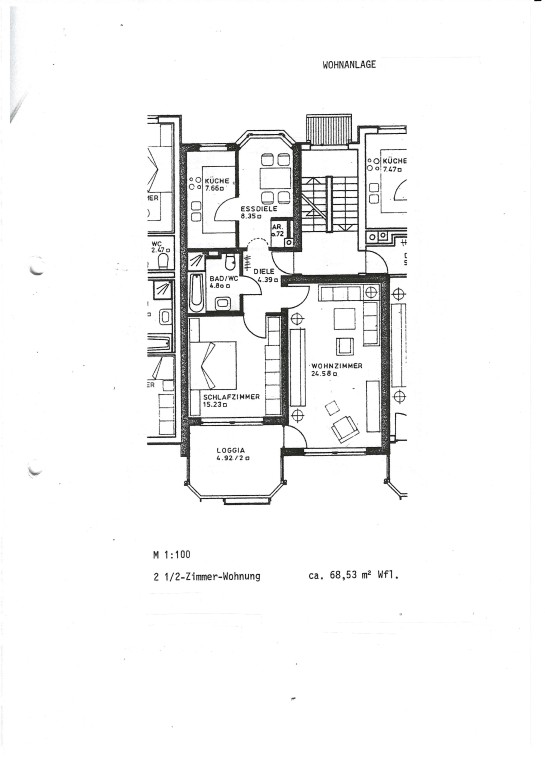
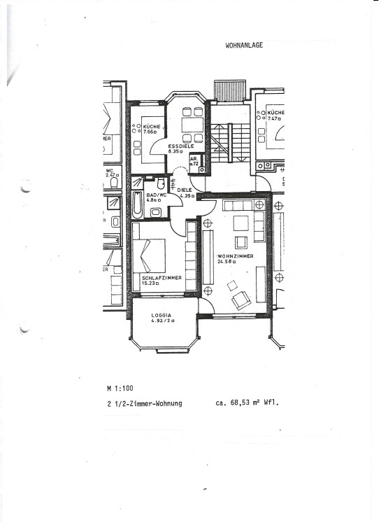
2,5 Zimmer Wohnung Nürnberg-Zabo
auf der Karte ansehenUmzugskosten berechnen
- Kaltmiete
- 800 €
- Zimmer
- 2.5
- Fläche
- 68.5 m²
2926 Aufrufe
Objekt-ID: 32627018
| Objekttyp: | Etagenwohnung |
| Zimmer: | 2.5 |
| Größe: | 68.50 m² |
| Etage: | 1 |
| Frei ab: | ab sofort |
Preise & Kosten
| Kaltmiete: | 800 € |
| Nebenkosten: | 200 € |
| Miete für Garage/Stellplatz: | 100 € |
| Gesamtmiete: |
1.000 € |
| Preis/m²: | 11,68 € |
| Mit Mietspiegel Nürnberg vergleichen | |
| Kaution: | 2.400 |
Immobilie
Loggia
Einbauküche
Neubau
Teilmöbliert
| Baujahr: | 1987 |
| Objektzustand: | gepflegt |
| Befeuerungsart: | Gas |
| Energieausweis: | Energieausweis in Vorbereitung |
Objektbeschreibung
2,5 Zimmer Wohnung, 1. OG, möbliert, mit Loggia (Balkon), in kleiner Wohnanlage in Zabo; für 1 max. 2 Personen geeignet; Nicht-Raucher; keine Haustiere
Einbauküche inkl. Elektrogeräte vorhanden:
- Kühl-Gefrier-Kombination, Backofen & Kochfeld, Spülmaschine
Weitere Merkmale:
- Teilweise möbliert
- Loggia
- Waschmaschine & Wäschetrockner vorhanden
Der Stadtteil Zabo hat eine gute Anbindung an das öffentliche Verkehrsnetz und eine gute Infrastruktur: Geschäfte des täglichen Bedarfs, Freizeit-, Sport- & Naherholungsmöglich-keiten sind in unmittelbarer Nähe vorhanden.
Einbauküche inkl. Elektrogeräte vorhanden:
- Kühl-Gefrier-Kombination, Backofen & Kochfeld, Spülmaschine
Weitere Merkmale:
- Teilweise möbliert
- Loggia
- Waschmaschine & Wäschetrockner vorhanden
Der Stadtteil Zabo hat eine gute Anbindung an das öffentliche Verkehrsnetz und eine gute Infrastruktur: Geschäfte des täglichen Bedarfs, Freizeit-, Sport- & Naherholungsmöglich-keiten sind in unmittelbarer Nähe vorhanden.
Lage
Neuweiherstr.90480 Nürnberg
Nürnberg Zerzabelshof
Der aktuelle durchschnittliche Quadratmeterpreis beträgt 12,55 €/m² in Nürnberg - Zerzabelshof. Der durchschnittliche Quadratmeterpreis in Nürnberg liegt derzeit bei 14,06 €/m².
Mit Mietspiegel
Nürnberg vergleichen
Was kostet dein Umzug?
Du planst einen Umzug? Finde jetzt die günstigste Umzugsfirma in deiner Region!
Umzugskosten berechnen Schütze dich vor Betrug!
Leiste keinerlei Zahlung im Vorraus!
Beachte unsere Sicherheitshinweise zum Thema Immobilienbetrug und lies, woran du solche Anzeigen erkennen kannst und wie du dich vor Betrügern schützt.
Anzeige melden Beachte unsere Sicherheitshinweise zum Thema Immobilienbetrug und lies, woran du solche Anzeigen erkennen kannst und wie du dich vor Betrügern schützt.
*Anzeige
Ähnliche Wohnungen bei ImmoScout24
Nürnberg-Zerzabelshof
- Miete
- 650 €
- Zimmer
- 2.5 Zi.
- Fläche
- 60 Zi.
Anbieter
privater AnbieterWeitere Ergebnisse für:
Wohnungen
Nürnberg;
Immobilien
Nürnberg;
Haus mieten
Nürnberg;
WG Zimmer
Nürnberg;
Wohnung
Nürnberg kaufen;
Haus kaufen
Nürnberg;
Immobilienpreise
Nürnberg Mietspiegel
Nürnberg wohnungsboerse.net übernimmt keine Gewähr für von Dritten gemachte Angaben