Dachgeschosswohnung in Roggenburg
Helle, sanierte 4 Zimmer-Wohnung in ruhiger Lage mit Balkon und Gartenanteil zu vermieten
auf der Karte ansehenUmzugskosten berechnen
- Kaltmiete
- 890 €
- Zimmer
- 4
- Fläche
- 108 m²
1520 Aufrufe
Objekt-ID: 32074101
| Objekttyp: | Dachgeschosswohnung |
| Zimmer: | 4 |
| Größe: | 108.00 m² |
| Etage: | 1 |
| Frei ab: | ab sofort |
Preise & Kosten
| Kaltmiete: | 890 € |
| Nebenkosten: | 200 € |
| Miete für Garage/Stellplatz: | 60 € |
| Gesamtmiete: |
1.090 € |
| Preis/m²: | 8,24 € |
| Mit Mietspiegel Roggenburg vergleichen | |
| Kaution: | 2000 |
Immobilie
Balkon
Garten
| Baujahr: | 1998 |
| Objektzustand: | vollständig renoviert |
| Befeuerungsart: | Öl |
| Energieausweis: | Energieausweis in Vorbereitung |
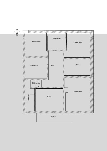
Objektbeschreibung
Wir vermieten unsere helle schön geschnittene 108 qm DG-Wohnung. Die Wohnung liegt in einem ruhigen Wohngebiet in unmittelbarer Nähe von Weißenhorn.
Die Wohnung befindet sich in einem Zweifamilienhaus, ist vollständig renoviert und nach Absprache bezugsfertig. Sie ist geeignet für Paare oder eine kleine Familie.
Unsere Wohnung umfasst:
- Tageslichtbad mit Wanne, Dusche, WC und Designer-Waschtisch
- Balkon (Zugang über Wohnküche auf nach Westen gerichteten Balkon)
- separates WC
- Speisekammer (incl. Regal)
- große Diele
- Vorraum im Treppenhaus beim Zugang zur Wohnung (zusätzliche Nutzfläche, nicht in angegebenen qm enthalten, geeignet für Garderobe/Schuhschrank außerhalb der Wohnung)
- geräumiger Speicher zur alleinigen Nutzung
- gemeinsam genutzte Waschküche mit Stellmöglichkeit für Waschmaschine und Trockner
- Gartenanteil
- Garage und Stellplatz direkt vor Garage
- Gemeinsam genutzter Abstellraum im hinteren Teil der Garage für Fahrrad und Gartengeräte.
Kaltmiete 890€/Monat zzgl. Garage 60€/Monat plus Nebenkosten.
Wir wünschen uns freundliche und langfristige Mieter mit geregeltem Einkommen. Bitte keine Haustiere.
Die Wohnung ist derzeit nicht bewohnt und kann daher kurzfristig bezogen werden.
Es besteht die Möglichkeit zur Anmietung eines weiteren Zimmers mit Bad.
Sie sind interessiert und suchen eine langfristige neue Wohnung, dann freuen wir uns über Ihre Nachricht an vermietung_dachwohnung@gmx.de.
Die Wohnung befindet sich in einem Zweifamilienhaus, ist vollständig renoviert und nach Absprache bezugsfertig. Sie ist geeignet für Paare oder eine kleine Familie.
Unsere Wohnung umfasst:
- Tageslichtbad mit Wanne, Dusche, WC und Designer-Waschtisch
- Balkon (Zugang über Wohnküche auf nach Westen gerichteten Balkon)
- separates WC
- Speisekammer (incl. Regal)
- große Diele
- Vorraum im Treppenhaus beim Zugang zur Wohnung (zusätzliche Nutzfläche, nicht in angegebenen qm enthalten, geeignet für Garderobe/Schuhschrank außerhalb der Wohnung)
- geräumiger Speicher zur alleinigen Nutzung
- gemeinsam genutzte Waschküche mit Stellmöglichkeit für Waschmaschine und Trockner
- Gartenanteil
- Garage und Stellplatz direkt vor Garage
- Gemeinsam genutzter Abstellraum im hinteren Teil der Garage für Fahrrad und Gartengeräte.
Kaltmiete 890€/Monat zzgl. Garage 60€/Monat plus Nebenkosten.
Wir wünschen uns freundliche und langfristige Mieter mit geregeltem Einkommen. Bitte keine Haustiere.
Die Wohnung ist derzeit nicht bewohnt und kann daher kurzfristig bezogen werden.
Es besteht die Möglichkeit zur Anmietung eines weiteren Zimmers mit Bad.
Sie sind interessiert und suchen eine langfristige neue Wohnung, dann freuen wir uns über Ihre Nachricht an vermietung_dachwohnung@gmx.de.
Lage
F89297 Roggenburg
Roggenburg
Der aktuelle durchschnittliche Quadratmeterpreis beträgt 9,90 €/m² in Roggenburg.
Mit Mietspiegel
Roggenburg vergleichen
Was kostet dein Umzug?
Du planst einen Umzug? Finde jetzt die günstigste Umzugsfirma in deiner Region!
Umzugskosten berechnen Schütze dich vor Betrug!
Leiste keinerlei Zahlung im Vorraus!
Beachte unsere Sicherheitshinweise zum Thema Immobilienbetrug und lies, woran du solche Anzeigen erkennen kannst und wie du dich vor Betrügern schützt.
Anzeige melden Beachte unsere Sicherheitshinweise zum Thema Immobilienbetrug und lies, woran du solche Anzeigen erkennen kannst und wie du dich vor Betrügern schützt.
*Anzeige
Ähnliche Wohnungen bei ImmoScout24
Roggenburg
- Miete
- 750 €
- Zimmer
- 4 Zi.
- Fläche
- 100 Zi.
Anbieter
privater AnbieterWeitere Ergebnisse für:
Wohnungen
Roggenburg;
Immobilien
Roggenburg;
Haus mieten
Roggenburg;
WG Zimmer
Roggenburg;
Wohnung
Roggenburg kaufen;
Haus kaufen
Roggenburg;
Immobilienpreise
Roggenburg Mietspiegel
Roggenburg wohnungsboerse.net übernimmt keine Gewähr für von Dritten gemachte Angaben






