Etagenwohnung in Braunschweig-Braunschweig
Ansprechende 2,5-Zimmer-Wohnung mit 2 Loggien, innenstadtnah in Braunschweig
auf der Karte ansehenUmzugskosten berechnen
- Kaltmiete
- 625 €
- Zimmer
- 2.5
- Fläche
- 76 m²
5386 Aufrufe
Objekt-ID: 26880626
| Objekttyp: | Etagenwohnung |
| Zimmer: | 2.5 |
| Größe: | 76.00 m² |
| Etage: | 1 von 4 |
| Frei ab: | 31.05.2021 |
Preise & Kosten
| Kaltmiete: | 625 € |
| Nebenkosten: | 170 € |
| Heizungskosten: | 100 € |
| Miete für Garage/Stellplatz: | 40 € |
| Gesamtmiete: |
935 € |
| Preis/m²: | 8,22 € |
| Mit Mietspiegel Braunschweig vergleichen | |
| Kaution: | 1800 € |
Immobilie
Loggia
Einbauküche
Aufzug
Keller
| Baujahr: | 1985 |
| Qualität der Ausstattung: | normal |
| Objektzustand: | gepflegt |
| Befeuerungsart: | Fernwärme |
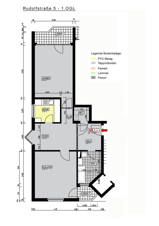
Objektbeschreibung
Zum 01.06.2021 kann in die helle Wohnung, die im ersten Stock liegt, eingezogen werden. Das Objekt verfügt über zwei einladende Zimmer mit bodentiefen Fenstern. Die Wohnung lässt sich bequem über einen Fahrstuhl erreichen. Ein Highlight sind die beiden Loggien, von denen aus man in Ruhe die Sonne genießen kann. Die vorhandene Einbauküche (Markenküche mit allen Elektrogeräten) soll an den Nachmieter übergeben werden. Die Wohnung verfügt über ein weiß-gefliestes Tageslicht-Badezimmer mit Kombiwanne. Fahrräder können in der zum Haus gehörenden Carportanlage abgestellt werden. Es besteht die Möglichkeit ergänzend einen Stellplatz zu mieten. Auch ein Kellerraum ist vorhanden und bietet weiteren Stauraum.
Zentral gelegen, sowohl City als auch Stadtautobahn und mehrere Buslinien sind in wenigen Minuten zu erreichen. Supermarkt in 100m Entfernung direkt hinterm Haus. Oker und Inselwall-Park sind ebenfalls in ca. 5 Minuten zu Fuß erreichbar und laden zu Spaziergängen ein.
Zentral gelegen, sowohl City als auch Stadtautobahn und mehrere Buslinien sind in wenigen Minuten zu erreichen. Supermarkt in 100m Entfernung direkt hinterm Haus. Oker und Inselwall-Park sind ebenfalls in ca. 5 Minuten zu Fuß erreichbar und laden zu Spaziergängen ein.
Lage
Rudolfstraße38114 Braunschweig
Braunschweig Braunschweig
Der aktuelle durchschnittliche Quadratmeterpreis beträgt 9,82 €/m² in Braunschweig - Braunschweig. Der durchschnittliche Quadratmeterpreis in Braunschweig liegt derzeit bei 10,27 €/m².
Mit Mietspiegel
Braunschweig vergleichen
Was kostet dein Umzug?
Du planst einen Umzug? Finde jetzt die günstigste Umzugsfirma in deiner Region!
Umzugskosten berechnen Schütze dich vor Betrug!
Leiste keinerlei Zahlung im Vorraus!
Beachte unsere Sicherheitshinweise zum Thema Immobilienbetrug und lies, woran du solche Anzeigen erkennen kannst und wie du dich vor Betrügern schützt.
Anzeige melden Beachte unsere Sicherheitshinweise zum Thema Immobilienbetrug und lies, woran du solche Anzeigen erkennen kannst und wie du dich vor Betrügern schützt.
*Anzeige
Ähnliche Wohnungen bei ImmoScout24
Braunschweig-Braunschweig
- Miete
- 500 €
- Zimmer
- 2.5 Zi.
- Fläche
- 70 Zi.
Anbieter
privater AnbieterWeitere Ergebnisse für:
Wohnungen
Braunschweig;
Immobilien
Braunschweig;
Haus mieten
Braunschweig;
WG Zimmer
Braunschweig;
Wohnung
Braunschweig kaufen;
Haus kaufen
Braunschweig;
Immobilienpreise
Braunschweig Mietspiegel
Braunschweig wohnungsboerse.net übernimmt keine Gewähr für von Dritten gemachte Angaben








