
Dachgeschosswohnung in Neuwied
Erstbezug! Helle Dachgeschosswohnung in zentraler, ruhiger Lage und Personenaufzug!
auf der Karte ansehenUmzugskosten berechnen
- Kaufpreis
- 365.000 €
- Zimmer
- 3
- Fläche
- 102 m²
28 Aufrufe
Objekt-ID: 38954778
| Objekttyp: | Dachgeschosswohnung |
| Zimmer: | 3 |
| Größe: | 102.00 m² |
| Verfügbar ab: | keine Angabe |
Preise & Kosten
| Kaufpreis: | 365.000 € |
| Jetzt kostenlos Finanzierungsangebot anfragen! | |
| Provision: | Nein |
| Preis/m²: | 3.578,43 € |
| Mit Immobilienpreisen Neuwied vergleichen | |
Immobilie
Balkon
Aufzug
| Energieausweis: | Energieausweis nicht notwendig (Denkmalschutz) |
Objektbeschreibung
Wenn Sie auf der Suche nach einer modernen und komfortablen Wohnung sind, haben wir das perfekte Angebot für Sie:
Eine stilvolle Neubauwohnung im Dachgeschoss eines dreigeschossigen Mehrfamilienhauses mit Personenaufzug.
Die Immobilie befindet sich in ruhiger, zugleich zentraler Lage mit idealer Anbindung an den öffentlichen Nahverkehr. Einkaufsmöglichkeiten, Restaurants und weitere Einrichtungen des täglichen Bedarfs sind bequem erreichbar.
Qualität, die überzeugt:
Eine TÜV-zertifizierte Bauabnahme in mehreren Bauabschnitten – bis hin zur Endabnahme durch einen unabhängigen, zertifizierten Bausachverständigen – garantiert Ihnen bei diesem Neubauprojekt höchste Bauqualität und Sicherheit.
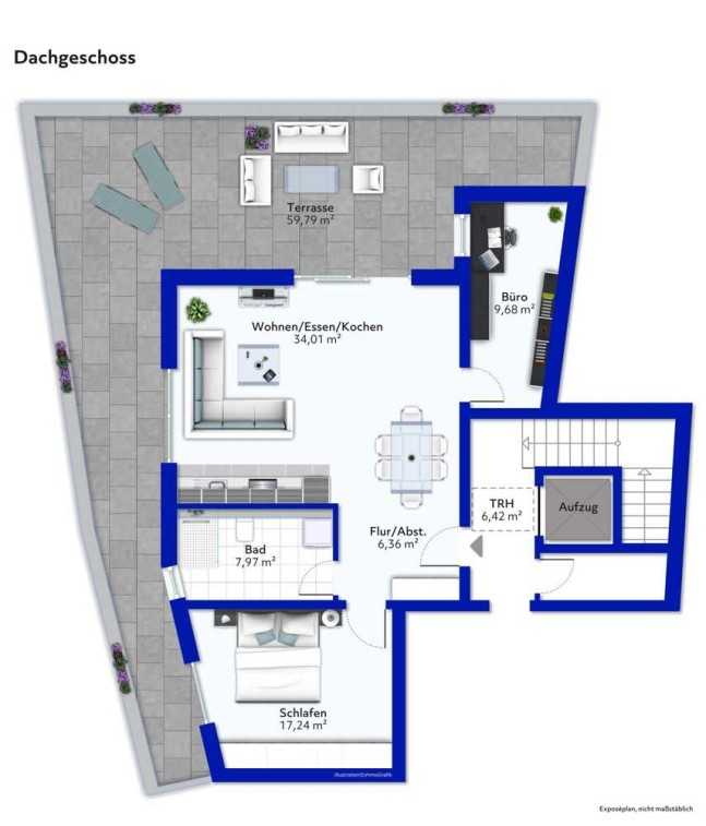
Die Dachgeschosswohnung bietet ca. 102 m² Wohnfläche sowie eine großzügige Terrasse, die den Wohnraum perfekt ergänzt.
Dank des Aufzugs erreichen Sie die Etage jederzeit bequem und barrierearm.
Der offen gestaltete Wohn-, Ess- und Kochbereich lädt zum gemeinsamen Kochen, Essen und Entspannen ein. Hier entsteht Raum für Ihre individuellen Einrichtungsideen und ein Zuhause mit persönlichem Wohlfühlcharakter.
Das Schlafzimmer ist großzügig bemessen und sorgt für erholsame Nächte.
Ein weiteres Zimmer eignet sich ideal als Arbeits- oder Kinderzimmer – perfekt für modernes Wohnen mit Homeoffice-Möglichkeit.
Das Tageslichtbad bietet eine bodengleiche Dusche, einen Waschtisch, ein WC sowie den Anschluss für eine Waschmaschine.
Im Erdgeschoss steht Ihnen ein separater Abstellraum zur Verfügung. Zudem gibt es gemeinschaftliche Bereiche für Fahrräder, Kinderwagen oder Gehhilfen sowie den Heizungsraum.
Für den zusätzlichen Komfort kann ein PKW-Stellplatz direkt am Haus optional erworben werden.
Je nach Baufortschritt haben Sie die Möglichkeit, die Innenausstattung mitzugestalten. Innerhalb der vorgesehenen Materialauswahl können Sie beispielsweise Bodenbeläge und Badezimmerausstattung nach Ihren persönlichen Vorlieben wählen. Wünsche über das festgelegte Budget hinaus lassen sich auf Wunsch und bei Übernahme der Mehrkosten realisieren.
Diese Wohnung vereint moderne Architektur, hohe Bauqualität und Komfort in ruhiger, zentraler Lage – ideal für Singles, Paare, kleine Familien oder Senioren, die Wert auf stilvolles Wohnen legen.
Kontaktieren Sie uns gerne für weitere Informationen – wir freuen uns auf Ihre Anfrage!
Eine stilvolle Neubauwohnung im Dachgeschoss eines dreigeschossigen Mehrfamilienhauses mit Personenaufzug.
Die Immobilie befindet sich in ruhiger, zugleich zentraler Lage mit idealer Anbindung an den öffentlichen Nahverkehr. Einkaufsmöglichkeiten, Restaurants und weitere Einrichtungen des täglichen Bedarfs sind bequem erreichbar.
Qualität, die überzeugt:
Eine TÜV-zertifizierte Bauabnahme in mehreren Bauabschnitten – bis hin zur Endabnahme durch einen unabhängigen, zertifizierten Bausachverständigen – garantiert Ihnen bei diesem Neubauprojekt höchste Bauqualität und Sicherheit.
Die Dachgeschosswohnung bietet ca. 102 m² Wohnfläche sowie eine großzügige Terrasse, die den Wohnraum perfekt ergänzt.
Dank des Aufzugs erreichen Sie die Etage jederzeit bequem und barrierearm.
Der offen gestaltete Wohn-, Ess- und Kochbereich lädt zum gemeinsamen Kochen, Essen und Entspannen ein. Hier entsteht Raum für Ihre individuellen Einrichtungsideen und ein Zuhause mit persönlichem Wohlfühlcharakter.
Das Schlafzimmer ist großzügig bemessen und sorgt für erholsame Nächte.
Ein weiteres Zimmer eignet sich ideal als Arbeits- oder Kinderzimmer – perfekt für modernes Wohnen mit Homeoffice-Möglichkeit.
Das Tageslichtbad bietet eine bodengleiche Dusche, einen Waschtisch, ein WC sowie den Anschluss für eine Waschmaschine.
Im Erdgeschoss steht Ihnen ein separater Abstellraum zur Verfügung. Zudem gibt es gemeinschaftliche Bereiche für Fahrräder, Kinderwagen oder Gehhilfen sowie den Heizungsraum.
Für den zusätzlichen Komfort kann ein PKW-Stellplatz direkt am Haus optional erworben werden.
Je nach Baufortschritt haben Sie die Möglichkeit, die Innenausstattung mitzugestalten. Innerhalb der vorgesehenen Materialauswahl können Sie beispielsweise Bodenbeläge und Badezimmerausstattung nach Ihren persönlichen Vorlieben wählen. Wünsche über das festgelegte Budget hinaus lassen sich auf Wunsch und bei Übernahme der Mehrkosten realisieren.
Diese Wohnung vereint moderne Architektur, hohe Bauqualität und Komfort in ruhiger, zentraler Lage – ideal für Singles, Paare, kleine Familien oder Senioren, die Wert auf stilvolles Wohnen legen.
Kontaktieren Sie uns gerne für weitere Informationen – wir freuen uns auf Ihre Anfrage!
Lage
56564 NeuwiedNeuwied
Der aktuelle durchschnittliche Quadratmeterpreis beträgt 2.854,51 €/m² in Neuwied.
Mit Immobilienpreisen
Neuwied vergleichen
Was kostet dein Umzug?
Du planst einen Umzug? Finde jetzt die günstigste Umzugsfirma in deiner Region!
Umzugskosten berechnen Schütze dich vor Betrug!
Leiste keinerlei Zahlung im Vorraus!
Beachte unsere Sicherheitshinweise zum Thema Immobilienbetrug und lies, woran du solche Anzeigen erkennen kannst und wie du dich vor Betrügern schützt.
Anzeige melden Beachte unsere Sicherheitshinweise zum Thema Immobilienbetrug und lies, woran du solche Anzeigen erkennen kannst und wie du dich vor Betrügern schützt.
*Anzeige
Ähnliche Immobilien bei ImmoScout24
Neuwied
- Kaufpreis
- 315.000 €
- Zimmer
- 3 Zi.
- Fläche
- 95 Zi.
Anbieter
Weitere Ergebnisse für:
Wohnungen
Neuwied;
Immobilien
Neuwied;
Haus mieten
Neuwied;
WG Zimmer
Neuwied;
Wohnung
Neuwied kaufen;
Haus kaufen
Neuwied;
Immobilienpreise
Neuwied Mietspiegel
Neuwied wohnungsboerse.net übernimmt keine Gewähr für von Dritten gemachte Angaben