
Etagenwohnung in Sindelfingen
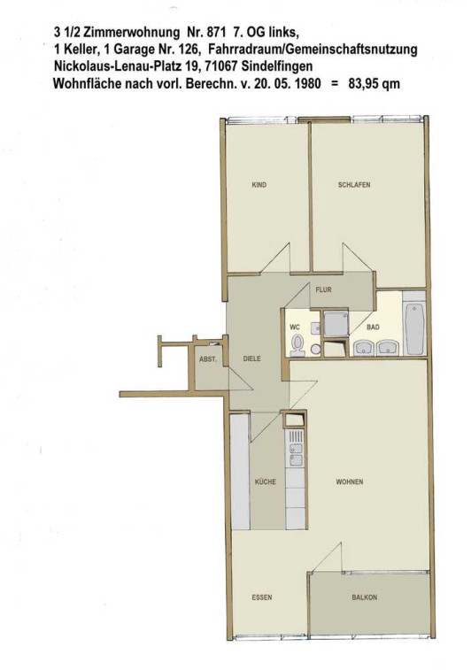
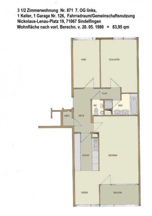
Gepflegte 3 1/2 Zimmerwohnung
auf der Karte ansehenUmzugskosten berechnen
- Kaufpreis
- 325.000 €
- Zimmer
- 3.5
- Fläche
- 83.95 m²
18 Aufrufe
Objekt-ID: 38891232
| Objekttyp: | Etagenwohnung |
| Zimmer: | 3.5 |
| Größe: | 83.95 m² |
| Etage: | 7 von 9 |
| Verfügbar ab: | 10.11.2025 |
Preise & Kosten
| Kaufpreis: | 325.000 € |
| Jetzt kostenlos Finanzierungsangebot anfragen! | |
| Provision: | Nein |
| Preis/m²: | 3.871,35 € |
| Mit Immobilienpreisen Sindelfingen vergleichen | |
Immobilie
Balkon
Einbauküche
Aufzug
Keller
| Baujahr: | 1981 |
| Befeuerungsart: | Strom |
| Energieausweis: | liegt vor |
Lage
Nikolaus-Lenau-Platz71067 Sindelfingen
Sindelfingen
Der aktuelle durchschnittliche Quadratmeterpreis beträgt 4.610,78 €/m² in Sindelfingen.
Mit Immobilienpreisen
Sindelfingen vergleichen
Was kostet dein Umzug?
Du planst einen Umzug? Finde jetzt die günstigste Umzugsfirma in deiner Region!
Umzugskosten berechnen Schütze dich vor Betrug!
Leiste keinerlei Zahlung im Vorraus!
Beachte unsere Sicherheitshinweise zum Thema Immobilienbetrug und lies, woran du solche Anzeigen erkennen kannst und wie du dich vor Betrügern schützt.
Anzeige melden Beachte unsere Sicherheitshinweise zum Thema Immobilienbetrug und lies, woran du solche Anzeigen erkennen kannst und wie du dich vor Betrügern schützt.
*Anzeige
Ähnliche Immobilien bei ImmoScout24
Sindelfingen
- Kaufpreis
- 275.000 €
- Zimmer
- 3.5 Zi.
- Fläche
- 75 Zi.
Weitere Ergebnisse für:
Wohnungen
Sindelfingen;
Immobilien
Sindelfingen;
Haus mieten
Sindelfingen;
WG Zimmer
Sindelfingen;
Wohnung
Sindelfingen kaufen;
Haus kaufen
Sindelfingen;
Immobilienpreise
Sindelfingen Mietspiegel
Sindelfingen wohnungsboerse.net übernimmt keine Gewähr für von Dritten gemachte Angaben