
Doppelhaushälfte zum kaufen in Kuppenheim
Neubau: Doppelhaushälfte in sonniger Lage im NBG von Kuppenheim!
auf der Karte ansehenUmzugskosten berechnen
- Kaufpreis
- 598.500 €
- Zimmer
- 4
- Fläche
- 120 m²
17 Aufrufe
Objekt-ID: 38886503
| Objekttyp: | Doppelhaushälfte |
| Zimmer: | 4 |
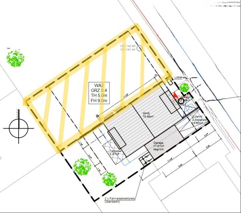
| Größe: | 120.00 m² |
| Grundstücksfläche: | 220,00 m² |
| Verfügbar ab: | keine Angabe |
Preise & Kosten
| Kaufpreis: | 598.500 € |
| Jetzt kostenlos Finanzierungsangebot anfragen! | |
| Provision: | Nein |
| Preis/m²: | 4.987,50 € |
| Mit Immobilienpreisen Kuppenheim vergleichen | |
Immobilie
Neubau
| Energieausweis: | Energieausweis nicht notwendig (Denkmalschutz) |
Objektbeschreibung
Diese moderne Doppelhaushälfte verbindet zeitgemäßen Wohnkomfort mit einem behaglichen Ambiente – ideal für Menschen die Raum zum Leben und Wachsen suchen.
Dieses Haus bietet Ihnen die einmalige Gelegenheit, den Grundriss und die Ausstattung nach Ihren individuellen Wünschen mitzugestalten. Verwirklichen Sie Ihren Traum vom eigenen Zuhause!
Mit 120 qm auf zwei Etagen und einem durchdachten Grundriss bietet das Haus genügend Platz für Eltern, Kinder und gemeinsame Familienmomente.
Helle Räume, ein großzügiger Wohn-Essbereich mit Zugang zum Garten und moderne Architektur schaffen eine Wohlfühlatmosphäre für jedes Alter.
Gelegen in einer der attraktivsten Wohngegenden von Kuppenheim, genießen Sie hier eine ruhige, grüne Umgebung mit bester Anbindung, familienfreundlicher Nachbarschaft und Nähe zu Schulen, Kindergärten und Freizeitmöglichkeiten.
Nutzen Sie diese seltene Gelegenheit, frühzeitig Einfluss auf die Gestaltung Ihres neuen Zuhauses zu nehmen – für ein Haus, das perfekt zu Ihrer Familie passt.
Dieses Haus bietet Ihnen die einmalige Gelegenheit, den Grundriss und die Ausstattung nach Ihren individuellen Wünschen mitzugestalten. Verwirklichen Sie Ihren Traum vom eigenen Zuhause!
Mit 120 qm auf zwei Etagen und einem durchdachten Grundriss bietet das Haus genügend Platz für Eltern, Kinder und gemeinsame Familienmomente.
Helle Räume, ein großzügiger Wohn-Essbereich mit Zugang zum Garten und moderne Architektur schaffen eine Wohlfühlatmosphäre für jedes Alter.
Gelegen in einer der attraktivsten Wohngegenden von Kuppenheim, genießen Sie hier eine ruhige, grüne Umgebung mit bester Anbindung, familienfreundlicher Nachbarschaft und Nähe zu Schulen, Kindergärten und Freizeitmöglichkeiten.
Nutzen Sie diese seltene Gelegenheit, frühzeitig Einfluss auf die Gestaltung Ihres neuen Zuhauses zu nehmen – für ein Haus, das perfekt zu Ihrer Familie passt.
Lage
76456 KuppenheimKuppenheim
Der aktuelle durchschnittliche Quadratmeterpreis beträgt 4.000,53 €/m² in Kuppenheim.
Mit Immobilienpreisen
Kuppenheim vergleichen
Was kostet dein Umzug?
Du planst einen Umzug? Finde jetzt die günstigste Umzugsfirma in deiner Region!
Umzugskosten berechnen Schütze dich vor Betrug!
Leiste keinerlei Zahlung im Vorraus!
Beachte unsere Sicherheitshinweise zum Thema Immobilienbetrug und lies, woran du solche Anzeigen erkennen kannst und wie du dich vor Betrügern schützt.
Anzeige melden Beachte unsere Sicherheitshinweise zum Thema Immobilienbetrug und lies, woran du solche Anzeigen erkennen kannst und wie du dich vor Betrügern schützt.
*Anzeige
Ähnliche Häuser bei ImmoScout24
Kuppenheim
- Kaufpreis
- 550.000 €
- Zimmer
- 4 Zi.
- Fläche
- 110 Zi.
Anbieter
Weitere Ergebnisse für:
Wohnungen
Kuppenheim;
Immobilien
Kuppenheim;
Haus mieten
Kuppenheim;
WG Zimmer
Kuppenheim;
Wohnung
Kuppenheim kaufen;
Haus kaufen
Kuppenheim;
Immobilienpreise
Kuppenheim Mietspiegel
Kuppenheim wohnungsboerse.net übernimmt keine Gewähr für von Dritten gemachte Angaben