Hochparterre-Wohnung in Laatzen
Helle 3 Zimmer Wohnung 75 m² in Laatzen mit Balkon *provisionsfrei!*
auf der Karte ansehenUmzugskosten berechnen
- Kaufpreis
- 200.000 €
- Zimmer
- 3
- Fläche
- 75 m²
92 Aufrufe
Objekt-ID: 38840870
| Objekttyp: | Hochparterre-Wohnung |
| Zimmer: | 3 |
| Größe: | 75.00 m² |
| Verfügbar ab: | ab sofort - Objekt ist vermietet |
Preise & Kosten
| Kaufpreis: | 200.000 € |
| Jetzt kostenlos Finanzierungsangebot anfragen! | |
| Hausgeld: | 363 € |
| Preis/m²: | 2.666,67 € |
| Mit Immobilienpreisen Laatzen vergleichen | |
Immobilie
Balkon
Keller
| Baujahr: | 1969 |
| Objektzustand: | teilweise renoviert |
| Befeuerungsart: | Gas |
| Energieausweis: | Energieausweis in Vorbereitung |
| Endenergiebedarf: | 70,90 kWh/(m²*a) |
| Energieeffizienzklasse: | B |
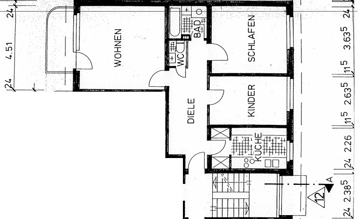
Objektbeschreibung
Entdecken Sie Ihr neues Zuhause in einer ruhigen Wohnstraße im Herzen von Laatzen. Die Lage verbindet städtische Nähe mit einer entspannten Wohnatmosphäre: Nur wenige Minuten trennen Sie vom Stadtzentrum Laatzen und gleichzeitig sind Sie schnell über die A7 oder B6 in Hannover – ideal für Pendler und Familien.
Die Straße Heidfeld ist eine Anliegerstraße, sodass Sie von geringem Verkehr und einer angenehmen Nachbarschaft profitieren. Das Leine Center Laatzen, 2 Schulen, Kindergärten und öffentliche Verkehrsmittel befinden sich in unmittelbarer Nähe und machen den Alltag komfortabel und praktisch. Es sind zahlreiche Parkmöglichkeiten direkt vor der Tür vorhanden.
Dieses Wohnumfeld bietet Ruhe, gute Infrastruktur und kurze Wege – perfekt für alle, die zentral wohnen möchten, ohne auf Wohnqualität verzichten zu müssen.
Neue abschließbare Fenster wurden erst vor kurzem eingebaut und mit maßgenauen Plissees ausgestattet. Der Balkon lässt sich mit einer elektrischen Markise abdunkeln. Im Haus befindet sich ein Wäscheraum sowie ein abgeschlossener Fahrradkeller mit Rampe.
Die Wohnung ist seit dem 01.07.2025 mit einer Kaltmiete von 550 € vermietet und wurde von den aktuellen Mietern zum Einzug frisch renoviert. Insbesondere wurde tapeziert und gestrichen, sowie ein neuer Fußboden aus PVC verlegt. Das Hausgeld beträgt 363 €.
Die Heizung (Erdgas/Strom) wurde 2015 erneuert. Der Energieausweis liegt digital vor.
Dieser Verkauf ist provisionsfrei! Keine Maklergebühr!
Die Straße Heidfeld ist eine Anliegerstraße, sodass Sie von geringem Verkehr und einer angenehmen Nachbarschaft profitieren. Das Leine Center Laatzen, 2 Schulen, Kindergärten und öffentliche Verkehrsmittel befinden sich in unmittelbarer Nähe und machen den Alltag komfortabel und praktisch. Es sind zahlreiche Parkmöglichkeiten direkt vor der Tür vorhanden.
Dieses Wohnumfeld bietet Ruhe, gute Infrastruktur und kurze Wege – perfekt für alle, die zentral wohnen möchten, ohne auf Wohnqualität verzichten zu müssen.
Neue abschließbare Fenster wurden erst vor kurzem eingebaut und mit maßgenauen Plissees ausgestattet. Der Balkon lässt sich mit einer elektrischen Markise abdunkeln. Im Haus befindet sich ein Wäscheraum sowie ein abgeschlossener Fahrradkeller mit Rampe.
Die Wohnung ist seit dem 01.07.2025 mit einer Kaltmiete von 550 € vermietet und wurde von den aktuellen Mietern zum Einzug frisch renoviert. Insbesondere wurde tapeziert und gestrichen, sowie ein neuer Fußboden aus PVC verlegt. Das Hausgeld beträgt 363 €.
Die Heizung (Erdgas/Strom) wurde 2015 erneuert. Der Energieausweis liegt digital vor.
Dieser Verkauf ist provisionsfrei! Keine Maklergebühr!
Lage
Heidfeld30880 Laatzen
Laatzen
Der aktuelle durchschnittliche Quadratmeterpreis beträgt 2.502,95 €/m² in Laatzen.
Mit Immobilienpreisen
Laatzen vergleichen
Was kostet dein Umzug?
Du planst einen Umzug? Finde jetzt die günstigste Umzugsfirma in deiner Region!
Umzugskosten berechnen Schütze dich vor Betrug!
Leiste keinerlei Zahlung im Vorraus!
Beachte unsere Sicherheitshinweise zum Thema Immobilienbetrug und lies, woran du solche Anzeigen erkennen kannst und wie du dich vor Betrügern schützt.
Anzeige melden Beachte unsere Sicherheitshinweise zum Thema Immobilienbetrug und lies, woran du solche Anzeigen erkennen kannst und wie du dich vor Betrügern schützt.
*Anzeige
Ähnliche Immobilien bei ImmoScout24
Laatzen
- Kaufpreis
- 150.000 €
- Zimmer
- 3 Zi.
- Fläche
- 65 Zi.
Anbieter
privater AnbieterWeitere Ergebnisse für:
Wohnungen
Laatzen;
Immobilien
Laatzen;
Haus mieten
Laatzen;
WG Zimmer
Laatzen;
Wohnung
Laatzen kaufen;
Haus kaufen
Laatzen;
Immobilienpreise
Laatzen Mietspiegel
Laatzen wohnungsboerse.net übernimmt keine Gewähr für von Dritten gemachte Angaben

















