
Erdgeschosswohnung in Neu-Ulm
* Erdgeschosswohnung mit Potenzial – ideal für Handwerker oder Kapitalanleger *
auf der Karte ansehenUmzugskosten berechnen
- Kaufpreis
- 195.000 €
- Zimmer
- 2
- Fläche
- 59 m²
1 Aufrufe
Objekt-ID: 38819852
| Objekttyp: | Erdgeschosswohnung |
| Zimmer: | 2 |
| Größe: | 59.00 m² |
| Etage: | 1 von 8 |
| Verfügbar ab: | per absprache |
Preise & Kosten
| Kaufpreis: | 195.000 € |
| Jetzt kostenlos Finanzierungsangebot anfragen! | |
| Provision: | Ja |
| Preis/m²: | 3.305,08 € |
| Mit Immobilienpreisen Neu-Ulm vergleichen | |
Immobilie
Balkon
Keller
| Baujahr: | 1963 |
| Befeuerungsart: | Zentralheizung |
| Energieausweis: | Energieausweis in Vorbereitung |
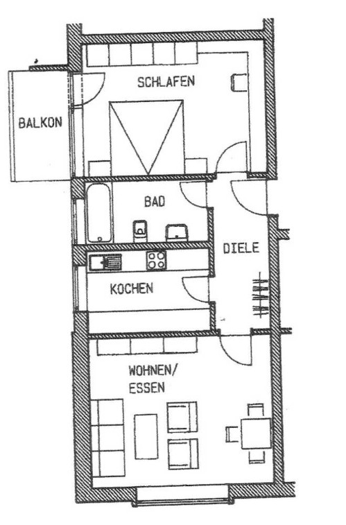
Objektbeschreibung
Ausstattungsmerkmale:
-
2-Zimmer-Erdgeschosswohnung
-
Helle Räume mit gutem Grundriss
-
Separate Küche
-
PVC-Isolierverglasung
-
Personenaufzug im Haus
-
Hausmeister- und Winterdienst vorhanden
-
Balkon mit angenehmer Größe
-
Stellplatz (Garage optional möglich)
-
Objekt voll unterkellert, separater Kellerraum vorhanden
-
Waschküche
-
Nicht vermietet – sofort bezugsfrei
-
Rücklagen: ca. 70.000 € (gesamt)
Empfohlene Renovierungsarbeiten:
-
Innenausbau komplett (Bodenbeläge, Wände, Badezimmer und Küche)
Lage
89231 Neu-UlmNeu-Ulm
Der aktuelle durchschnittliche Quadratmeterpreis beträgt 4.124,81 €/m² in Neu-Ulm.
Mit Immobilienpreisen
Neu-Ulm vergleichen
Was kostet dein Umzug?
Du planst einen Umzug? Finde jetzt die günstigste Umzugsfirma in deiner Region!
Umzugskosten berechnen Schütze dich vor Betrug!
Leiste keinerlei Zahlung im Vorraus!
Beachte unsere Sicherheitshinweise zum Thema Immobilienbetrug und lies, woran du solche Anzeigen erkennen kannst und wie du dich vor Betrügern schützt.
Anzeige melden Beachte unsere Sicherheitshinweise zum Thema Immobilienbetrug und lies, woran du solche Anzeigen erkennen kannst und wie du dich vor Betrügern schützt.
*Anzeige
Ähnliche Immobilien bei ImmoScout24
Neu-Ulm
- Kaufpreis
- 145.000 €
- Zimmer
- 2 Zi.
- Fläche
- 50 Zi.
Anbieter
Weitere Ergebnisse für:
Wohnungen
Neu-Ulm;
Immobilien
Neu-Ulm;
Haus mieten
Neu-Ulm;
WG Zimmer
Neu-Ulm;
Wohnung
Neu-Ulm kaufen;
Haus kaufen
Neu-Ulm;
Immobilienpreise
Neu-Ulm Mietspiegel
Neu-Ulm wohnungsboerse.net übernimmt keine Gewähr für von Dritten gemachte Angaben