Einfamilienhaus zum kaufen in Reichling
NEUBAU: kompaktes Einfamilienhaus Holzhaus in schöner Lage von Reichling südlich Landsberg am Lech
auf der Karte ansehenUmzugskosten berechnen
- Kaufpreis
- 569.000 €
- Zimmer
- 5
- Fläche
- 99 m²
                    36 Aufrufe
                    
                
                Objekt-ID: 38796061
| Objekttyp: | Einfamilienhaus | 
| Zimmer: | 5 | 
| Größe: | 99.00 m² | 
| Grundstücksfläche: | 370,00 m² | 
| Verfügbar ab: | 15.12.2026 | 
Preise & Kosten
| Kaufpreis: | 569.000 € | 
| Jetzt kostenlos Finanzierungsangebot anfragen! | |
| Provision: | 9520€ inkl. MwSt. | 
| Preis/m²: | 5.747,47 € | 
| Mit Immobilienpreisen Reichling vergleichen | |
Immobilie
                                    Garten
                                
                                                            
                                    Neubau
                                
                                                    | Baujahr: | 2026 | 
| Objektzustand: | Erstbezug | 
| Befeuerungsart: | Wärmepumpe | 
| Energieausweis: | Energieausweis in Vorbereitung | 
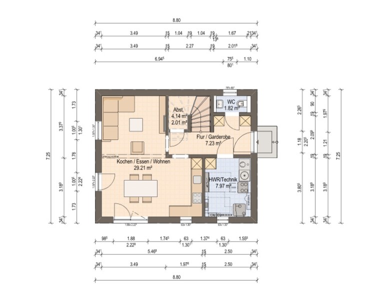
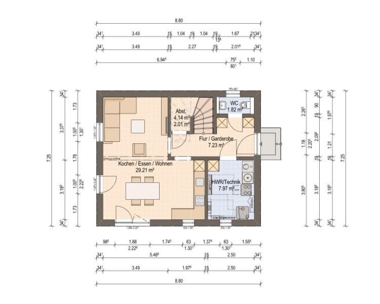
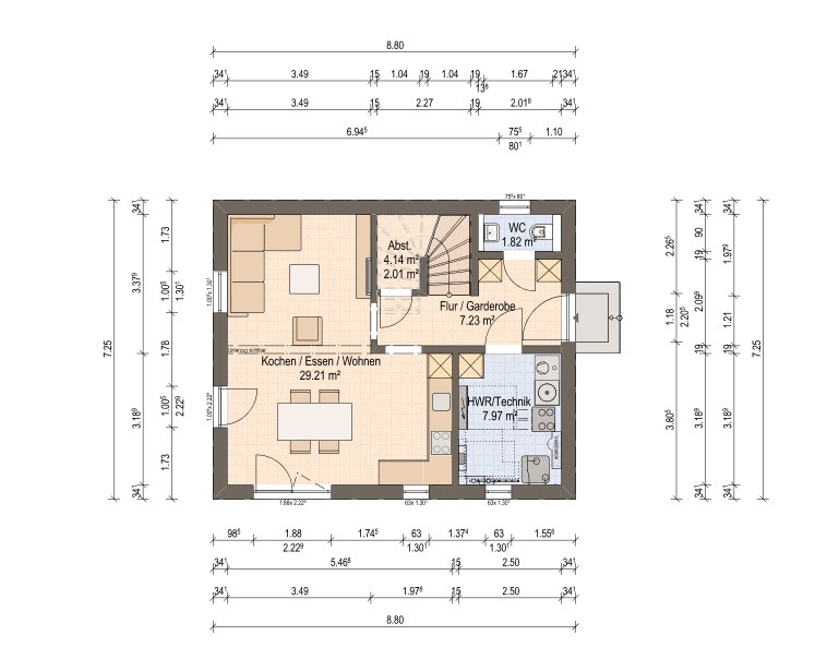
Objektbeschreibung
                            Ein modernes und durchdachtes Einfamilienhaus mit knapp 100m² Wohnfläche und allem was sich eine vierköpfige Familie wünscht:
unser Massivholzhaus FAMILIA C mit zeitlosem Sattel- oder Walmdach ist mit zahlreichen bodentiefen Fenstern geplant. Dadurch gelangt viel Licht ins Innere und der Grundriss kann mit vielen Blickachsen in den Garten realisiert werden. Auf zwei Vollgeschoßen finden der offene Wohn-Speisebereich, eine Garderobe, der Haustechnikraum, ein Gäste-WC, zwei Kinderzimmer, ein Elternzimmer und ein Familienbad Platz. Die Ergänzung mit einem Balkonanbau ist möglich.
Nettoraumfläche EG
50 ㎡
Nettoraumfläche DG
49 ㎡
Schon in der Grundausstattung:
– massive Bauweise
– 3-Scheibenverglasung
– Fussbodenheizung
– Lüftungsanlage mit WRG und zentralem Lüftungssystem
– Luft-Wärmepumpe
– Fliesen z.B. von Villeroy & Boch
– Handtuchheizkörper
– Aussenwasserhahn
Das Einfamilienhaus FAMILIA C in Holzständerbauweise entspricht den Anforderungen eines Effizienzhauses 40 und ist förderfähig. Gerne helfen wir Ihnen mit Anträgen für entsprechende Fördermittel.
Dieses Angebot enthält:
- schlüsselfertiges Haus inkl. Maler- und Fußbodenarbeiten
- Bodenplatte inkl. Planungen
- Architektenleistung mit allen Plänen
- Grundstück inkl. Baugenehmigung
Die Lage:
Traumhaft in Reichling, einer der schönsten Gemeinden Oberbayerns. Unweit des beliebten Wurzberges mit dem einmaligen Panoramabergblick.
Gerne erläutern wir Details zum Neubauhaus, Grundstück und der schönen Umgebung!
                                            unser Massivholzhaus FAMILIA C mit zeitlosem Sattel- oder Walmdach ist mit zahlreichen bodentiefen Fenstern geplant. Dadurch gelangt viel Licht ins Innere und der Grundriss kann mit vielen Blickachsen in den Garten realisiert werden. Auf zwei Vollgeschoßen finden der offene Wohn-Speisebereich, eine Garderobe, der Haustechnikraum, ein Gäste-WC, zwei Kinderzimmer, ein Elternzimmer und ein Familienbad Platz. Die Ergänzung mit einem Balkonanbau ist möglich.
Nettoraumfläche EG
50 ㎡
Nettoraumfläche DG
49 ㎡
Schon in der Grundausstattung:
– massive Bauweise
– 3-Scheibenverglasung
– Fussbodenheizung
– Lüftungsanlage mit WRG und zentralem Lüftungssystem
– Luft-Wärmepumpe
– Fliesen z.B. von Villeroy & Boch
– Handtuchheizkörper
– Aussenwasserhahn
Das Einfamilienhaus FAMILIA C in Holzständerbauweise entspricht den Anforderungen eines Effizienzhauses 40 und ist förderfähig. Gerne helfen wir Ihnen mit Anträgen für entsprechende Fördermittel.
Dieses Angebot enthält:
- schlüsselfertiges Haus inkl. Maler- und Fußbodenarbeiten
- Bodenplatte inkl. Planungen
- Architektenleistung mit allen Plänen
- Grundstück inkl. Baugenehmigung
Die Lage:
Traumhaft in Reichling, einer der schönsten Gemeinden Oberbayerns. Unweit des beliebten Wurzberges mit dem einmaligen Panoramabergblick.
Gerne erläutern wir Details zum Neubauhaus, Grundstück und der schönen Umgebung!
Lage
St-Nikolaus-Straße86934 Reichling
Reichling
Der aktuelle durchschnittliche Quadratmeterpreis beträgt 4.529,76 €/m² in Reichling.
                                                            Mit Immobilienpreisen
                                    Reichling vergleichen
                                                    
                                    Was kostet dein Umzug?
Du planst einen Umzug? Finde jetzt die günstigste Umzugsfirma in deiner Region!
                        Umzugskosten berechnen                    Schütze dich vor Betrug!
                            Leiste keinerlei Zahlung im Vorraus!
                            
Beachte unsere Sicherheitshinweise zum Thema Immobilienbetrug und lies, woran du solche Anzeigen erkennen kannst und wie du dich vor Betrügern schützt.
                        Anzeige melden                    Beachte unsere Sicherheitshinweise zum Thema Immobilienbetrug und lies, woran du solche Anzeigen erkennen kannst und wie du dich vor Betrügern schützt.
            *Anzeige
             
        
         
        Ähnliche Häuser bei ImmoScout24
Reichling
            - Kaufpreis
- 520.000 €
- Zimmer
- 5 Zi.
- Fläche
- 90 Zi.
Anbieter
privater AnbieterWeitere Ergebnisse für:
                Wohnungen
                    Reichling;
                Immobilien
                    Reichling;
                Haus mieten
                    Reichling;
                                    WG Zimmer
                        Reichling;
                                Wohnung
                    Reichling kaufen;
                Haus kaufen
                    Reichling;
                                    Immobilienpreise
                        Reichling                                                    Mietspiegel
                        Reichling                                wohnungsboerse.net übernimmt keine Gewähr für von Dritten gemachte Angaben
            





 
             
             
             
             
            