
Mehrfamilienhaus zum kaufen in Abtsteinach
Kapitalanlage in Abtsteinach - MFH mit 7 Wohnungen!
auf der Karte ansehenUmzugskosten berechnen
- Kaufpreis
- 700.000 €
- Zimmer
- 14
- Fläche
- 355 m²
3 Aufrufe
Objekt-ID: 38782319
| Objekttyp: | Mehrfamilienhaus |
| Zimmer: | 14 |
| Größe: | 355.00 m² |
| Grundstücksfläche: | 364,00 m² |
| Verfügbar ab: | keine Angabe |
Preise & Kosten
| Kaufpreis: | 700.000 € |
| Jetzt kostenlos Finanzierungsangebot anfragen! | |
| Provision: | Ja |
| Preis/m²: | 1.971,83 € |
Immobilie
Keller
| Baujahr: | 1994 |
| Befeuerungsart: | Zentralheizung |
| Energieausweis: | Verbrauchsausweis |
| Endenergiebedarf: | 171,30 kWh/(m²*a) |
| Energieeffizienzklasse: | F |
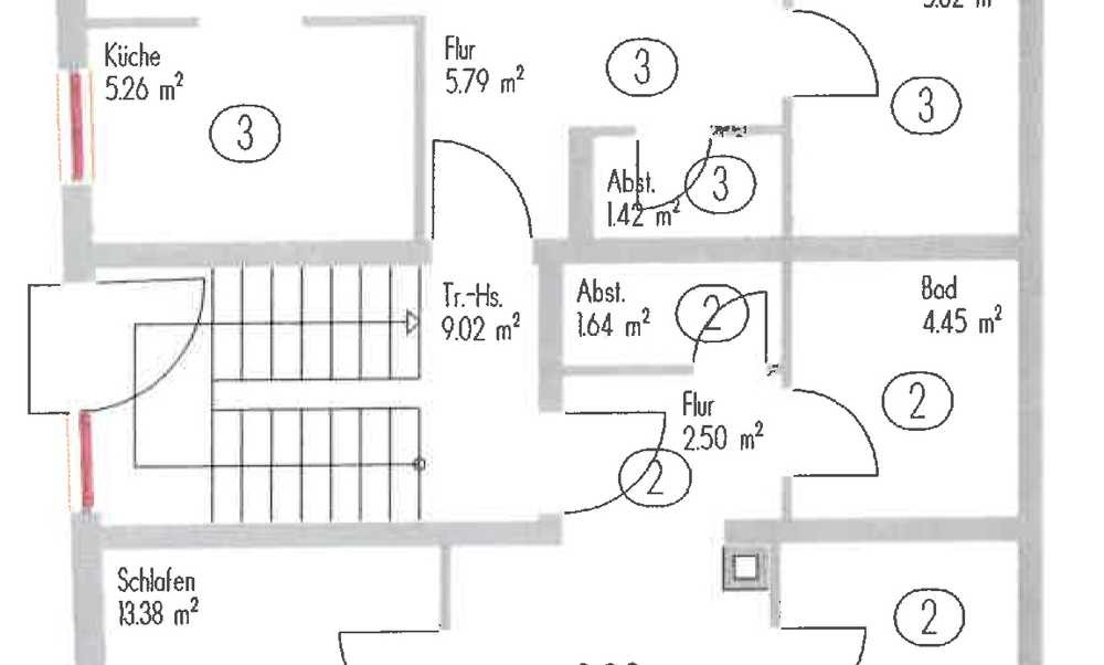
Objektbeschreibung
Solide Kapitalanlage im vorderen Odenwald!
7 Mietwohnungen mit einer jährlichen Kaltnettomiete von 34.680 €.
Im Gebäude befinden sich
1x 3-Zimmer-Maisonette-Wohnung im DG/GG
1x 1-Zimmer-Appartment im DG
5x 2-Zimmer-Wohnungen im OG/EG/UG
Das Haus ist vollvermietet. Im Grundbuch sind die 7 Wohnungen bereits als eigenständige Einheiten eingetragen mit entsprechendem Sondereigentum und Nutzungsrechten der Stellplätze.
7 Mietwohnungen mit einer jährlichen Kaltnettomiete von 34.680 €.
Im Gebäude befinden sich
1x 3-Zimmer-Maisonette-Wohnung im DG/GG
1x 1-Zimmer-Appartment im DG
5x 2-Zimmer-Wohnungen im OG/EG/UG
Das Haus ist vollvermietet. Im Grundbuch sind die 7 Wohnungen bereits als eigenständige Einheiten eingetragen mit entsprechendem Sondereigentum und Nutzungsrechten der Stellplätze.
Was kostet dein Umzug?
Du planst einen Umzug? Finde jetzt die günstigste Umzugsfirma in deiner Region!
Umzugskosten berechnen Schütze dich vor Betrug!
Leiste keinerlei Zahlung im Vorraus!
Beachte unsere Sicherheitshinweise zum Thema Immobilienbetrug und lies, woran du solche Anzeigen erkennen kannst und wie du dich vor Betrügern schützt.
Anzeige melden Beachte unsere Sicherheitshinweise zum Thema Immobilienbetrug und lies, woran du solche Anzeigen erkennen kannst und wie du dich vor Betrügern schützt.
*Anzeige
Ähnliche Häuser bei ImmoScout24
Abtsteinach
- Kaufpreis
- 650.000 €
- Zimmer
- 14 Zi.
- Fläche
- 345 Zi.
Anbieter
Weitere Ergebnisse für:
Wohnungen
Abtsteinach;
Immobilien
Abtsteinach;
Haus mieten
Abtsteinach;
WG Zimmer
Abtsteinach;
Wohnung
Abtsteinach kaufen;
Haus kaufen
Abtsteinach;
wohnungsboerse.net übernimmt keine Gewähr für von Dritten gemachte Angaben